Eladó műhely - Nemesvámos
- INGYENES HIRDETÉS FELADÁS
Ingatlan adatai
- Eladó vagy kiadó:Eladó
- Település:Nemesvámos
- Kategória:Ipari ingatlan
- Alkategória:Műhely
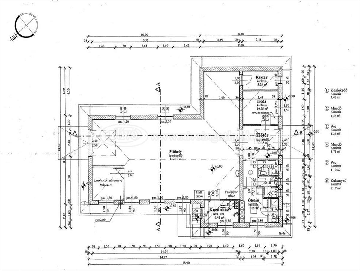
- Alapterület:170 m2
- Telekterület:2172 m2
- Csere is:Nem
- Hirdető:Cég
- Élő videón megtekinthető:Nem
- Építés éve:2001
- Hány szintes az ingatlan:nincs megadva
- Hányadik emeleti:1
- Parkolási lehetőség:nincs megadva
- Energiatanúsítvány:nincs megadva
- Villany:nincs megadva
- Víz:nincs megadva
- Gáz:nincs megadva
- Csatorna:nincs megadva
- Kapcsolatfelvétel

Nívó Ingatlanforgalmi ...
+36-(70)-380-0323
Mondd meg a hirdetőnek, hogy a megveszLAK-on találtad a hirdetést.
Hitel ajánlatok
Ingatlan hirdetés leírása
Nemesvámoson 2172 m2-es, bekerített, összközműves, kamionnal i...
Nemesvámoson 2172 m2-es, bekerített, összközműves, kamionnal is jól megközelíthető telken, 2001-ben 38-as ytongból épült, egy szintes, 170 m2-es műhely, telephely eladó.
Az épület áll munkaterületből, irodából, raktárból, teakonyhából, zuhanyzóból, két külön WC-ből és kazánházból. a műhely belmagassága ~3, 20 m, az aljzata festett beton. Nyílászárói műanyag nyílászárók. 2026. Év elején a tető felújítása megtörtént. Fűtése gázkazán, radiátoros fűtés. Áramkapacitás: 3x16A.
Övezeti besorolása: Gksz-02
Elhelyezkedéséből, beépíthetőségéből adódóan több funkció kialakítására is alkalmas.
Ár: 89, 9 millió Ft.
Az ingatlan megtekintése irodánkkal előre egyeztetett időpontban történik. Szívesen állunk rendelkezésre!
Keresünk és kínálunk eladó és bérbeadó ingatlanokat, albérleteket Veszprém, Balaton, Bakony, Káli-medence régióban.
Ügyeleti telefonszámunk: +36-70-3-800-323.
A Nívó Ingatlanforgalmi Szakértői Iroda teljes eladó és bérbeadó ingatlan és albérlet kínálatát megtekintheti a www. Nivoingatlan. Hu oldalunkon.
Irodai azonosító kód: n4796 Nívó ingatlan: n4796 Hitel.hu - Hasonlítsa össze a bankok lakáshitel ajánlatait
Tetszett ez az eladó Nemesvámosi ipari ingatlan? Hívd fel a hirdetőt most, és tudj meg mindent erről az eladó ipari ingatlanról! Ha gondolod nézelődj tovább az eladó ipari ingatlan Nemesvámos oldal hirdetései között.
Az eladó ipari ingatlanok menüpontban további hirdetések között is böngészhetsz. Ha van kedved, akkor böngészhetsz a Nívó Ingatlanforgalmi Szakértői Iroda összes hirdetése között.

