Eladó jó állapotú panel lakás - Ajka
- INGYENES HIRDETÉS FELADÁS
Ingatlan adatai
- Eladó vagy kiadó:Eladó
- Település:Ajka
- Kategória:Lakás
- Alkategória:Panel
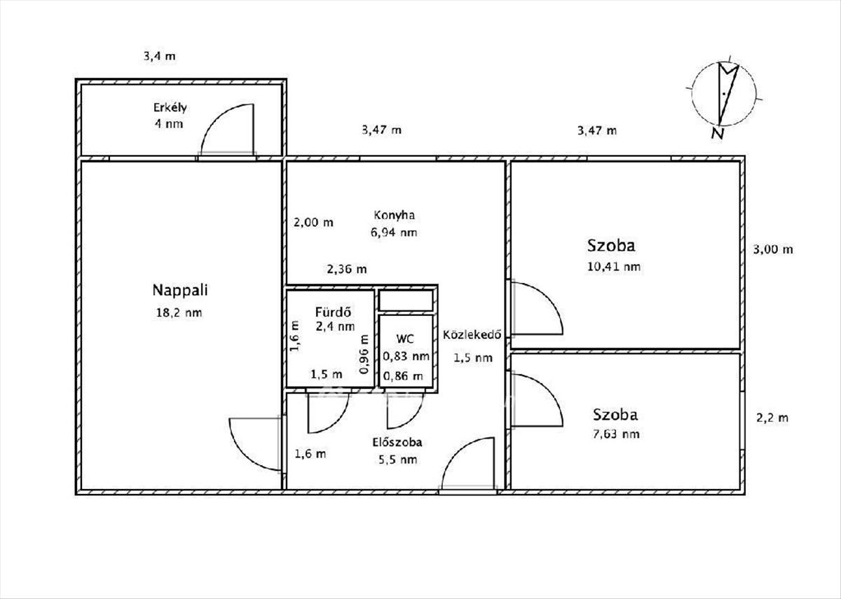
- Alapterület:55 m2
- Csere is:Nem
- Hirdető:Cég
- Élő videón megtekinthető:Nem
- Szobaszám:1 + 2 fél
- Állapot:Jó állapotú
- Hány szintes az ingatlan:Földszintes
- Komfortosság:nincs megadva
- Hányadik emeleti:1
- Erkély:nincs megadva
- Lift:Nincs
- Parkolási lehetőség:nincs megadva
- Fűtés:Távfűtés
- Bútorozottság:nincs megadva
- Fényviszony:Napfényes
- Tájolás:K
- Kilátás:nincs megadva
- Internet:nincs megadva
- Klíma:nincs megadva
- Akadálymentesített:nincs megadva
- Energiatanúsítvány:nincs megadva
- Villany:Van
- Víz:Van
- Gáz:nincs megadva
- Csatorna:Van
- Közös költség:8 300 Ft
- Kapcsolatfelvétel

Nagy Zoltán
+36-(20)-475-7888
Mondd meg a hirdetőnek, hogy a megveszLAK-on találtad a hirdetést.
Referencia szám: M317864
Ingatlan hirdetés leírása
Eladó Lakás, Ajka, Eladó jó állapotú panel lakás - Ajka
Eladásra kínálok Ajkán egy 55 nm-es első emeleti erkélyes lakást
Nagyon szép állapotú, földszinti lakás eladó, amely igényesen berendezett és kedvező elrendezéssel rendelkezik.
Az ingatlan tágas, világos tereket kínál, ízléses burkolatokkal, és egy hangulatos erkély is hozzátartozik.
A belváros szívében helyezkedik el, így minden fontos szolgáltatás és közlekedési lehetőség néhány perc alatt elérhető.
Azonnal költözhető, ideális otthon lehet párok vagy kis családok számára.
Ne hagyja ki ezt a kiváló lehetőséget!
Amennyiben hirdetésem felkeltette az érdeklődését, várom hívását, akár hétvégén is, időpontegyeztetést követően rugalmasan megtekinthető.
Jöjjön el, nézze meg, tegyen rá ajánlatot!
Az OTP Ingatlanpont teljes körű ügyintézéssel áll az eladók és a vevők rendelkezésére. a kínálatunkból választott ingatlan finanszírozásához kedvezményes hitelkonstrukciót kínálunk. Az adásvételi szerződés megkötéséhez igény szerint megbízható ügyvédi közreműködést biztosítunk, és segítséget nyújtunk az adásvételhez kapcsolódó ügyek intézéséhez is, hogy az ügyfelek számára zökkenőmentes és biztonságos tranzakciót biztosítsunk.
Energetikai tanúsítvány: jelenleg még nincs.
Ez az ingatlan megfelel a fix 3 %-os Otthon Start Hitelprogram feltételeinek.
Érdeklődni: +36-20/4757-888 Nagy Zoltán OTP Ingatlanpont FIX 3% lakáshitelre megvehető


