- >>
- eladó ingatlanok
- >>
- eladó lakás
- >>
- eladó lakás Budapest III. kerület
- >>
Eladó újszerű állapotú panel lakás - Budapest III. kerület
| | |||
| Kedvencnek jelölöm | Elküldöm emailben | Megosztás | Szavazás |
| FIX 3% lakáshitelre megvehető | |||
| 70 000 000 HUF | |||
Ingatlan adatai
- Eladó vagy kiadó:Eladó
- Település:Budapest III. kerület
- Kategória:Lakás
- Alkategória:Panel
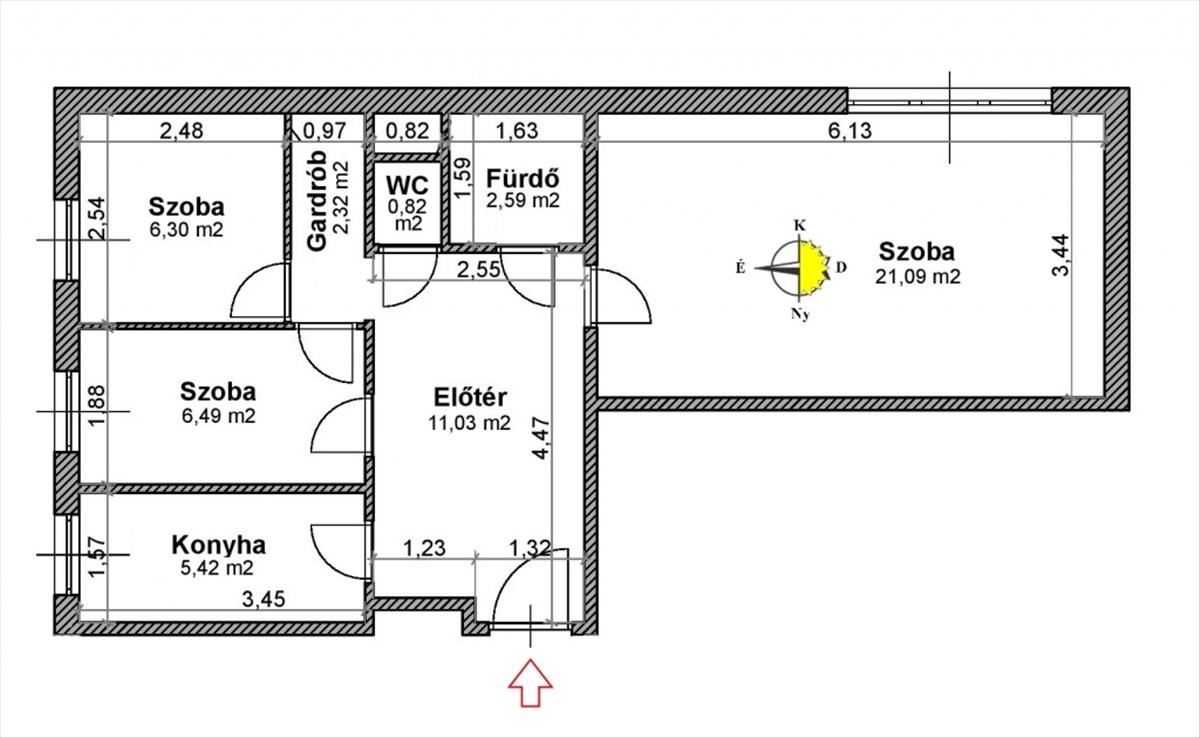
- Alapterület:57 m2
- Csere is:Nem
- Hirdető:Cég
- Élő videón megtekinthető:Igen
- Szobaszám:1 + 2 fél
- Állapot:Újszerű, kitűnő
- Hány szintes az ingatlan:Földszintes
- Komfortosság:nincs megadva
- Hányadik emeleti:2
- Lift:Van
- Parkolási lehetőség:Utcán
- Fűtés:Távfűtés
- Bútorozottság:Bútorozott
- Fényviszony:Jó
- Tájolás:K
- Kilátás:nincs megadva
- Internet:nincs megadva
- Klíma:Van
- Akadálymentesített:nincs megadva
- Energiatanúsítvány:D
- Villany:Van
- Víz:Van
- Gáz:nincs megadva
- Csatorna:Van
- Közös költség:17 100 Ft
- Üzenetküldés
- Hívás
Bíró Róbert - Ingatlan...
Mondd meg a hirdetőnek, hogy a megveszLAK-on találtad a hirdetést.
Referencia szám: H1103

Hitel ajánlat
Ingatlan hirdetés leírása
3. ker III. Békásmegyer Ófalu, TELJESKÖRŰEN FELÚJÍTOTT, 2. eme...
3%-Os Otthon Start Plusz hitellel megvásárolható ingatlanNÉZZEN szét!
Kérem nézze meg a lakásról készül részletes virtuális túrát (17 pozíció: lakás, épület, utca, park) melyet a következő helyen ér el:
https://kuula. Co/share/collection/7Hc96? Logo=-1&card=1&info=0&fs=1&vr=1&gyro=0&autorotate=-0. 08&Thumbs=1&inst=hu
NÉZZE meg pontosan hol VAN:
Az ingatlan pontos címe: 1039 Budapest, Lukács György utca 16.
Békásmegyer Ófalu mellett,
TELJESKÖRŰEN FELÚJÍTOTT,
2. emeleti lakás,
akár teljes bútorzattal eladó
Ajánlom egyedülállóknak, pároknak gyermekkel.
Az ingatlan jó esztétikai és műszaki állapotú:
- a nyílászárói cseréltek, redőnyösek, szúnyoghálósak,
- klímával felszerelt,
- elektromos hálózata felújított,
- konyhája, fürdőszobája felújított,
KELETI tájolásű fényes ingatlan.
A lakáshoz 1 nm-es tároló tartozik.
ÜZEMELTETÉSi költsége összesen 38. 381 Ft/hó az alábbiak szerint:
- Közös költség: 17. 100 Ft/hó megtakarítási alappal
- főtáv: 10. 500 Ft/hó
- Gáz fogyasztás: (tűzhely, sütő): 1. 400 Ft/hó
- Elektromos áram: mérőóra szerint, kb. 4. 000 Ft/hó
- Víz fogyasztás: mérőóra szerint, kb. 3. 500 Ft/hó
- Szemétszállítás: 1. 881 Ft/hó
- tv/net előfizetés: szolgáltatóval szerződhető FIX 3% lakáshitelre megvehető

