Eladó átlagos állapotú panel lakás - Budapest III. kerület
- INGYENES HIRDETÉS FELADÁS
Ingatlan adatai
- Eladó vagy kiadó:Eladó
- Település:Budapest III. kerület
- Kategória:Lakás
- Alkategória:Panel
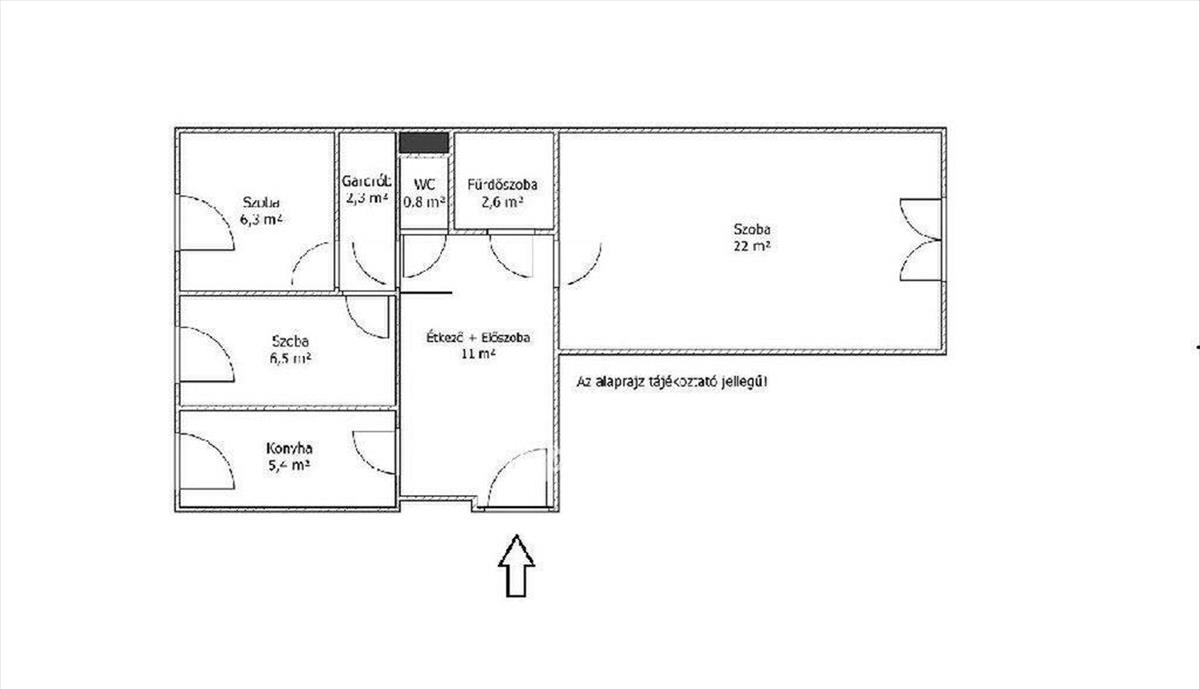
- Alapterület:57 m2
- Csere is:Nem
- Hirdető:Cég
- Élő videón megtekinthető:Nem
- Szobaszám:1 + 2 fél
- Állapot:Átlagos állapotú
- Hány szintes az ingatlan:Földszintes
- Komfortosság:nincs megadva
- Hányadik emeleti:10
- Erkély:nincs megadva
- Lift:Van
- Parkolási lehetőség:nincs megadva
- Fűtés:Távfűtés egyedi mérővel
- Bútorozottság:nincs megadva
- Fényviszony:Napfényes
- Tájolás:nincs megadva
- Kilátás:nincs megadva
- Internet:nincs megadva
- Klíma:nincs megadva
- Akadálymentesített:nincs megadva
- Energiatanúsítvány:D
- Villany:Van
- Víz:Van
- Gáz:nincs megadva
- Csatorna:Van
- Közös költség:18 000 Ft
- Kapcsolatfelvétel

Hitel ajánlatok
Ingatlan hirdetés leírása
Eladó Lakás, Budapest 3. ker.
Eladó 57 négyzetméteres jó állapotú x. emeleti, kis erkélyes panellakás Békásmegyeren.
Kiváló elosztású egy plusz két félszobás nagyon praktikus gardróbbal!
Az épület panelprogramban részt vett, homlokzata rendezett. a műanyag ablakok redőnyösek és rovarhálósok. a fűtést és a meleg vizet távhőn kapja a lakás, a radiátorok egyedi mérővel vannak ellátva.
A háznak jelentős megtakarítása van így a fejlesztéseket folyamatosan tervezik, a közös költség emelkedése a közeljövőben nem várható.
A közelben oktatási intézmények, üzletek és bevásárlóközpont is van, a tömegközlekedés kiváló a környéken. Parkolni a ház előtt kialakított parkolóban lehet közterületen ingyenesen. Ezt a remek elosztású lakást pároknak vagy családosoknak ajánlom elsősorban. Az ingatlan tehermentes, szinte azonnal költözhető! Ha érdekesnek találta jöjjön el és tekintse meg élőben is!
Időpont egyeztetéshez hívjon bizalommal!
Teljes körű ügyintézéssel állunk az eladók és a vevők rendelkezésére! a kínálatunkból választott ingatlan finanszírozásához minősített fogyasztóbarát, piaci és kedvezményes hitel- és lízingkonstrukciókat kínálunk (lakásvásárlási hitel, szabad felhasználású hitel, babaváró hitel, CSOK Plusz intézés, Otthonfelújítási Támogatás, egyéb felújítási hitelek). Az adásvételi szerződés megkötéséhez igény szerint megbízható ügyvédi közreműködést biztosítunk, és segítséget nyújtunk az adásvételhez kapcsolódó egyéb ügyek intézéséhez. Kérdéseire az esti órákban és hétvégén is szívesen válaszolok! Ha az új ingatlana megvásárlásához a jelenlegi ingatlanát el kell adnia, abban is szívesen segítünk.
M324741 FIX 3% lakáshitelre megvehető
Tetszett ez az eladó Budapest III. kerületi átlagos állapotú 1 egész és 2 fél szobás panel lakás? Hívd fel a hirdetőt most, és tudj meg mindent erről az eladó panel lakásról! Ha gondolod nézelődj tovább az eladó lakás Budapest III. kerület oldal hirdetései között. Ennek az eladó lakásnak az ára 64900000 Ft és mivel az alapterülete 57 négyzetméter, ezért az átlagos négyzetméterára 1138596 HUF/m2.
Az eladó lakások menüpontban további hirdetések között is böngészhetsz. Az összes eladó budapesti lakás hirdetést tartalmazó oldalon tudsz böngészni. Ha van kedved, akkor böngészhetsz a Juhász Emese összes hirdetése között, vagy akár a/az OTPip Budapest IX. kerület Üllői út 21 - OTP Ingatlanpont Iroda összes hirdetése között is.

