- >>
- eladó ingatlanok
- >>
- eladó lakás
- >>
- eladó lakás Budapest III. kerület
- >>
Eladó jó állapotú panel lakás - Budapest III. kerület
| | |||
| Kedvencnek jelölöm | Elküldöm emailben | Megosztás | Szavazás |
| FIX 3% lakáshitelre megvehető | |||
| 67 000 000 HUF | |||
Ingatlan adatai
- Eladó vagy kiadó:Eladó
- Település:Budapest III. kerület
- Kategória:Lakás
- Alkategória:Panel
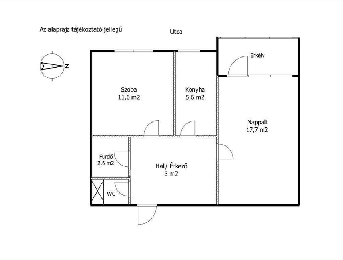
- Alapterület:51 m2
- Csere is:Nem
- Hirdető:Cég
- Élő videón megtekinthető:Nem
- Szobaszám:2
- Állapot:Jó állapotú
- Hány szintes az ingatlan:Földszintes
- Komfortosság:nincs megadva
- Hányadik emeleti:9
- Lift:Van
- Parkolási lehetőség:nincs megadva
- Fűtés:Távfűtés egyedi mérővel
- Bútorozottság:nincs megadva
- Fényviszony:Jó
- Tájolás:DNY
- Kilátás:nincs megadva
- Internet:nincs megadva
- Klíma:Van
- Akadálymentesített:nincs megadva
- Energiatanúsítvány:nincs megadva
- Villany:Van
- Víz:Van
- Gáz:nincs megadva
- Csatorna:Van
- Közös költség:15 300 Ft
- Üzenetküldés
- Hívás

Referencia szám: M319625

Hitel ajánlat
Ingatlan hirdetés leírása
Eladó Lakás, Budapest 3. ker.
Budapest III. kerületében, Óbuda kedvelt részén eladó egy 51 nm-es, 2 szobás, erkélyes, jó állapotú lakás.Az ingatlan 9. emeleti, világos, kiváló benapozottságú, az erkélyről és a lakásból részleges kilátás nyílik a Budai-hegyek irányába. a Szentendrei út felőli elhelyezkedés ellenére a lakás csendes, amit a magas emelet és az új, korszerű nyílászárók biztosítanak.
Főbb jellemzők: új nyílászárók redőnyökkel, légkondicionált, praktikus elrendezés, tágas, beépített szekrény, jó műszaki és esztétikai állapot. Az ingatlan karbantartott társasházban, rendezett lakóközösségben található. Üres, azonnal költözhető.
A lakás 1/1 tulajdonban van, tehermentes, jogilag rendezett.
A Flórián tér, Szentlélek tér és a Duna közelsége kiváló infrastruktúrát biztosít: tömegközlekedés, üzletek, szolgáltatások néhány percen belül elérhetők.
Igény esetén külön megvásárolható egy önálló garázs, amely a környéken kifejezetten ritkaságnak számít.
Ez az ingatlan valóban olyan, ahová csak költözni kell? Ideális választás saját otthonnak vagy befektetésnek egyaránt.
Referencia szám: m319625-ml FIX 3% lakáshitelre megvehető

