- >>
- eladó ingatlanok
- >>
- eladó lakás
- >>
- eladó lakás Budapest III. kerület
- >>
Eladó jó állapotú panel lakás - Budapest III. kerület
| | |||
| Kedvencnek jelölöm | Elküldöm emailben | Megosztás | Szavazás |
| FIX 3% lakáshitelre megvehető | |||
| 77 900 000 HUF | |||
Ingatlan adatai
- Eladó vagy kiadó:Eladó
- Település:Budapest III. kerület
- Kategória:Lakás
- Alkategória:Panel
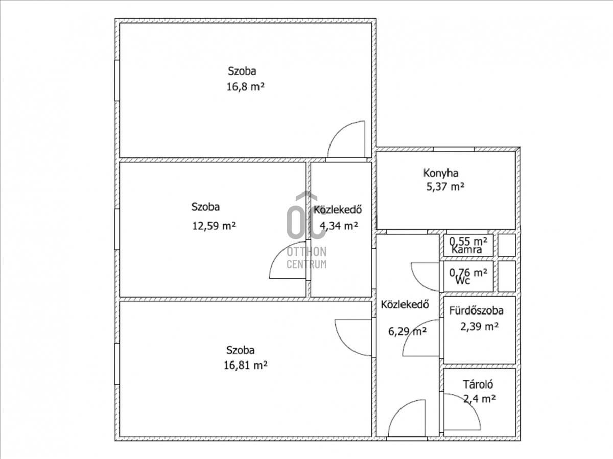
- Alapterület:69 m2
- Csere is:Nem
- Hirdető:Cég
- Élő videón megtekinthető:Nem
- Szobaszám:3
- Állapot:Jó állapotú
- Hány szintes az ingatlan:nincs megadva
- Komfortosság:nincs megadva
- Hányadik emeleti:4
- Lift:Van
- Parkolási lehetőség:nincs megadva
- Fűtés:Távfűtés egyedi mérővel
- Bútorozottság:nincs megadva
- Fényviszony:nincs megadva
- Tájolás:K
- Kilátás:Utcai
- Internet:nincs megadva
- Akadálymentesített:nincs megadva
- Energiatanúsítvány:nincs megadva
- Villany:Van
- Víz:Van
- Gáz:Van
- Csatorna:Van
- Közös költség:18 000 Ft
- Üzenetküldés
- Hívás


Hitel ajánlat
Ingatlan hirdetés leírása
69 m² | 3 külön nyíló szoba | 4. emelet | részben felújított |...
69 M² | 3 külön nyíló szoba | 4. emelet | részben felújított | csendes, zöld környezetFedezze fel ezt a kiváló elhelyezkedésű, csendes, mégis központi lakást Óbuda szívében, a Szél utcában! a lakás egy rendezett, szigetelt társasház 4. emeletén található, amely részt vett a panelprogramban.
A berendezett szobákat ábrázoló képek ai által generált látványtervek.
Felújítások és műszaki jellemzők:
Új nyílászárók (ablakok és bejárati ajtó)
Villanyvezetékek cserélve
Modern konyhabútor, beépített sütővel és mosogatógéppel
Mosógép kiállás a praktikus gardróbban
Távfűtés egyedi mérővel (kb. 12 000 Ft/hó)
Közös költség: 18 000 Ft/hó
Elrendezés:
Három külön nyíló szoba
Ablakos konyha
Kádas fürdőszoba
A szobák ablakai zöld, fás parkra néznek, kellemes kilátással
Környék:
A lakás kiváló infrastruktúrával rendelkezik: oktatási és orvosi intézmények, piac, szupermarketek, valamint a Flórián üzletház mindössze pár perc sétára találhatók. a tömegközlekedés (buszok, villamosok, hév) szintén könnyen elérhető, mégis nyugodt, zöld környezet veszi körül az épületet.
Parkolás az utcán, közvetlenül a ház előtt lehetséges.
Keressen bizalommal, akár hétvégén is!
Szívesen válaszolok minden kérdésre és egyeztetek megtekintést. FIX 3% lakáshitelre megvehető

