Eladó jó állapotú panel lakás - Budapest XI. kerület
- INGYENES HIRDETÉS FELADÁS
Ingatlan adatai
- Eladó vagy kiadó:Eladó
- Település:Budapest XI. kerület
- Kategória:Lakás
- Alkategória:Panel
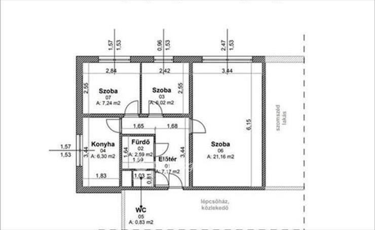
- Alapterület:51 m2
- Csere is:Nem
- Hirdető:Cég
- Élő videón megtekinthető:Nem
- Szobaszám:1 + 2 fél
- Állapot:Jó állapotú
- Hány szintes az ingatlan:Földszintes
- Komfortosság:nincs megadva
- Hányadik emeleti:3
- Erkély:nincs megadva
- Lift:Van
- Parkolási lehetőség:Utcán
- Fűtés:Házközponti egyedi mérővel
- Bútorozottság:nincs megadva
- Fényviszony:Napfényes
- Tájolás:D
- Kilátás:nincs megadva
- Internet:nincs megadva
- Klíma:nincs megadva
- Akadálymentesített:nincs megadva
- Energiatanúsítvány:nincs megadva
- Villany:Van
- Víz:Van
- Gáz:nincs megadva
- Csatorna:Van
- Közös költség:16 500 Ft
- Kapcsolatfelvétel

Hitel ajánlatok
Ingatlan hirdetés leírása
Eladó Lakás, Budapest 11. ker.
Budapest XI. kerület, Kelenföld, Otthon Start Program 3%-os hitelfelvételére alkalmas lakás.
Eladó Budapest XI. kerületében, Kelenföldön, az Etele úton, egy 51 nm -es, három külön nyíló szobás, jó elosztású, III. emeleti, jó állapotú, társasházi panellakás. a lakás déli fekvésű, ennek köszönhetően szép világos, napfényes.
Az ingatlan egy tízemeletes, dupla liftes panelházban található, amely részt vett a panelprogramban, ezért a közös költség (17. 480, - Ft/hó) és a rezsi költség is alacsony. Az otthon melegét a távhőszolgáltató biztosítja, az összes közüzemi fogyasztás (fűtés, hideg, meleg víz és áram) elszámolása egyedi mérőórák alapján történik.
A lakás 10 évvel ezelőtti felújításnak köszönhetően jó állapotú, a villanyvezetékek rézre cseréltek, a mennyezeten modern gipszkarton kialakítás és spotlámpás világítás található, ami kellemes, otthonos hangulatot teremt. a lakás légkondicionálóval felszerelt. a fürdőszoba és a wc külön helyiségben található, ami a mindennapok során külön kényelmet biztosít. a nappaliban egy faltól - falig tartó szekrénysor került beépítésre, ami minden ruhát képes elnyelni. a szobák laminált parketta, a többi helyiség járólap borítást kaptak.
A társasház és a környék térfigyelő kamerarendszerrel felszerelt, ezért nagyon biztonságos. a ház közelében egy modern, EU-s szabványnak megfelelő több korosztályt kiszolgáló park fogadja az oda látogatókat.
A lépcsőház tiszta, rendezett, erről a közös képviselet gondoskodik. a lakóközösség összetartó, barátságos.
A környékbeli hegyek, nagy zöldterületek számos kikapcsolódási lehetőséget rejtenek magukban (futás, kocogás, kerékpározás, sétálás, kutyasétáltatás).
A közelben bölcsőde, óvoda, általános iskola, élelmiszerbolt, posta, orvosi rendelő, gyógyszertár, étterem is található, az etele pláza sétatávolságra van.
A parkolás a ház előtti utcában fizetős.
Kitűnő elhelyezkedésének köszönhetően tömegközlekedéssel is nagyon könnyen megközelíthető (autóbuszok, villamos, metró).
Amennyiben hirdetésem felkeltette az érdeklődését, kérem, hívjon bizalommal!
Referencia szám: m325827-ml FIX 3% lakáshitelre megvehető
Tetszett ez az eladó Budapest XI. kerületi jó állapotú 1 egész és 2 fél szobás panel lakás? Hívd fel a hirdetőt most, és tudj meg mindent erről az eladó panel lakásról! Ha gondolod nézelődj tovább az eladó lakás Budapest XI. kerület oldal hirdetései között. Ennek az eladó lakásnak az ára 75900000 Ft és mivel az alapterülete 51 négyzetméter, ezért az átlagos négyzetméterára 1488235 HUF/m2.
Az eladó lakások menüpontban további hirdetések között is böngészhetsz. Az összes eladó budapesti lakás hirdetést tartalmazó oldalon tudsz böngészni. Ha van kedved, akkor böngészhetsz a Hosszú Beáta összes hirdetése között, vagy akár a/az OTPip Budapest XIII. kerület Victor Hugo utca 41 - OTP Ingatlanpont Iroda összes hirdetése között is.

