Eladó jó állapotú panel lakás - Budapest XIV. kerület
- INGYENES HIRDETÉS FELADÁS
Ingatlan adatai
- Eladó vagy kiadó:Eladó
- Település:Budapest XIV. kerület
- Kategória:Lakás
- Alkategória:Panel
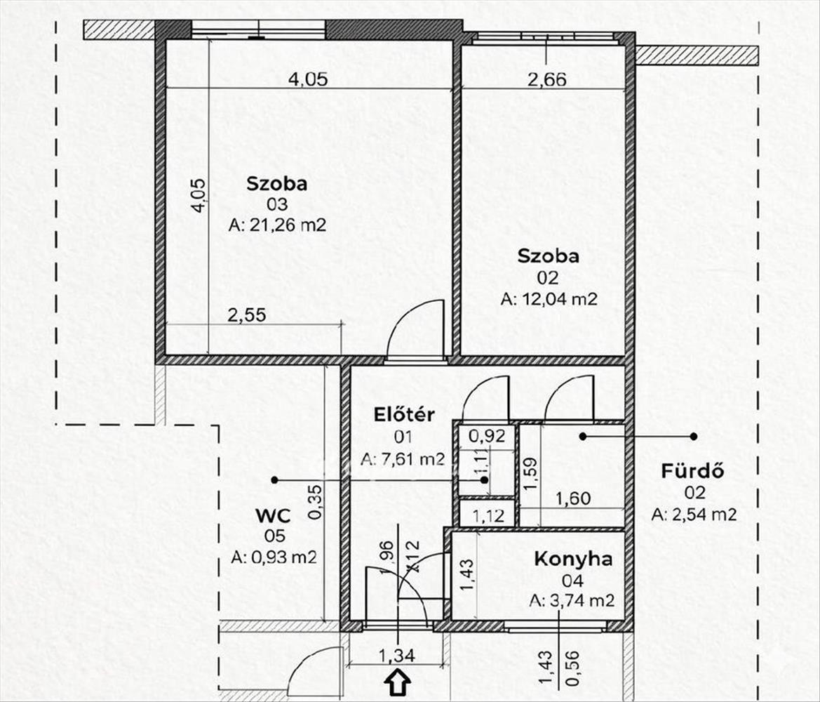
- Alapterület:49 m2
- Csere is:Nem
- Hirdető:Cég
- Élő videón megtekinthető:Nem
- Szobaszám:2
- Állapot:Jó állapotú
- Hány szintes az ingatlan:Földszintes
- Komfortosság:nincs megadva
- Hányadik emeleti:Félemelet
- Erkély:Van
- Lift:Van
- Parkolási lehetőség:nincs megadva
- Fűtés:Távfűtés egyedi mérővel
- Bútorozottság:nincs megadva
- Fényviszony:Jó
- Tájolás:NY
- Kilátás:nincs megadva
- Internet:nincs megadva
- Klíma:nincs megadva
- Akadálymentesített:nincs megadva
- Energiatanúsítvány:nincs megadva
- Villany:Van
- Víz:Van
- Gáz:nincs megadva
- Csatorna:Van
- Közös költség:9 000 Ft
- Kapcsolatfelvétel

Hitel ajánlatok
Ingatlan hirdetés leírása
Eladó Lakás, Budapest 14. ker.
Azonnali hozam vagy saját otthon Zuglóban világos, loggiás lakás a Füredi lakótelepen!
Budapest XIV. kerületében, a Füredi lakótelep egyik legkeresettebb részén, az Ond vezér útja közelében kínálunk megvételre egy 49 nm -es, 2 szobás, loggiás panellakást.
Az ingatlan egy panelprogramon átesett, liftes társasház magasföldszintjén található. Nyugati fekvésének köszönhetően rendkívül világos, a délutáni órákban napfényes, kellemes hangulatú otthon. Állapota jó, így akár kisebb ráfordítással is költözhető, vagy azonnal hasznosítható.
Külön előny, hogy a lakás jelenleg is megbízható bérlőkkel lakott, akik szívesen maradnának, így az ingatlan azonnali bevételt biztosíthat új tulajdonosának. Ez ideális választássá teszi befektetők számára, hiszen a kiadás minden nehézségét és időigényét megspórolhatja.
A lakás elrendezése praktikus és jól átgondolt: az L alakú előtérből minden helyiség külön nyílik. a világos konyha, a külön fürdő és wc, valamint a két tágas szoba kényelmes életteret biztosítanak. a kisebbik szobából nyíló loggia tökéletes helyszín a pihenésre vagy egy nyugodt esti kikapcsolódásra.
A társasház rendezett, tiszta, lifttel felszerelt, és számkódos beléptetőrendszerrel biztosított. a környezet zöldövezeti, parkokkal, játszóterekkel, kellemes sétálóhelyekkel, ideális mindennapi élethez.
A lokáció kiemelkedő: néhány perc alatt elérhető az árkád Budapest, a Sugár Üzletközpont és az ikea, valamint számos üzlet és szolgáltatás. a közlekedés kiváló, az Örs vezér tere mindössze két megálló, ahol az m2 metró, hév és több buszjárat is elérhető.
Ez a lakás tökéletes választás lehet saját célra vagy befektetésnek egyaránt, stabil érték, biztos megtérülés egy keresett lokációban.
Az ingatlanhoz energetikai tanusítvány jelenleg nem áll rendelkezésre, ennek beszerzése folyamatban van.
Amennyiben hirdetésem felkeltette érdeklődését várom megtisztelő hívását a hét bármely napján! FIX 3% lakáshitelre megvehető
Tetszett ez az eladó Budapest XIV. kerületi jó állapotú 2 szobás panel lakás? Hívd fel a hirdetőt most, és tudj meg mindent erről az eladó panel lakásról! Ha gondolod nézelődj tovább az eladó lakás Budapest XIV. kerület oldal hirdetései között. Ennek az eladó lakásnak az ára 62900000 Ft és mivel az alapterülete 49 négyzetméter, ezért az átlagos négyzetméterára 1283673 HUF/m2.
Az eladó lakások menüpontban további hirdetések között is böngészhetsz. Az összes eladó budapesti lakás hirdetést tartalmazó oldalon tudsz böngészni. Ha van kedved, akkor böngészhetsz a Dr. Jakus Péter összes hirdetése között, vagy akár a/az OTPip Budapest IX. kerület Üllői út 21 - OTP Ingatlanpont Iroda összes hirdetése között is.

