Eladó jó állapotú panel lakás - Budapest XIV. kerület
- INGYENES HIRDETÉS FELADÁS
Ingatlan adatai
- Eladó vagy kiadó:Eladó
- Település:Budapest XIV. kerület
- Kategória:Lakás
- Alkategória:Panel
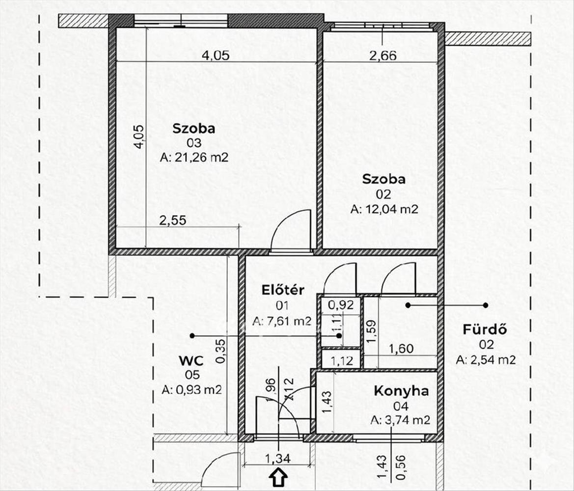
- Alapterület:49 m2
- Csere is:Nem
- Hirdető:Cég
- Élő videón megtekinthető:Nem
- Szobaszám:2
- Állapot:Jó állapotú
- Hány szintes az ingatlan:Földszintes
- Komfortosság:nincs megadva
- Hányadik emeleti:Félemelet
- Erkély:Van
- Lift:Van
- Parkolási lehetőség:nincs megadva
- Fűtés:Távfűtés egyedi mérővel
- Bútorozottság:nincs megadva
- Fényviszony:Jó
- Tájolás:NY
- Kilátás:nincs megadva
- Internet:nincs megadva
- Klíma:nincs megadva
- Akadálymentesített:nincs megadva
- Energiatanúsítvány:nincs megadva
- Villany:Van
- Víz:Van
- Gáz:nincs megadva
- Csatorna:Van
- Közös költség:9 000 Ft
- Kapcsolatfelvétel

Hitel ajánlatok
Ingatlan hirdetés leírása
Eladó Lakás, Budapest 14. ker.
Világos, loggiás lakás a Füredi lakótelepen, akár azonnali hozammal!
Budapest XIV. kerületében, a Füredi lakótelep kedvelt részén, az Ond vezér útja mentén kínálunk megvételre egy 49 nm -es, 2 szobás, loggiás panellakást.
Az ingatlan egy panelprogramon átesett, liftes társasház magasföldszintjén helyezkedik el. Nyugati tájolásának köszönhetően kifejezetten világos, a délutáni órákban napfényes, barátságos hangulatú otthon. a lakás jó állapotú, praktikus elrendezésű: minden helyiség külön nyílik, így kényelmesen élhető akár saját célra, akár bérbeadás esetén.
Külön kiemelendő, hogy a lakás jelenleg is megbízható bérlőkkel hasznosított, akik szívesen maradnának, így az ingatlan azonnali hozamot biztosíthat új tulajdonosának, ez befektetési szempontból különösen értékes lehetőség.
A belső kialakítás jól átgondolt: az L alakú előtérből nyílik a világos konyha, a külön fürdőszoba és wc, valamint a két tágas szoba. a kisebbik szobából közvetlen kijárás vezet a loggiára, amely ideális helyszín egy nyugodt esti pihenéshez.
A társasház rendezett, tiszta, lifttel és biztonságos, számkódos beléptetőrendszerrel ellátott. a környezet zöldövezeti, parkokkal, játszóterekkel és kellemes sétálóhelyekkel, ideális választás mind családoknak, mind nyugodt környezetet keresőknek.
A lokáció kiemelkedő: néhány percen belül elérhető az árkád Budapest, a Sugár Üzletközpont, valamint az ikea és számos üzlet, szolgáltatás. a közlekedés kiváló, az m2-es metró az Örs vezér tere megállónál gyorsan elérhető, emellett troli-, busz- és HÉV-kapcsolatok is rendelkezésre állnak.
Ez a lakás tökéletes választás lehet saját otthonnak vagy befektetésnek is, hiszen elhelyezkedése és adottságai hosszú távon is értékállóvá teszik.
Az ingatlanhoz energetikai tanusítvány jelenleg nem áll rendelkezésre, ennek beszerzése folyamatban van.
Amennyiben hirdetésem felkeltette érdeklődését, várom megtisztelő hívását a hét bármely napján! FIX 3% lakáshitelre megvehető
Tetszett ez az eladó Budapest XIV. kerületi jó állapotú 2 szobás panel lakás? Hívd fel a hirdetőt most, és tudj meg mindent erről az eladó panel lakásról! Ha gondolod nézelődj tovább az eladó lakás Budapest XIV. kerület oldal hirdetései között. Ennek az eladó lakásnak az ára 62900000 Ft és mivel az alapterülete 49 négyzetméter, ezért az átlagos négyzetméterára 1283673 HUF/m2.
Az eladó lakások menüpontban további hirdetések között is böngészhetsz. Az összes eladó budapesti lakás hirdetést tartalmazó oldalon tudsz böngészni. Ha van kedved, akkor böngészhetsz a Győri Eszter összes hirdetése között, vagy akár a/az OTPip Budapest IX. kerület Üllői út 21 - OTP Ingatlanpont Iroda összes hirdetése között is.

