Eladó újszerű állapotú panel lakás - Budapest XIV. kerület
- INGYENES HIRDETÉS FELADÁS
Ingatlan adatai
- Eladó vagy kiadó:Eladó
- Település:Budapest XIV. kerület
- Kategória:Lakás
- Alkategória:Panel
- Alapterület:50 m2
- Csere is:Nem
- Hirdető:Cég
- Élő videón megtekinthető:Nem
- Szobaszám:2
- Állapot:Újszerű, kitűnő
- Hány szintes az ingatlan:Földszintes
- Komfortosság:nincs megadva
- Hányadik emeleti:4
- Erkély:nincs megadva
- Lift:Van
- Parkolási lehetőség:nincs megadva
- Fűtés:Távfűtés egyedi mérővel
- Bútorozottság:nincs megadva
- Fényviszony:Napfényes
- Tájolás:NY
- Kilátás:nincs megadva
- Internet:nincs megadva
- Klíma:nincs megadva
- Akadálymentesített:Akadálymentesített
- Energiatanúsítvány:nincs megadva
- Villany:Van
- Víz:Van
- Gáz:nincs megadva
- Csatorna:Van
- Közös költség:12 000 Ft
- Kapcsolatfelvétel

Gregoryan Artur
+36-(70)-630-0162
Mondd meg a hirdetőnek, hogy a megveszLAK-on találtad a hirdetést.
Referencia szám: M325689
Hitel ajánlatok
Ingatlan hirdetés leírása
Eladó Lakás, Budapest 14. ker.
Zuglói ékszerdoboz az m2 metró közelében, Felújított, stílusos otthon várja új lakóját!
ENGLISH description BELOW! ! !
Helyszín: Budapest, XIV. kerület (Zugló, parkos övezet)
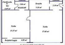
Alapterület: 50 nm (beépített erkéllyel tágítva)
Emelet: 4. emelet (szigetelt, panelprogramos házban)
Állapot: Teljes körűen, igényesen felújított
Ingatlan leírása:
Eladásra kínálunk egy minden részletében megújult, 50 nm -es lakást Zugló egyik legkeresettebb, zöldövezeti részén. Ez az otthon tökéletes példája annak, hogyan találkozhat a modern technológia a barátságos hangulattal. a felújítás során nemcsak a látványra figyeltek: a teljes víz- és elektromos hálózat cseréje megtörtént (amperbővítéssel együtt), így a műszaki biztonság garantált.
Miért fogja imádni ezt a lakást?
- Karakter és modernitás: Az eredeti faparkettát szakértő kezek varázsolták újjá, ami különleges melegséget ad a tereknek, miközben a modern álmennyezet és a klíma a mai kor kényelmét biztosítja.
- Térérzet: a beépített erkélynek köszönhetően a nappali még világosabb és tágasabb lett. a tárolást egyedi, beépített gardróbok segítik, így a lakás rendezett marad.
- Gépiesített konyha: Az új tulajdonost egy modern, gépesített konyhabútor várja – itt tényleg csak a főzésre kell koncentrálni.
- Alacsony fenntartás: a panelprogramos szigetelés, a műanyag nyílászárók (redőnnyel és szúnyoghálóval) és az egyedi mérésű távfűtés gondoskodik a jól tervezhető rezsiről.
Lokáció: Pár perc séta az m2 metró, így a belváros pillanatok alatt elérhető. a környéken pékségek, üzletek, posta és orvosi rendelő is karnyújtásnyira található.
Kinek ajánljuk? Kiváló választás pároknak, első lakást keresőknek vagy befektetőknek, hiszen az ingatlan tehermentes, akadálymentesített és szinte azonnal birtokba vehető.
———————————
Renovated Gem in Zugló, 50 sqm Apartment Near Metro Line 2
Location: Budapest, District 14 (Green belt, park surroundings)
Size: 50 sqm (including built-in balcony)
Condition: Fully renovated to a high standard
Floor: 4th floor (in an insulated building)
Property Highlights:
Searching for a turnkey home in a green neighborhood? This 50 sqm apartment has undergone a full technical and aesthetic renovation. From new plumbing and electrical systems (with power upgrades) to stylish finishes, everything is ready for you to move in.
Key Features:
- Warm Atmosphere: The original wooden parquet has been beautifully refurbished, preserving the homes character, while modern ac and false ceilings add a contemporary touch.
- Smart Layout: Built-in wardrobes maximize storage, and the integrated balcony adds extra light and living space.
- Fully Equipped: Comes with a new, fitted kitchen with appliances included.
- Efficiency: Thanks to the buildings insulation program and individual meters for heating, utility costs are low and predictable.
Transport & Amenities: Metro Line 2 is just a short walk away, providing a quick link to the city center. Shops, bakeries, and essential services are all nearby.
Perfect for couples, first-time buyers, or as a high-yield investment!
Referencia szám: m325689-ml FIX 3% lakáshitelre megvehető
Tetszett ez az eladó Budapest XIV. kerületi újszerű állapotú 2 szobás panel lakás? Hívd fel a hirdetőt most, és tudj meg mindent erről az eladó panel lakásról! Ha gondolod nézelődj tovább az eladó lakás Budapest XIV. kerület oldal hirdetései között. Ennek az eladó lakásnak az ára 74900000 Ft és mivel az alapterülete 50 négyzetméter, ezért az átlagos négyzetméterára 1498000 HUF/m2.
Az eladó lakások menüpontban további hirdetések között is böngészhetsz. Az összes eladó budapesti lakás hirdetést tartalmazó oldalon tudsz böngészni. Ha van kedved, akkor böngészhetsz a Gregoryan Artur összes hirdetése között, vagy akár a/az OTPip Gregoryan Artur összes hirdetése között is.

