Eladó jó állapotú panel lakás - Budapest XIX. kerület
- INGYENES HIRDETÉS FELADÁS
Ingatlan adatai
- Eladó vagy kiadó:Eladó
- Település:Budapest XIX. kerület
- Kategória:Lakás
- Alkategória:Panel
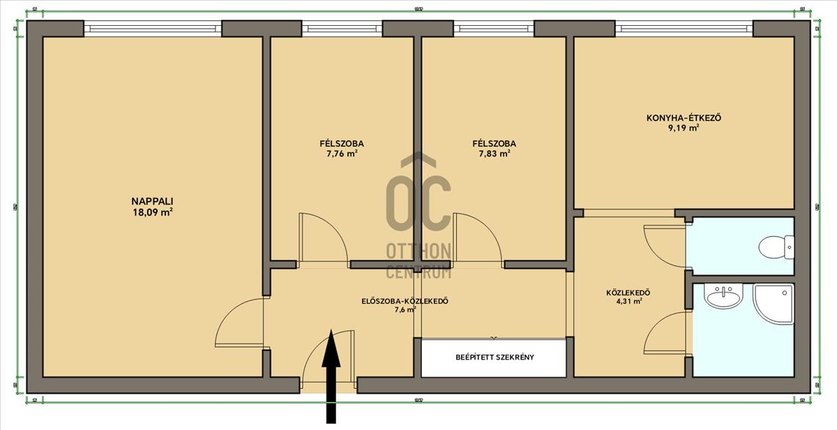
- Alapterület:59 m2
- Csere is:Nem
- Hirdető:Cég
- Élő videón megtekinthető:Nem
- Szobaszám:3
- Állapot:Jó állapotú
- Hány szintes az ingatlan:nincs megadva
- Komfortosság:nincs megadva
- Hányadik emeleti:nincs megadva
- Erkély:nincs megadva
- Lift:Van
- Parkolási lehetőség:nincs megadva
- Fűtés:Távfűtés
- Bútorozottság:nincs megadva
- Fényviszony:nincs megadva
- Tájolás:K
- Kilátás:Utcai
- Internet:nincs megadva
- Klíma:nincs megadva
- Akadálymentesített:nincs megadva
- Energiatanúsítvány:nincs megadva
- Villany:Van
- Víz:Van
- Gáz:Van
- Csatorna:Van
- Kapcsolatfelvétel

Hitel ajánlatok
Ingatlan hirdetés leírása
Eladó 59 m²-es, 3 szobás panel lakás Kispesten, a Zrínyi utcáb...
Eladó 59 m²-es, 3 szobás panel lakás Kispesten, a Zrínyi utcában
Kispest kedvelt részén, a XIX. kerületben, rendezett társasházban kínálunk megvételre egy 59 m²-es, 3 külön nyíló szobás, átlagos állapotú panel lakást.
A lakás az elmúlt 10 év során több ponton megújult:
– a nyílászárókat korszerű, műanyag, hő- és hangszigetelt ablakokra cserélték, melyeket redőnnyel szereltek fel,
– a fürdőszoba felújításon esett át,
– valamint a burkolatok cseréje is megtörtént.
A lakás jó elrendezésű, világos, praktikus otthon, amely jelenlegi állapotában is jól használható, ugyanakkor igény szerint tovább modernizálható.
A társasház rendezett, karbantartott, a lakóközösség csendes és összetartó, ami hosszú távon is kellemes lakókörnyezetet biztosít.
Környék, infrastruktúra:
A Zrínyi utca környezete kiváló ellátottsággal rendelkezik.
– a közelben üzletek, szupermarketek, gyógyszertár, pékség, posta könnyen elérhetők.
– Óvoda, iskola, orvosi rendelő néhány percen belül megtalálható.
– Tömegközlekedés szempontjából is jól frekventált: busz- és villamosmegállók rövid sétával elérhetők, így a belváros irányába is gyors a közlekedés.
– a környéken több park és zöldterület is található, ami kellemes kikapcsolódási lehetőséget nyújt.
A lakás ideális választás lehet
✔ fiatal pároknak
✔ kisebb családnak
✔ befektetésnek, kiadásra is
Amennyiben egy jó elhelyezkedésű, már részben felújított, praktikus lakást keres Kispesten, ez az ingatlan remek lehetőséget kínál. FIX 3% lakáshitelre megvehető
Tetszett ez az eladó Budapest XIX. kerületi jó állapotú 3 szobás panel lakás? Hívd fel a hirdetőt most, és tudj meg mindent erről az eladó panel lakásról! Ha gondolod nézelődj tovább az eladó lakás Budapest XIX. kerület oldal hirdetései között. Ennek az eladó lakásnak az ára 69800000 Ft és mivel az alapterülete 59 négyzetméter, ezért az átlagos négyzetméterára 1183051 HUF/m2.
Az eladó lakások menüpontban további hirdetések között is böngészhetsz. Az összes eladó budapesti lakás hirdetést tartalmazó oldalon tudsz böngészni. Ha van kedved, akkor böngészhetsz a Kozma Balázs összes hirdetése között, vagy akár a/az Otthon Centrum XVII. kerület - Cinkotai út összes hirdetése között is.

