Eladó átlagos állapotú panel lakás - Budapest XV. kerület
- INGYENES HIRDETÉS FELADÁS
Ingatlan adatai
- Eladó vagy kiadó:Eladó
- Település:Budapest XV. kerület
- Kategória:Lakás
- Alkategória:Panel
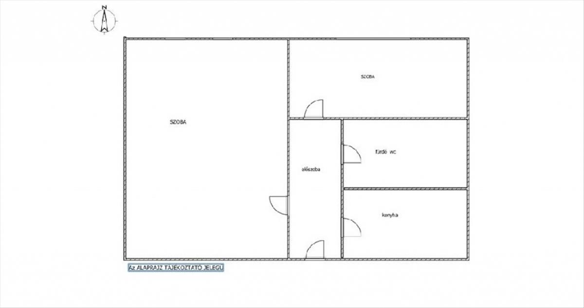
- Alapterület:35 m2
- Csere is:Nem
- Hirdető:Cég
- Élő videón megtekinthető:Nem
- Szobaszám:1 + 1 fél
- Állapot:Átlagos állapotú
- Hány szintes az ingatlan:Földszintes
- Komfortosság:nincs megadva
- Hányadik emeleti:1
- Erkély:nincs megadva
- Lift:Van
- Parkolási lehetőség:nincs megadva
- Fűtés:Távfűtés egyedi mérővel
- Bútorozottság:nincs megadva
- Fényviszony:Jó
- Tájolás:NY
- Kilátás:nincs megadva
- Internet:nincs megadva
- Klíma:nincs megadva
- Akadálymentesített:nincs megadva
- Energiatanúsítvány:nincs megadva
- Villany:Van
- Víz:Van
- Gáz:nincs megadva
- Csatorna:Van
- Közös költség:10 000 Ft
- Kapcsolatfelvétel

Hitel ajánlatok
Ingatlan hirdetés leírása
Eladó Lakás, Budapest 15. ker.
Eladó másfél szobás lakás Budapest XV. kerületében azonnal költözhető!
Budapest XV. kerületében, központi elhelyezkedéssel eladó egy 35 nm -es, másfél szobás, első emeleti panellakás.
Főbb jellemzők: panelprogramos épület (szigetelés, műanyag nyílászárók).
Rendezett, tiszta lépcsőház.
A lakás jó állapotú, azonnal költözhető.
Fürdőszoba felújítva: csempefestékkel korszerűsítve, burkolatok rendben.
Ingyenes parkolás közterületen.
1/1 Tulajdon, tehermentes. 3%-Os osp hitelre alkalmas.
Elhelyezkedés: kiváló infrastruktúra, Pólus Center és Ázsia Center a közelben.
Tömegközlekedés, boltok, szolgáltatások pár perc sétára.
Ajánljuk: kezdő lakásnak, befektetésnek (könnyen kiadható).
Ne maradjon le erről a remek lehetőségről azonnal költözhető lakás, kiváló helyen!
Antal Enikő
+36/20-371-2105 FIX 3% lakáshitelre megvehető
Tetszett ez az eladó Budapest XV. kerületi átlagos állapotú 1 egész és 1 fél szobás panel lakás? Hívd fel a hirdetőt most, és tudj meg mindent erről az eladó panel lakásról! Ha gondolod nézelődj tovább az eladó lakás Budapest XV. kerület oldal hirdetései között. Ennek az eladó lakásnak az ára 51000000 Ft és mivel az alapterülete 35 négyzetméter, ezért az átlagos négyzetméterára 1457143 HUF/m2.
Az eladó lakások menüpontban további hirdetések között is böngészhetsz. Az összes eladó budapesti lakás hirdetést tartalmazó oldalon tudsz böngészni. Ha van kedved, akkor böngészhetsz a Antal Enikő összes hirdetése között, vagy akár a/az OTPip Budapest I. kerület Krisztina körút 32 - OTP Ingatlanpont Iroda összes hirdetése között is.

