Eladó felújítandó panel lakás - Budapest XV. kerület
- INGYENES HIRDETÉS FELADÁS
Ingatlan adatai
- Eladó vagy kiadó:Eladó
- Település:Budapest XV. kerület
- Kategória:Lakás
- Alkategória:Panel
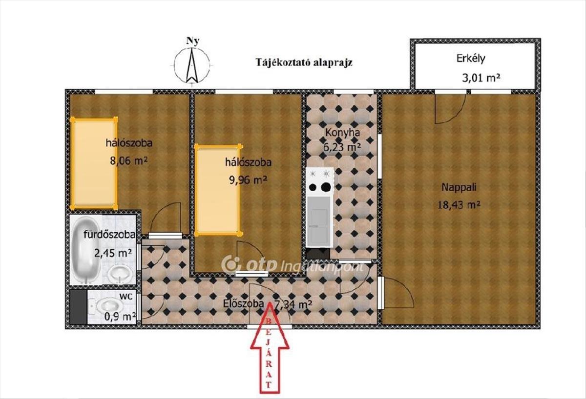
- Alapterület:55 m2
- Csere is:Nem
- Hirdető:Cég
- Élő videón megtekinthető:Nem
- Szobaszám:1 + 2 fél
- Állapot:Felújítandó
- Hány szintes az ingatlan:Földszintes
- Komfortosság:nincs megadva
- Hányadik emeleti:2
- Erkély:Van
- Lift:Nincs
- Parkolási lehetőség:nincs megadva
- Fűtés:Házközponti
- Bútorozottság:nincs megadva
- Fényviszony:Jó
- Tájolás:NY
- Kilátás:nincs megadva
- Internet:nincs megadva
- Klíma:nincs megadva
- Akadálymentesített:nincs megadva
- Energiatanúsítvány:nincs megadva
- Villany:Van
- Víz:Van
- Gáz:nincs megadva
- Csatorna:Van
- Közös költség:31 600 Ft
- Kapcsolatfelvétel

Fodor Zoltán
+36-(70)-675-2821
Mondd meg a hirdetőnek, hogy a megveszLAK-on találtad a hirdetést.
Referencia szám: M322616
Hitel ajánlatok
Ingatlan hirdetés leírása
Eladó Lakás, Budapest 15. ker.
Kertvárosi nyugalom, élhető tér - saját ízlésére formálható otthon Rákospalotán!
Rákospalota-Kertváros részen kínálunk megvételre egy 55 négyzetméteres, nappali + 2 hálószobás, erkélyes lakást, amely kiváló választás lehet családoknak vagy azoknak, akik szeretnének egy értékálló ingatlant saját elképzelésük szerint kialakítani.
Ezen a környéken ritkaságnak számít a hasonló adottságú, eladó lakás, ne maradjon le RÓLA!
Egy folyamatosan karbantartott, jó állapotú társasházban található ez a mindössze másfél emeletnyi lépcsőzéssel elérhető otthon.
- Élhető elrendezés, valódi térérzet:
Az ingatlan egyik előnye a praktikus, különnyíló elrendezés:
- nappali + 2 hálószoba
- világos, ablakos konyha
- külön fürdőszoba
- külön wc
- nappaliból nyíló, 3 m2-es nyugati tájolású erkély
A nyugati fekvésnek köszönhetően a lakás délutánonként napfényes, meleg hangulatú. Az erkély ideális egy kávéra, esti beszélgetésre vagy egy csendes pihenésre.
Lehetőség azoknak, akik értéket látnak benne
Az ingatlan felújítandó állapotú, így új tulajdonosa teljes mértékben saját igényei szerint alakíthatja ki.
Egy tisztasági festéssel és burkolatcserével akár rövid időn belül költözhetővé tehető, hosszabb távon pedig a gépészeti és nyílászáró korszerűsítés tovább növelheti az értékét.
Ez nem kompromisszum - ez lehetőség.
Kiváló közlekedés, élhető környezet
Sétatávolságra több buszjárat is elérhető, melyekkel közvetlenül megközelíthető:
- Újpest-Központ (170)
- Bosnyák tér (124, 125)
- Mexikói út (225)
- valamint a Budapest-Nyugati - Vác vasútvonal állomásai
Az éjszakai közlekedést a 950-es busz biztosítja.
A parkolás a környéken ingyenes.
Családbarát környezet
Óvoda, játszótér és általános iskola a közelben, biztonságos, kertvárosi hangulatú utcák, nyugodt lakókörnyezet - ideális választás gyermekes családok számára is.
Az ingatlan megfelel az Otthon_Start_Program (Fix3% Lakáshitel Program) feltételeinek.
Energetikai tanusítvány még nem áll rendelkezésre.
Felkeltette érdeklődését az általam kínált ingatlan?
Keressen bizalommal!
Az energetikai tanúsítvány készítése folyamatban van, amint rendelkezésre áll, úgy azzal a hirdetés frissítésre kerül.
Referencia szám: m322616-ml FIX 3% lakáshitelre megvehető
Tetszett ez az eladó Budapest XV. kerületi felújítandó 1 egész és 2 fél szobás panel lakás? Hívd fel a hirdetőt most, és tudj meg mindent erről az eladó panel lakásról! Ha gondolod nézelődj tovább az eladó lakás Budapest XV. kerület oldal hirdetései között. Ennek az eladó lakásnak az ára 61999000 Ft és mivel az alapterülete 55 négyzetméter, ezért az átlagos négyzetméterára 1127255 HUF/m2.
Az eladó lakások menüpontban további hirdetések között is böngészhetsz. Az összes eladó budapesti lakás hirdetést tartalmazó oldalon tudsz böngészni. Ha van kedved, akkor böngészhetsz a Fodor Zoltán összes hirdetése között, vagy akár a/az OTPip Gregoryan Artur összes hirdetése között is.

