Eladó jó állapotú panel lakás - Budapest XVII. kerület
- INGYENES HIRDETÉS FELADÁS
Ingatlan adatai
- Eladó vagy kiadó:Eladó
- Település:Budapest XVII. kerület
- Kategória:Lakás
- Alkategória:Panel
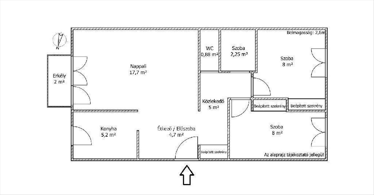
- Alapterület:54 m2
- Csere is:Nem
- Hirdető:Cég
- Élő videón megtekinthető:Nem
- Szobaszám:1 + 2 fél
- Állapot:Jó állapotú
- Hány szintes az ingatlan:Földszintes
- Komfortosság:nincs megadva
- Hányadik emeleti:2
- Erkély:nincs megadva
- Lift:Nincs
- Parkolási lehetőség:nincs megadva
- Fűtés:Távfűtés
- Bútorozottság:nincs megadva
- Fényviszony:Jó
- Tájolás:nincs megadva
- Kilátás:nincs megadva
- Internet:nincs megadva
- Klíma:Van
- Akadálymentesített:nincs megadva
- Energiatanúsítvány:nincs megadva
- Villany:Van
- Víz:Van
- Gáz:nincs megadva
- Csatorna:Van
- Közös költség:23 262 Ft
- Kapcsolatfelvétel

Osváth Annamária
+36-(30)-263-5393
Mondd meg a hirdetőnek, hogy a megveszLAK-on találtad a hirdetést.
Referencia szám: M318003
Hitel ajánlatok
Ingatlan hirdetés leírása
Eladó Lakás, Budapest 17. ker.
Eladó 54 négyzetméteres második emeleti erkélyes panellakás az Újlak utcai lakótelepen.
Kiváló adottságai mellett a lakást több felújításon is átesett már az évek során. Zuhanyzós fürdőszoba, egyedi bútorok és klíma berendezések lettek beszerelve. Két éve az összes nyílászárót műanyagra cserélték, majd múlt évben belülről teljesen ki lett festve. a fűtést és a meleg vizet távhőn kapja a lakás, így egyszerre komfortos és kedvező a rezsije. a ház folyamatosan fejleszt, jövőre egyedi hőmennyiségmérők is terveben vannak tovább csökkentve a havi költségeket, de a tetőszigetelés felújítására is gyűjtenek már. a közelben játszótér és bevásárlóközpontok megtalálhatóak. a tömegközlekedés nagyon könnyen elérhető, de mégis távol van a forgalmas zajos utaktól. Az erkély csendes udvarra néz, tájolásának köszönhetően nyáron is kellemes időtöltést tesz lehetővé.
Ezt a remek elosztású lakást pároknak vagy családosoknak ajánlom elsősorban, de mindenkinek érdekes lehet aki nyugalmat keres karnyújtásnyira a város sűrűjétől. Ha érdekesnek találta jöjjön el és tekintse meg élőben is! Időpont egyeztetéshez hívjon bizalommal!
Teljes körű ügyintézéssel állunk az eladók és a vevők rendelkezésére! a kínálatunkból választott ingatlan finanszírozásához minősített fogyasztóbarát, piaci és kedvezményes hitel- és lízingkonstrukciókat kínálunk (lakásvásárlási hitel, szabad felhasználású hitel, babaváró hitel, CSOK Plusz intézés, Otthonfelújítási Támogatás, egyéb felújítási hitelek). Az adásvételi szerződés megkötéséhez igény szerint megbízható ügyvédi közreműködést biztosítunk, és segítséget nyújtunk az adásvételhez kapcsolódó egyéb ügyek intézéséhez.
Kérdéseire az esti órákban és hétvégén is szívesen válaszolok! Ha az új ingatlana megvásárlásához a jelenlegi ingatlanát el kell adnia, abban is szívesen segítünk.
Referencia szám: m318003 FIX 3% lakáshitelre megvehető

