Eladó átlagos állapotú panel lakás - Debrecen
- INGYENES HIRDETÉS FELADÁS
Ingatlan adatai
- Eladó vagy kiadó:Eladó
- Település:Debrecen
- Kategória:Lakás
- Alkategória:Panel
- Alapterület:71 m2
- Csere is:Nem
- Hirdető:Cég
- Élő videón megtekinthető:Nem
- Szobaszám:3
- Állapot:Átlagos állapotú
- Hány szintes az ingatlan:Földszintes
- Komfortosság:nincs megadva
- Hányadik emeleti:9
- Erkély:nincs megadva
- Lift:Van
- Parkolási lehetőség:nincs megadva
- Fűtés:Távfűtés egyedi mérővel
- Bútorozottság:nincs megadva
- Fényviszony:Napfényes
- Tájolás:nincs megadva
- Kilátás:nincs megadva
- Internet:nincs megadva
- Klíma:nincs megadva
- Akadálymentesített:nincs megadva
- Energiatanúsítvány:nincs megadva
- Villany:Van
- Víz:Van
- Gáz:nincs megadva
- Csatorna:Van
- Közös költség:12 070 Ft
- Kapcsolatfelvétel

Balla László
+36-(30)-419-5022
Mondd meg a hirdetőnek, hogy a megveszLAK-on találtad a hirdetést.
Referencia szám: M318104
Hitel ajánlatok
Ingatlan hirdetés leírása
Eladó Lakás, Debrecen
Debrecen belvárosában a Bethlen utcán, 3 szobás lakás eladó!
Debrecen egyik kedvelt, központi részén, a Bethlen utcán kínálunk megvételre egy tíz emeletes épület 9. emeletén lévő, világos, tágas elrendezésű lakást. a környék infrastruktúrája kiemelkedő: busz- és villamosmegállók néhány perc sétára, a közelben üzletek, iskolák, gyógyszertár, valamint a belváros minden fontos szolgáltatása megtalálható. a társasház rendezett, jó lakóközösséggel rendelkezik.
Az ingatlan főbb jellemzői:
*Alapterület: 71 m2
*Emelet: 9. emelet/nem zárószint/
*Fűtés / melegvíz: távfűtés; a melegvíz a fűtésrendszeren keresztül biztosított? Költséghatékony és kiszámítható rezsivel
*Közös költség: 12 070 Ft
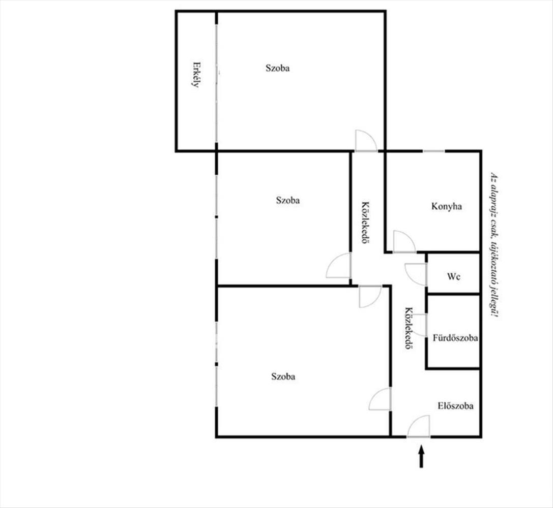
*Elrendezés:
-3 teljes értékű, különnyíló szoba
-konyha
-fürdőszoba
-külön WC
-előszoba
-közlekedő
*Erkély: az ingatlanhoz erkély tartozik, ahonnan hangulatos kilátás nyílik a Bethlen utcára innen akár a Virágkarnevál menete is megtekinthető
*Tárolás: a lakáshoz közös tárolóhelyiség is tartozik/3-4 lakás/tároló/
*Nyílászárók: fa nyílászárók
*Állapot: átlagos, utoljára átfogóbb korszerűsítés 2011-ben történt
Kinek ajánljuk?
Tökéletes választás mindazok számára, akik a belváros kényelmét, a kiváló közlekedést és a praktikus elrendezést szeretnék élvezni. Családoknak, egyetemistáknak és befektetőknek is ideális, mivel a környék keresett és a lakás könnyen bérbe adható.
Ha olyan lakást keres, amely értékálló, könnyen kiadható, ezt érdemes megnéznie! Az OTP Bankcsoport teljes körű ügyintézéssel áll az eladók és a vevők rendelkezésére.
Érd. Balla László +36 30 419 5022
Referencia szám: m318104 FIX 3% lakáshitelre megvehető

