Eladó felújított panel lakás Győr
| Kedvencbe | Megosztás | Árfigyelő |
| FIX 3% lakáshitelre megvehető | ||
| 54 990 000 HUF | ||
Ingatlan adatai
- Eladó vagy kiadó:Eladó
- Település:Győr
- Kategória:Lakás
- Alkategória:Panel
- Alapterület:54 m2
- Csere is:Nem
- Hirdető:Cég
- Élő videón megtekinthető:Nem
- Szobaszám:2 + 1 fél
- Állapot:Felújított
- Hány szintes az ingatlan:6 szintes
- Komfortosság:nincs megadva
- Hányadik emeleti:nincs megadva
- Parkolási lehetőség:Utcán
- Fűtés:Távfűtés
- Bútorozottság:nincs megadva
- Fényviszony:nincs megadva
- Tájolás:nincs megadva
- Kilátás:nincs megadva
- Internet:nincs megadva
- Klíma:Van
- Akadálymentesített:nincs megadva
- Energiatanúsítvány:nincs megadva
- Villany:nincs megadva
- Víz:nincs megadva
- Gáz:nincs megadva
- Csatorna:nincs megadva
- Üzenetküldés
- Hívás

Kömőcziné Mezei Henrietta
Mondd meg a hirdetőnek, hogy a megveszLAK-on találtad a hirdetést.

Hitel ajánlat
Ingatlan hirdetés leírása
Győr-Moson-Sopron vármegye, Győr, Adyváros, eladó 2 és fél szo...
Győr-Moson-Sopron vármegye, Győr, Adyváros, eladó 2 és fél szobás, erkélyes panellakás 4 emeletes társasházbanKIZÁRÓLAG irodánk KÍNÁLATÁBAN!
Győr, Adyváros, Ifjúság körúton eladó teljesen felújított lakás
A közelben posta, élelmiszerboltok, Győr Pláza, kórház, iskolák, óvodák, buszmegállók, mind-mind néhány perc sétára elérhető.
Földszinten saját tárolóval rendelkezik.
A társasház nem közvetlen az Ifjúság körútra néz, arra merőleges.
Parkolási lehetőség bőséges.
A 2 emeleten elhelyezkedő lakás 4 éve teljes – szakszerű, fotókkal dokumentált - felújítást kapott:
- erkély festése, burkolása, új korlát, üvegezés, kétoldali védő üvegezés szintén
- falak glettelése, festése, külső falak belülről történő szigetelése
- összes burkolat cseréje
- új konyha áthelyezésre került a hallba, így egy újabb fél szoba alakulhatott ki.
- Fürdőszobába új zuhanyzó és mosdó került
- wc burkolása (hátsó falára is megvan a csempe, a társasházi szennyvízvezeték cseréje után pótolható)
- villanyvezeték réz (32A)
- nagyobbik hálószoba álmennyezetet kapott hangulatos ledes világítással
- a kisebbik szobába és a nappaliba is hűtő-fűtő klíma került beszerelésre
- a radiátorok a legmodernebbre lettek cserélve (fűtése távhő)
- ablakok kétrétegű hő és hangszigeteltek, redőnnyel, szúnyoghálóval szereltek.
- Bejárati ajtó több ponton záródó műanyag, összes belső ajtó is új.
- Előszobákban (a konyhabútorral harmonizáló) hatalmas beépített szekrény segíti a tárolást
A lakás a fentiekkel felújítva megkapta a a+ os energetikai besorolást!
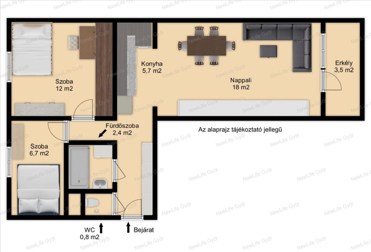
Elosztása: Nappali erkéllyel, hálószoba, egy félszoba, fürdőszoba nagy zuhanyzóval, külön wc, nagy előszoba.
A társasház tiszta, rendezett, lakói összetartó közösséget alkotnak.
Az ingatlanpiacon csak néhány ilyen igényesen felújított panellakás van a kínálatban, a mi ráadásul 4 emeletes társasházban van.
Ne maradjon le róla!
A jelen hirdetésben rögzített, az ingatlannal kapcsolatos adatok, információk az Eladó/Megbízó tájékoztatása alapján kerültek meghatározásra.
Irodánkban az alábbiakkal tudjuk segíteni a gyors és megbízható ügyintézést:
-bankfüggetlen hitelügyintézés, CSOK
-energetikai tanúsítvány
-építésztervezés
-értékbecslés
-ügyvédi szerződések, jogi tanácsadás FIX 3% lakáshitelre megvehető

