Eladó átlagos állapotú panel lakás - Hatvan
- INGYENES HIRDETÉS FELADÁS
Ingatlan adatai
- Eladó vagy kiadó:Eladó
- Település:Hatvan
- Kategória:Lakás
- Alkategória:Panel
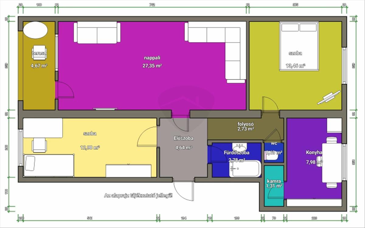
- Alapterület:71 m2
- Csere is:Nem
- Hirdető:Cég
- Élő videón megtekinthető:Nem
- Szobaszám:3
- Állapot:Átlagos állapotú
- Hány szintes az ingatlan:nincs megadva
- Komfortosság:nincs megadva
- Hányadik emeleti:nincs megadva
- Erkély:Van
- Lift:nincs megadva
- Parkolási lehetőség:nincs megadva
- Fűtés:Gáz (konvektor)
- Bútorozottság:Bútorozott
- Fényviszony:nincs megadva
- Tájolás:DK
- Kilátás:Utcai
- Internet:nincs megadva
- Klíma:nincs megadva
- Akadálymentesített:nincs megadva
- Energiatanúsítvány:nincs megadva
- Villany:nincs megadva
- Víz:nincs megadva
- Gáz:nincs megadva
- Csatorna:nincs megadva
- Kapcsolatfelvétel

Balog Dávid
+36-(70)-467-6818
Mondd meg a hirdetőnek, hogy a megveszLAK-on találtad a hirdetést.
Hitel ajánlatok
Ingatlan hirdetés leírása
Hatvan egyik felkapott környékén kínálok eladásra egy 71 négyz...
Hatvan egyik felkapott környékén kínálok eladásra egy 71 négyzetméteres, 3 szobás panel lakást, amely ideális választás lehet családosok számára. a lakás elrendezése jól használható, a terek élhetőek, a DK-i tájolásnak köszönhetően pedig kifejezetten világos.
A nappali tágas nappali szerepét is betölti, így kényelmes közösségi térként működik a mindennapokban. a három külön nyíló szoba lehetőséget ad arra, hogy minden családtagnak saját tere legyen. a lakás közepes állapotú, így új tulajdonosa saját igényei szerint alakíthatja tovább.
Extra:
-műanyag-nyílászáró
-műanyagredőny
-biztonsági ajtó
-laminált parketta
-beépített szekrény
Az ingatlanhoz 3 négyzetméteres erkély tartozik, ami kellemes kiegészítője a lakásnak, valamint külön tároló is rendelkezésre áll. a fűtést gázkonvektor biztosítja, a parkolás az utcán, közterületen megoldott.
A központi elhelyezkedésnek köszönhetően a mindennapi ügyintézés és közlekedés egyszerűen szervezhető, ami családosként külön előnyt jelent.
Hatvan városközponti része élhető, jól szervezett környezet, ahol a lakótelepi és kisebb társasházi épületek mellett intézmények és üzletek is megtalálhatók. a város ezen része a helyiek számára fontos központi szerepet tölt be, innen könnyen elérhetők a mindennapokhoz szükséges helyszínek.
A közelben megtalálható többek között a Tesco, Spar, valamint kisebb üzletek és szolgáltatók is, emellett a hatvani kórház és több oktatási intézmény is a városon belül gyorsan elérhető.
Közlekedés szempontjából Hatvan kiemelt helyzetben van: a vasútállomásról rendszeres járatok indulnak Budapest irányába, autóval pedig az M3-as autópálya gyors kapcsolatot biztosít a főváros felé.
Ha egy jól alakítható, családbarát lakást keresel Hatvanban, érdemes megnézned ezt az ingatlant. FIX 3% lakáshitelre megvehető
Tetszett ez az eladó Hatvani átlagos állapotú 3 szobás panel lakás? Hívd fel a hirdetőt most, és tudj meg mindent erről az eladó panel lakásról! Ha gondolod nézelődj tovább az eladó lakás Hatvan oldal hirdetései között. Ennek az eladó lakásnak az ára 52000000 Ft és mivel az alapterülete 71 négyzetméter, ezért az átlagos négyzetméterára 732394 HUF/m2.
Az eladó lakások menüpontban további hirdetések között is böngészhetsz. Ha van kedved, akkor böngészhetsz a Balog Dávid összes hirdetése között, vagy akár a/az Ingatlanmentor powered by Rock Home összes hirdetése között is.

