Eladó átlagos állapotú panel lakás - Hatvan
- INGYENES HIRDETÉS FELADÁS
Ingatlan adatai
- Eladó vagy kiadó:Eladó
- Település:Hatvan
- Kategória:Lakás
- Alkategória:Panel
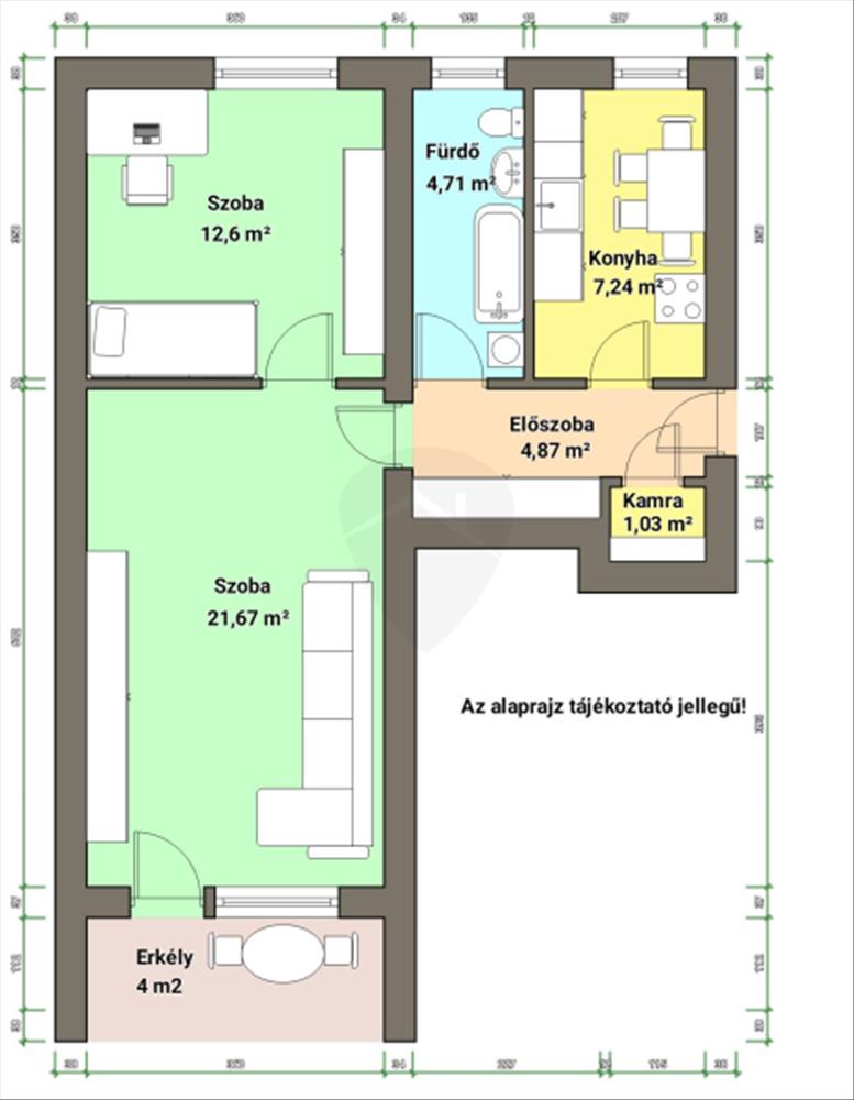
- Alapterület:55 m2
- Csere is:Nem
- Hirdető:Cég
- Élő videón megtekinthető:Nem
- Szobaszám:2
- Állapot:Átlagos állapotú
- Hány szintes az ingatlan:nincs megadva
- Komfortosság:nincs megadva
- Hányadik emeleti:nincs megadva
- Erkély:Van
- Lift:nincs megadva
- Parkolási lehetőség:nincs megadva
- Fűtés:Gáz (konvektor)
- Bútorozottság:nincs megadva
- Fényviszony:nincs megadva
- Tájolás:D
- Kilátás:Utcai
- Internet:nincs megadva
- Klíma:nincs megadva
- Akadálymentesített:nincs megadva
- Energiatanúsítvány:nincs megadva
- Villany:nincs megadva
- Víz:nincs megadva
- Gáz:nincs megadva
- Csatorna:nincs megadva
- Kapcsolatfelvétel

Horváth Tibor
+36-(70)-467-6871
Mondd meg a hirdetőnek, hogy a megveszLAK-on találtad a hirdetést.
Hitel ajánlatok
Ingatlan hirdetés leírása
Fedezd fel ezt a remek lehetőséget Hatvan központi részén, aho...
Fedezd fel ezt a remek lehetőséget Hatvan központi részén, ahol egy 55 négyzetméteres, 2 szobás panel lakás vár rád! Ez az ingatlan ideális választás, ha egy világos, barátságos otthonra vágysz, amelyben a mindennapok kényelmét élvezheted. Az ingatlan közepes állapotú, így lehetőséged van saját ízlésed szerint alakítani, és az erkélye, amely 4 négyzetméter, tökéletes helyszín a reggeli kávézásokhoz vagy a pihenéshez. a gázkonvektoros fűtés biztosítja a meleg otthont a hideg téli hónapokban is. a konyhában, fürdőszobában és a hálószobában már műanyag nyílászárók lettek beépítve, a nappaliban található ablak és teraszajtó vár cserére. a villany- és vízhálózat eredeti állapotú.
Közös költség 13. 500 Ft.
A Pázsit utcában található lakás, a környék ellátottsága kiváló. a közeli boltok, éttermek és szolgáltatások mindössze pár percnyi sétára találhatóak, így minden szükséges dolog kéznél van.
Közlekedés szempontjából is kedvező a helyzet, hiszen autóval és tömegközlekedéssel egyaránt könnyen megközelíthető. a közelben található buszmegállók révén a város többi része is gyorsan elérhető, így a napi ingázás sem jelenthet problémát. Budapest 1 órán belül szintén elérhető. Az utcán történő parkolás is megoldott, így a gépjárműved mindig kéznél lehet.
Ne habozz, ha felkeltette az érdeklődésedet ez a remek lakás! Kérlek, keress bátran, ha további kérdéseid lennének, vagy szeretnéd megtekinteni az ingatlant! FIX 3% lakáshitelre megvehető
Tetszett ez az eladó Hatvani átlagos állapotú 2 szobás panel lakás? Hívd fel a hirdetőt most, és tudj meg mindent erről az eladó panel lakásról! Ha gondolod nézelődj tovább az eladó lakás Hatvan oldal hirdetései között. Ennek az eladó lakásnak az ára 32000000 Ft és mivel az alapterülete 55 négyzetméter, ezért az átlagos négyzetméterára 581818 HUF/m2.
Az eladó lakások menüpontban további hirdetések között is böngészhetsz. Ha van kedved, akkor böngészhetsz a Horváth Tibor összes hirdetése között.

