Eladó jó állapotú panel lakás - Miskolc
- INGYENES HIRDETÉS FELADÁS
Ingatlan adatai
- Eladó vagy kiadó:Eladó
- Település:Miskolc
- Kategória:Lakás
- Alkategória:Panel
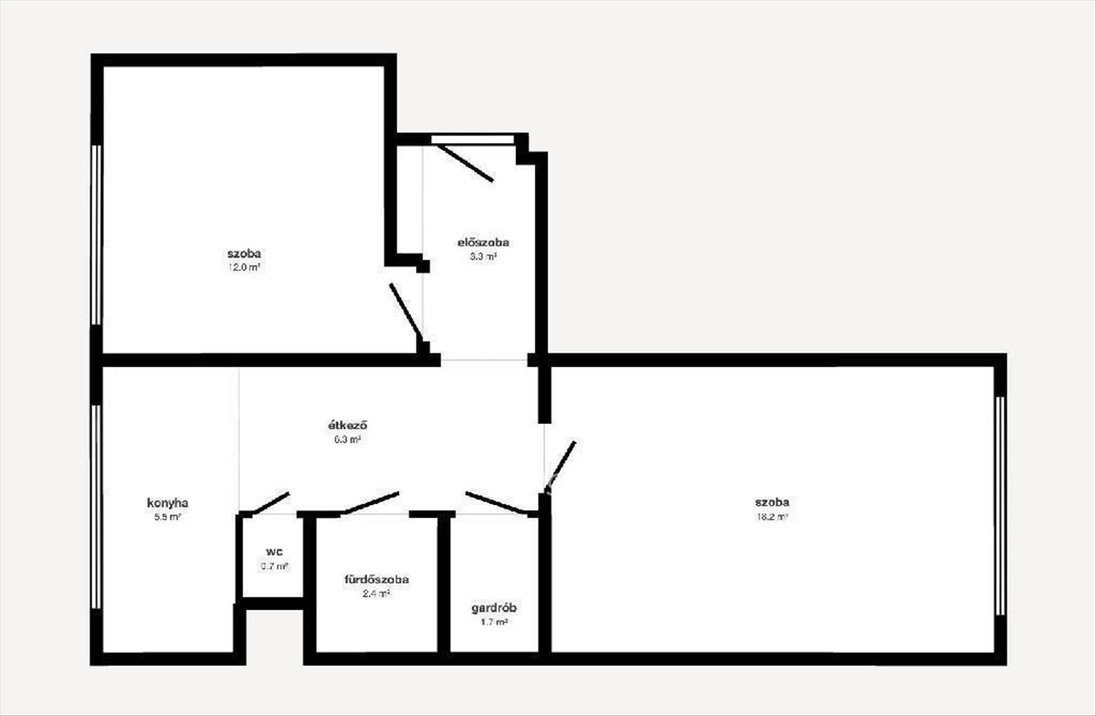
- Alapterület:51 m2
- Csere is:Nem
- Hirdető:Cég
- Élő videón megtekinthető:Nem
- Szobaszám:2
- Állapot:Jó állapotú
- Hány szintes az ingatlan:Földszintes
- Komfortosság:nincs megadva
- Hányadik emeleti:3
- Erkély:nincs megadva
- Lift:Nincs
- Parkolási lehetőség:nincs megadva
- Fűtés:Távfűtés
- Bútorozottság:nincs megadva
- Fényviszony:Jó
- Tájolás:nincs megadva
- Kilátás:nincs megadva
- Internet:nincs megadva
- Klíma:nincs megadva
- Akadálymentesített:nincs megadva
- Energiatanúsítvány:nincs megadva
- Villany:Van
- Víz:Van
- Gáz:nincs megadva
- Csatorna:Van
- Közös költség:10 000 Ft
- Kapcsolatfelvétel

Kovács Emese
+36-(70)-637-8125
Mondd meg a hirdetőnek, hogy a megveszLAK-on találtad a hirdetést.
Referencia szám: M318448
Hitel ajánlatok
Ingatlan hirdetés leírása
Eladó Lakás, Miskolc
Eladó lakás a kedvelt Győri kapuban, az Aba utcában! Csendes, zöldövezeti környezetben kínálom megvételre ezt a 51 nm-es, 2 szobás, jó elosztású lakást egy 4 emeletes társasház 3. emeletén. a környéket zöld övezet, nagy fák, friss levegő és rendezett, barátságos lakók jellemzik. a lakásban a vízvezeték már cserélve lett, a műanyag nyílászárók pedig gondoskodnak a kellemes hőérzetről és az alacsonyabb rezsiről. a lokáció kiváló: minden fontos szolgáltatás, tömegközlekedés, üzletek és iskolák könnyen elérhetők. a környéken a parkolás egyszerű, így autóval sem jelent kihívást a mindennapi közlekedés. Remek választás első otthonnak vagy befektetésnek is a jó lakóközösség és a keresett környék miatt! Az ingatlan alkalmas az otthon start hitelre is!
OTP Banki hátterünknek köszönhetően finanszírozási igényekben (pl. Otthon Start Hitelprogram, Babaváró, Falusi csok, CSOK Plusz, Lakáshitel, Személyi kölcsön stb. ), Illetve biztosítások tekintetében is díjmentesen, soron kívüli ügyintézéssel segítem ügyfeleim! Érdeklődése során hivatkozzon az m318448 referenciaszámra!
27900000 Ft
Referencia szám: m318448 FIX 3% lakáshitelre megvehető

