Eladó felújítandó panel lakás - Miskolc
- INGYENES HIRDETÉS FELADÁS
Ingatlan adatai
- Eladó vagy kiadó:Eladó
- Település:Miskolc
- Kategória:Lakás
- Alkategória:Panel
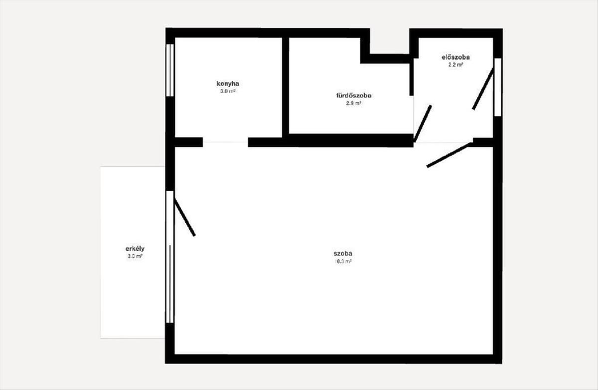
- Alapterület:28 m2
- Csere is:Nem
- Hirdető:Cég
- Élő videón megtekinthető:Nem
- Szobaszám:1
- Állapot:Felújítandó
- Hány szintes az ingatlan:Földszintes
- Komfortosság:nincs megadva
- Hányadik emeleti:4
- Erkély:nincs megadva
- Lift:Nincs
- Parkolási lehetőség:nincs megadva
- Fűtés:Távfűtés egyedi mérővel
- Bútorozottság:nincs megadva
- Fényviszony:Napfényes
- Tájolás:nincs megadva
- Kilátás:nincs megadva
- Internet:nincs megadva
- Klíma:nincs megadva
- Akadálymentesített:nincs megadva
- Energiatanúsítvány:nincs megadva
- Villany:Van
- Víz:Van
- Gáz:nincs megadva
- Csatorna:Van
- Közös költség:8 000 Ft
- Kapcsolatfelvétel

Piskóti Tibor Lajos
+36-(70)-322-2946
Mondd meg a hirdetőnek, hogy a megveszLAK-on találtad a hirdetést.
Referencia szám: M320853
Hitel ajánlatok
Ingatlan hirdetés leírása
Eladó Lakás, Miskolc
Miskolcon, a Klapka György utcában eladó egy 28 nm-es lakás, amely felújítandó állapotú, így a mai igényeknek megfelelően teljes mértékben átalakítható, ugyanakkor jelenlegi állapotában is lakható. Az ingatlan rendelkezik egy külső 5nm2-es tárolóval amit akar egybe lehet nyitni az ingatlannal így növelni lehet az ingatlan hasznos alapterületét, ehez szükség van az azonos szinten lakók beleegyező nyilatkozatára, Kiváló lehetőség mindazok számára, akik befektetésben gondolkodnak, vagy saját részre keresnek olyan ingatlant, amelyet teljesen a saját ízlésükre szeretnének formálni. a társasház lépcsőháza felújított, nagyon rendezett, a lakóközösség jó, a környék csendes és kifejezetten élhető. Az ingatlan elhelyezkedése kiváló, a közelben minden fontos szolgáltatás megtalálható, a közlekedés nagyon jó, valamint a lakásnál ingyenes parkolás biztosított. Az ingatlan azonnal birtokba vehető, rengeteg lehetőséget rejt magában, így hosszú távon is értékálló választás. Amennyiben az ingatlan felkeltette az érdeklődését, hívjon bizalommal és tekintsük meg együtt akár hétvégén is! OTP Banki hátterünknek köszönhetően finanszírozási igényekben (pl. Babaváró, csok, Felújítási hitel, stb. ) Is állunk ügyfeleink rendelkezésére. Az ingatlan előre egyeztetett időpontban megtekinthető, megbízható ügyvédi közreműködést, szerződéskötéshez irodai hátteret biztosítunk. Referencia szám: m320853 Az ingatlan megfelel az Otthon_Start_Program (Fix3% Lakáshitel Program) feltételeinek.
Referencia szám: m320853 FIX 3% lakáshitelre megvehető

