Eladó jó állapotú panel lakás - Miskolc
- INGYENES HIRDETÉS FELADÁS
Ingatlan adatai
- Eladó vagy kiadó:Eladó
- Település:Miskolc
- Kategória:Lakás
- Alkategória:Panel
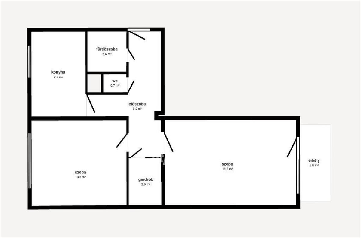
- Alapterület:55 m2
- Csere is:Nem
- Hirdető:Cég
- Élő videón megtekinthető:Nem
- Szobaszám:2
- Állapot:Jó állapotú
- Hány szintes az ingatlan:Földszintes
- Komfortosság:nincs megadva
- Hányadik emeleti:8
- Erkély:nincs megadva
- Lift:Van
- Parkolási lehetőség:nincs megadva
- Fűtés:Távfűtés
- Bútorozottság:nincs megadva
- Fényviszony:Napfényes
- Tájolás:nincs megadva
- Kilátás:nincs megadva
- Internet:nincs megadva
- Klíma:nincs megadva
- Akadálymentesített:nincs megadva
- Energiatanúsítvány:nincs megadva
- Villany:Van
- Víz:Van
- Gáz:nincs megadva
- Csatorna:Van
- Közös költség:11 000 Ft
- Kapcsolatfelvétel

Kégl Zsolt
+36-(70)-201-5061
Mondd meg a hirdetőnek, hogy a megveszLAK-on találtad a hirdetést.
Referencia szám: M323421
Hitel ajánlatok
Ingatlan hirdetés leírása
Eladó Lakás, Miskolc
Eladó kétszobás erkélyes klímás lakás! Eladó az Avas III. Ütem kedvelt részén a Klapka György utcában egy 55nm -es, kétszobás, erkélyes, klímás, jó állapotú, tehermentes panellakás! Két szobája laminált padló, a többi helyiség járólap burkolatú. Erkélyéről csodás panoráma nyílik Tokaj felé. a nyílászárók hőszigeteltek, bejárati ajtó kicserélve. a fürdőszoba felújításakor új akril fürdőkád került beszerelésre.
Jó elrendezésű tágas világos lakás, remek fekvéssel. Tömegközlekedés, üzletek, pékség és iskola pár percre. Közelben az avasi sportpálya, az arborétum és a kilátó. Parkolás a ház előtt ingyenes! Várom hívását hétvégén is!
OTP Banki hátterünknek köszönhetően finanszírozási igényekben (pl. Otthon Start Hitelprogram, Babaváró, Falusi csok, CSOK Plusz, Lakáshitel, Személyi kölcsön stb. ), Illetve biztosítások tekintetében is díjmentesen, soron kívüli ügyintézéssel segítem ügyfeleim! Referenciaszám: M323421
Virtuális séta: https://my. Matterport. Com/show/? M=dq5p40025qpkadrrb5bamn2kc&views=0&mls=1 FIX 3% lakáshitelre megvehető
Tetszett ez az eladó Miskolci jó állapotú 2 szobás panel lakás? Hívd fel a hirdetőt most, és tudj meg mindent erről az eladó panel lakásról! Ha gondolod nézelődj tovább az eladó lakás Miskolc oldal hirdetései között. Ennek az eladó lakásnak az ára 33900000 Ft és mivel az alapterülete 55 négyzetméter, ezért az átlagos négyzetméterára 616364 HUF/m2.
Az eladó lakások menüpontban további hirdetések között is böngészhetsz. Ha van kedved, akkor böngészhetsz a Kégl Zsolt összes hirdetése között, vagy akár a/az OTPip Miskolc Szemere Bertalan utca 20 - OTP Ingatlanpont Iroda összes hirdetése között is.

