- >>
- eladó ingatlanok
- >>
- eladó lakás
- >>
- eladó lakás Miskolc
- >>
Eladó jó állapotú panel lakás - Miskolc
| | |||
| Kedvencnek jelölöm | Elküldöm emailben | Megosztás | Szavazás |
| FIX 3% lakáshitelre megvehető | |||
| 35 900 000 HUF | |||
Ingatlan adatai
- Eladó vagy kiadó:Eladó
- Település:Miskolc
- Kategória:Lakás
- Alkategória:Panel
- Alapterület:54 m2
- Csere is:Nem
- Hirdető:Cég
- Élő videón megtekinthető:Nem
- Szobaszám:1 + 2 fél
- Állapot:Jó állapotú
- Hány szintes az ingatlan:Földszintes
- Komfortosság:nincs megadva
- Hányadik emeleti:7
- Lift:Van
- Parkolási lehetőség:nincs megadva
- Fűtés:Távfűtés
- Bútorozottság:nincs megadva
- Fényviszony:Napfényes
- Tájolás:nincs megadva
- Kilátás:nincs megadva
- Internet:nincs megadva
- Akadálymentesített:nincs megadva
- Energiatanúsítvány:nincs megadva
- Villany:Van
- Víz:Van
- Gáz:nincs megadva
- Csatorna:Van
- Közös költség:12 000 Ft
- Üzenetküldés
- Hívás

dr. Rohács Andrea
Mondd meg a hirdetőnek, hogy a megveszLAK-on találtad a hirdetést.
Referencia szám: M318013

Hitel ajánlat
Ingatlan hirdetés leírása
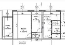
Miskolc, Kuruc utca, 54 nm-es, 1 + 2 félszobás lakás!
Panorámás Álomotthon a Bükk Lábánál! Eladó Felújított Lakás Miskolcon, Diósgyőrben!Azonnal költözhető, gyönyörűen felújított, világos otthon várja új tulajdonosát Miskolc közkedvelt részén, Diósgyőrben!
Főbb Jellemzők:
Elhelyezkedés: Miskolc, Kuruc utca, Diósgyőr
Alapterület: Ideális elosztású, 1 plusz 2 félszobás panel lakás.
Emelet: 7. emelet (10 emeletes épületben) Csend és kiváló kilátás garantált!
Állapot: felújított Csak költöznie kell!
Fűtés: Távfűtés Költséghatékony és megbízható!
Panoráma: Jó kilátás a Bükkre! Minden reggel a természet látványa fogadja. Beépített erkély.
Részletes Leírás:
Ez a Kuruc utcai lakás tökéletes választás mindazoknak, akik szeretnének egy csendes, zöldövezeti környezetben élni, de a város nyújtotta előnyökről sem mondanának le. a lakás teljeskörű felújításon esett át, melynek köszönhetően modern, fiatalos és energiatakarékos otthonná vált.
A praktikus elrendezésű, 1 egész és 2 félszobás lakás ideális választás lehet fiatal pároknak, kisebb családoknak vagy akár befektetésnek is. a 7. emeleti elhelyezkedésnek köszönhetően a zajszint minimális, a Bükk erdőre néző, festői panoráma pedig feledhetetlen élményt nyújt.
A lépcsőház rendezett, a szomszédok csendesek. Kiváló infrastruktúra: boltok, iskola, óvoda, orvosi rendelő, buszmegálló, villamosmegálló sétatávolságra található. a Diósgyőri vár közelsége és a Bükk erdei túraútvonalak lehetősége tovább növeli az ingatlan értékét.
Ne maradjon le erről a remek lehetőségről! Jöjjön el, nézze meg, és szeressen bele a panorámába!
Keressen bizalommal a részletekért és a megtekintés egyeztetéséért!
Referencia szám: m318013 FIX 3% lakáshitelre megvehető

