Eladó jó állapotú panel lakás - Miskolc
- INGYENES HIRDETÉS FELADÁS
Ingatlan adatai
- Eladó vagy kiadó:Eladó
- Település:Miskolc
- Kategória:Lakás
- Alkategória:Panel
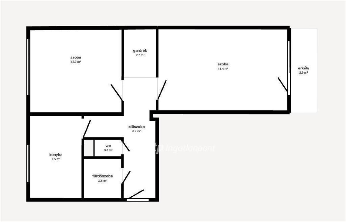
- Alapterület:55 m2
- Csere is:Nem
- Hirdető:Cég
- Élő videón megtekinthető:Nem
- Szobaszám:2
- Állapot:Jó állapotú
- Hány szintes az ingatlan:Földszintes
- Komfortosság:nincs megadva
- Hányadik emeleti:4
- Erkély:nincs megadva
- Lift:Van
- Parkolási lehetőség:nincs megadva
- Fűtés:Távfűtés
- Bútorozottság:nincs megadva
- Fényviszony:Napfényes
- Tájolás:nincs megadva
- Kilátás:nincs megadva
- Internet:nincs megadva
- Klíma:nincs megadva
- Akadálymentesített:nincs megadva
- Energiatanúsítvány:nincs megadva
- Villany:Van
- Víz:Van
- Gáz:nincs megadva
- Csatorna:Van
- Közös költség:11 000 Ft
- Kapcsolatfelvétel

Drótos Bence
+36-(30)-590-4195
Mondd meg a hirdetőnek, hogy a megveszLAK-on találtad a hirdetést.
Referencia szám: M319790
Hitel ajánlatok
Ingatlan hirdetés leírása
Eladó Lakás, Miskolc
Eladó Miskolc Avason a Szentgyörgy utca központi, jó lokációjú részén egy 55 nm-es, 2 különnyíló szobás + gardróbos, teljeskörűen felújított távfűtéses lakás 10 emeletes panelépület 4. emeletén. a felújítás érintette a nyílászárók cseréjét hőszigetelt műanyag ablakokra, új, több ponton záródó biztonsági bejárati ajtó került beszerelésre. a lakás teljeskörű gépészeti felújításon esett át.
A nappaliban egy vadonatúj, garanciális Gree hűtő-fűtő klíma gondoskodik a kellemes hőmérsékletről. Az erkélyen a burkolatok és üvegek cseréje megtörtént. a szobák laminált parkettával, a többi helyiség járólappal burkolt, a falak festettek.
A lakás kiváló elhelyezkedésű: a közelben boltok, iskola, óvoda, orvosi rendelő, posta és buszmegállók is kényelmes sétatávolságra találhatóak. a parkolás a ház körül ingyenesen megoldott.
Ideális választás fiatal pároknak, egyetemistáknak (a Miskolci Egyetem közelsége miatt) idősebb korosztálynak, befektetőknek, hiszen az ingatlan állapota miatt magas áron bérbe adható. Várom megtisztelő hívását akár hétvégén is! FIX 3% lakáshitelre megvehető

