Eladó átlagos állapotú panel lakás - Miskolc (93594838)
ELADÓ INGATLANOK
KIADÓ INGATLANOK
CSERE INGATLANOK
KÜLFÖLDI INGATLANOK
RÉSZLETES KERESÉS
INGATLAN HÍREK
HIRDETÉS FELADÁS
BELÉPÉS
REGISZTRÁCIÓ
hirdetés 1. fotó
hirdetés 2. fotóhirdetés 3. fotó
hirdetés 4. fotóhirdetés 5. fotó
hirdetés 6. fotó
+ 12 fotó
hirdetés 7. fotó
+ 9 fotó
hirdetés 7. fotóhirdetés 8. fotóhirdetés 9. fotóhirdetés 10. fotóhirdetés 11. fotóhirdetés 12. fotóhirdetés 13. fotóhirdetés 14. fotóhirdetés 15. fotó

Ingatlan adatai

  • Eladó vagy kiadó:Eladó
  • Település:Miskolc
  • Kategória:Lakás
  • Alkategória:Panel
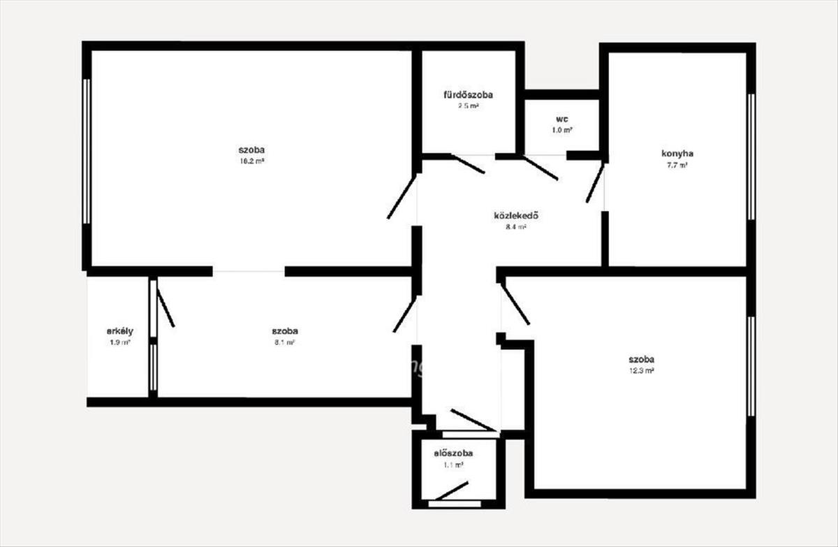
  • Alapterület:61 m2
  • Csere is:Nem
  • Hirdető:Cég
  • Élő videón megtekinthető:Nem
  • Szobaszám:2 + 1 fél
  • Állapot:Átlagos állapotú
  • Hány szintes az ingatlan:Földszintes
  • Komfortosság:nincs megadva
  • Hányadik emeleti:9
  • Erkély:nincs megadva
  • Lift:Van
  • Parkolási lehetőség:nincs megadva
  • Fűtés:Távfűtés
  • Bútorozottság:nincs megadva
  • Fényviszony:Napfényes
  • Tájolás:nincs megadva
  • Kilátás:nincs megadva
  • Internet:nincs megadva
  • Klíma:nincs megadva
  • Akadálymentesített:nincs megadva
  • Energiatanúsítvány:nincs megadva
  • Villany:Van
  • Víz:Van
  • Gáz:nincs megadva
  • Csatorna:Van
  • Közös költség:13 000 Ft
  • Kapcsolatfelvétel
Bányiczki Márk
Bányiczki Márk
+36-(30)-469-5044
Mondd meg a hirdetőnek, hogy a megveszLAK-on találtad a hirdetést.
Referencia szám: M322226
Érdekel kedvezményes lakáshitel ajánlat is
Az ASZF-et és az Adatkezelési tájékoztatót elfogadom

Hitel ajánlatok

 

Ingatlan hirdetés leírása

Eladó Lakás, Miskolc


Eladásra kínálunk Diósgyőr zöldövezeti részén egy 2, 5 szobás, erkélyes lakást. Az ingatlan átlagos állapotú, 1-2 hónapon belül költözhető. a nyílászárók cseréje megtörtént műanyag, hőszigetelt ablakokra. a társasház liftes, méretét és elosztását tekintve egyaránt alkalmas kis-, és nagycsaládosok számára is. Lokációját tekintve boltok, iskola, óvoda, tömegközlekedés pár perc sétával elérhető. Jöjjön és tekintsük meg együtt, akár hétvégén is! OTP Banki hátterünknek köszönhetően finanszírozási igényekben (pl. Otthon Start Hitelprogram, Babaváró, Falusi csok, CSOK Plusz, Lakáshitel, Személyi kölcsön stb. ), Illetve biztosítások tekintetében is díjmentesen, soron kívüli ügyintézéssel segítem ügyfeleim! Hívása során hivatkozzon az M322226-os referenciaszámra. FIX 3% lakáshitelre megvehető
 
 

Hasonló ingatlan hirdetések

 
 
© megveszLAK.hu - Az egyszerűen jó ingatlan hirdetési oldal