Eladó átlagos állapotú panel lakás - Szeged
- INGYENES HIRDETÉS FELADÁS
Ingatlan adatai
- Eladó vagy kiadó:Eladó
- Település:Szeged
- Kategória:Lakás
- Alkategória:Panel
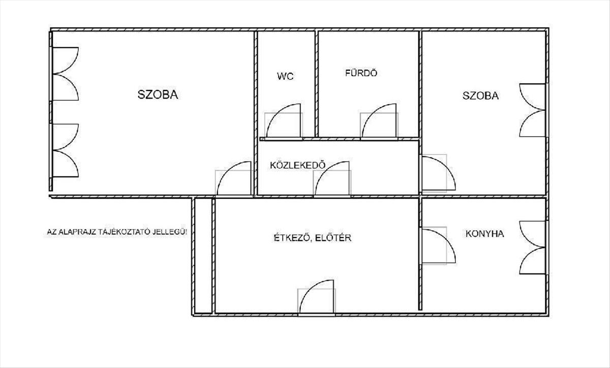
- Alapterület:53 m2
- Csere is:Nem
- Hirdető:Cég
- Élő videón megtekinthető:Nem
- Szobaszám:2
- Állapot:Átlagos állapotú
- Hány szintes az ingatlan:5 szintes
- Komfortosság:nincs megadva
- Hányadik emeleti:1
- Erkély:nincs megadva
- Lift:Nincs
- Parkolási lehetőség:nincs megadva
- Fűtés:Távfűtés
- Bútorozottság:nincs megadva
- Fényviszony:Napfényes
- Tájolás:nincs megadva
- Kilátás:nincs megadva
- Internet:nincs megadva
- Klíma:nincs megadva
- Akadálymentesített:nincs megadva
- Energiatanúsítvány:nincs megadva
- Villany:Van
- Víz:Van
- Gáz:nincs megadva
- Csatorna:Van
- Közös költség:6 100 Ft
- Kapcsolatfelvétel

Berényiné Annus Krisztina
+36-(30)-487-1084
Mondd meg a hirdetőnek, hogy a megveszLAK-on találtad a hirdetést.
Referencia szám: M319793
Hitel ajánlatok
Ingatlan hirdetés leírása
Eladó Lakás, Szeged, Eladó átlagos állapotú panel lakás - Szeged
Szeged, Felsővárosi 1. emeleti, 2 szoba+étkezős lakás eladó! a lakás közel a belvároshoz, a Tisza-part környékén, cseréptetős házban található, kiváló közlekedéssel, két külön nyíló szobával és étkezővel! a ház panelprogramos, hőszigetelt, nyílászárók cseréje megtörtént. Belsőlegesen némi felújítás ráfér, de most is lakható állapotban van. Minden működik, használható. Az otthon melegét távfűtés biztosítja, hőmennyiségmérővel. Valamint van egy hűtő - fűtő klíma, mely megfelelően temperálja a hőmérsékletet. Rendkívül alacsony a rezsi és a közös költség is alacsony! - Olcsón fenntartható lakás. Rendezett lakóközösség, ritkán cserélődnek a lakók, nyugalom van. a Belváros gyalog is pár perc alatt elérhető, a Tisza-part karnyújtásnyira van.
Az ingatlan megvásárlásához kedvező hitel is igényelhető, melynek intézéséhez szakszerű segítség áll a leendő vásárló rendelkezésére. Megtekintés előre egyeztetett időpontban lehetséges.
Referencia szám: m319793-ml FIX 3% lakáshitelre megvehető
Tetszett ez az eladó Szegedi átlagos állapotú 2 szobás panel lakás? Hívd fel a hirdetőt most, és tudj meg mindent erről az eladó panel lakásról! Ha gondolod nézelődj tovább az eladó lakás Szeged oldal hirdetései között. Ennek az eladó lakásnak az ára 49900000 Ft és mivel az alapterülete 53 négyzetméter, ezért az átlagos négyzetméterára 941509 HUF/m2.
Az eladó lakások menüpontban további hirdetések között is böngészhetsz. Ha van kedved, akkor böngészhetsz a Berényiné Annus Krisztina összes hirdetése között, vagy akár a/az OTPip Csongrád Fő utca 54 - OTP Ingatlanpont Iroda összes hirdetése között is.

