Eladó jó állapotú panel lakás - Tiszaújváros
- INGYENES HIRDETÉS FELADÁS
Ingatlan adatai
- Eladó vagy kiadó:Eladó
- Település:Tiszaújváros
- Kategória:Lakás
- Alkategória:Panel
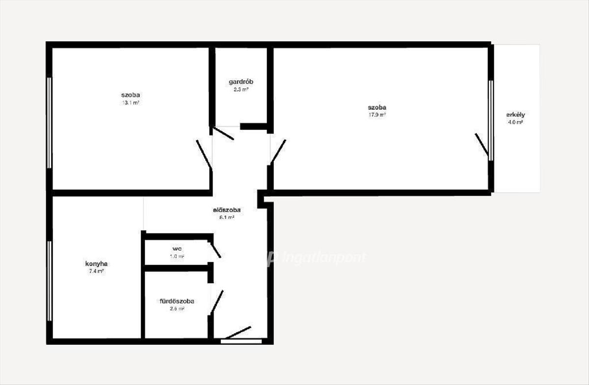
- Alapterület:55 m2
- Csere is:Nem
- Hirdető:Cég
- Élő videón megtekinthető:Nem
- Szobaszám:2
- Állapot:Jó állapotú
- Hány szintes az ingatlan:Földszintes
- Komfortosság:nincs megadva
- Hányadik emeleti:6
- Erkély:Van
- Lift:Van
- Parkolási lehetőség:nincs megadva
- Fűtés:Távfűtés
- Bútorozottság:nincs megadva
- Fényviszony:Napfényes
- Tájolás:D
- Kilátás:nincs megadva
- Internet:nincs megadva
- Klíma:nincs megadva
- Akadálymentesített:nincs megadva
- Energiatanúsítvány:nincs megadva
- Villany:Van
- Víz:Van
- Gáz:nincs megadva
- Csatorna:Van
- Közös költség:10 000 Ft
- Kapcsolatfelvétel

Nagy István György
+36-(20)-449-3075
Mondd meg a hirdetőnek, hogy a megveszLAK-on találtad a hirdetést.
Referencia szám: M317960
Hitel ajánlatok
Ingatlan hirdetés leírása
Eladó Lakás, Tiszaújváros
Eladó kétszobás lakás tiszaújvárosban! Eladó Tiszaújváros egyik legkedveltebb és legjobb fekvésű helyén, a Szent István úton egy 55 nm-es, kétszobás, erkélyes, gardróbos panellakás pincerésszel! Szobái külön nyílnak, ablakai hőszigeteltek. Az erkélyről csodás kilátás nyílik a közelben lévő tóra. Lépcsőháza tiszta rendes, a szomszédok kulturáltak. Üzletek, szolgáltatások, iskola pár percre. Kiváló lehetőség mindazoknak, akik a napi fáradalmak után egy kényelmes nyugodt otthonban szeretnék kipihenni magukat.
Várom hívását hétvégén is!
OTP Banki hátterünknek köszönhetően finanszírozási igényekben (pl. Otthon Start Hitelprogram, Babaváró, Falusi csok, CSOK Plusz, Lakáshitel, Személyi kölcsön stb. ), Illetve biztosítások tekintetében is díjmentesen, soron kívüli ügyintézéssel segítem ügyfeleim! Referenciaszám: M317960
Virtuális séta: https://my. Matterport. Com/show/? M=dn0uiquzkdekmhrfhm3w7m1zc&views=0&mls=1 FIX 3% lakáshitelre megvehető

