- >>
- eladó ingatlanok
- >>
- eladó mezőgazdasági ingatlan
- >>
- eladó mezőgazdasági ingatlan Budapest IX. kerület
- >>
Eladó pince - Budapest IX. kerület
| | |||
| Kedvencnek jelölöm | Elküldöm emailben | Megosztás | Szavazás |
| Kedvezményes lakáshitel ajánlatok | |||
| 25 000 000 HUF | |||
Ingatlan adatai
- Eladó vagy kiadó:Eladó
- Település:Budapest IX. kerület
- Kategória:Mezőgazdasági ingatlan
- Alkategória:Pince, présház
- Alapterület:nincs megadva
- Telekterület:nincs megadva
- Csere is:Nem
- Hirdető:Cég
- Élő videón megtekinthető:Nem
- Fűtés:nincs megadva
- Bútorozottság:nincs megadva
- Fényviszony:nincs megadva
- Tájolás:nincs megadva
- Internet:nincs megadva
- Akadálymentesített:nincs megadva
- Energiatanúsítvány:nincs megadva
- Villany:nincs megadva
- Víz:nincs megadva
- Gáz:nincs megadva
- Csatorna:nincs megadva
- Üzenetküldés
- Hívás

Referencia szám: TR013114

Hitel ajánlat
Ingatlan hirdetés leírása
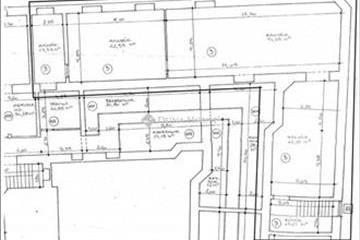
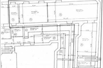
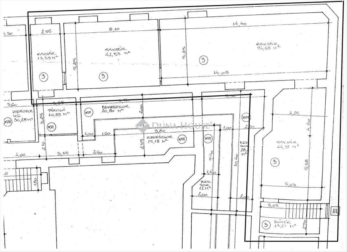
Eladó tároló/Raktár, Budapest 9. ker.
Az ingatlan egy öt emeletes társasház pince részét képezi, a Pápai István u. Felől önálló bejárattal rendelkezik. Az utcai bejárati ajtó acélszerkezetű, belső ajtók nincsenek. a belső helységek természetes megvilágítását felső ablakok biztosítják.Az aljazat borítása pvc, illetve beton. a falak vegyesen festett, műanyag lambériával borítottak. a korábbi vizes blokk csempével burkolt, de hiányosak.
Az ingatlan fűtéssel nem rendelkezik. Az albetét közművektől részben le van választva, fogyasztása önállóan mérhető.
Jelenleg használaton kívül ál, állapota közepes.
Parkolási lehetőség közterületen, a környező utcákban, díjköteles övezetben.
A Duna House teljes kínálatával kapcsolatban forduljanak hozzám bizalommal!
Bankfüggetlen pénzügyi szakembereink tanácsadással, ügyintézéssel tudják segíteni Önöket álmaik, céljaik megvalósításában!
Vegye igénybe díjmentes konzultációinkat!
Https://www. Facebook. Com/otthonkonnyeden
Referencia szám: tr013114 Hitel.hu - Hasonlítsa össze a bankok lakáshitel ajánlatait

