- >>
- eladó ingatlanok
- >>
- eladó ipari ingatlan
- >>
- eladó ipari ingatlan Debrecen
- >>
Eladó raktár - Debrecen
| | |||
| Kedvencnek jelölöm | Elküldöm emailben | Megosztás | Szavazás |
| Kedvezményes lakáshitel ajánlatok | |||
| 280 000 000 HUF | |||
Ingatlan adatai
- Eladó vagy kiadó:Eladó
- Település:Debrecen
- Kategória:Ipari ingatlan
- Alkategória:Raktár
- Alapterület:490 m2
- Telekterület:nincs megadva
- Csere is:Nem
- Hirdető:Cég
- Élő videón megtekinthető:Nem
- Építés éve:2023
- Hány szintes az ingatlan:nincs megadva
- Hányadik emeleti:nincs megadva
- Parkolási lehetőség:nincs megadva
- Energiatanúsítvány:nincs megadva
- Villany:nincs megadva
- Víz:nincs megadva
- Gáz:nincs megadva
- Csatorna:nincs megadva
- Üzenetküldés
- Hívás

Lovász Lajos László
Mondd meg a hirdetőnek, hogy a megveszLAK-on találtad a hirdetést.
Referencia szám: IP096292

Hitel ajánlat
Ingatlan hirdetés leírása
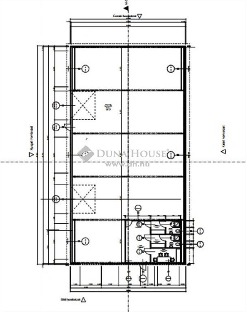
Eladó ipari, Debrecen
Debrecen északi felén, ipari környezetben eladó egy 490 m2 alapterületű, targoncázható, tehergépkocsikkal, kamionokkal, furgonokkal jól megközelíthető csarnok. a 35-ös út, illetve az M35-ös autópálya közelében található, nem messze a bmw gyártól. Az épület alapozása monolit vasbeton gerenda- sávalap. a csarnok acélvázas, szendvicspanel oldalfalú és fedésű. Belmagassága 6 m. Korszerű, nagy teherbírású ipari padozata biztosítja a nagy súlyú anyagok, áruk tárolását, targoncázását. a ki- betárolás 2 db ipari garázskapun keresztül történik. Fűtés klímaberendezésekkel van megoldva. a csarnok 80 m2-es területrésze 2, 7 m belmagasságú, melyben iroda, konyha, szociális helyiségek, tárgyaló találhatók. Ezek felett kézi-raktár, egyéb anyagtároló raktár áll rendelkezésre. a közútról az ipari terület ingatlantulajdonosai által kiépített közös használatú betonút vezet a telephelyhez. Az ingatlan szabályos négyzet alakú, kb. 1300 m2 telken található. Teljesen körbe van kerítve acéllemez kerítéssel. a csarnok bejáratai tehergépkocsival szilárd burkolatú, térkövezett udvarról közelíthetők meg. a telekre kétszárnyú automata kapun keresztül lehet bejutni. Közmű: árammal, vezetékes vízzel ellátva, szennyvíz egy tartályba megy. Az elektromos ellátás 3 x 60 a. Veszélyes anyagok kezelése, tárolása nincs engedélyezve. Www. Dh. HuReferencia szám: ip096292 Hitel.hu - Hasonlítsa össze a bankok lakáshitel ajánlatait

