- >>
- eladó ingatlanok
- >>
- eladó ipari ingatlan
- >>
- eladó ipari ingatlan Solymár
- >>
Eladó raktár - Solymár
| | |||
| Kedvencnek jelölöm | Elküldöm emailben | Megosztás | Szavazás |
| Kedvezményes lakáshitel ajánlatok | |||
| 355 000 000 HUF | |||
Ingatlan adatai
- Eladó vagy kiadó:Eladó
- Település:Solymár
- Kategória:Ipari ingatlan
- Alkategória:Raktár
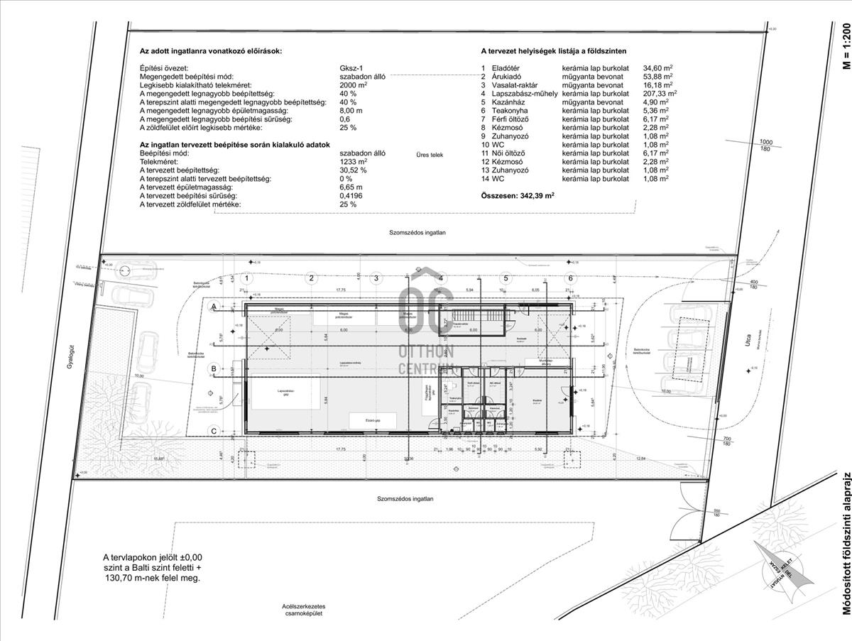
- Alapterület:500 m2
- Telekterület:1233 m2
- Csere is:Nem
- Hirdető:Cég
- Élő videón megtekinthető:Nem
- Építés éve:2023
- Hány szintes az ingatlan:nincs megadva
- Hányadik emeleti:nincs megadva
- Parkolási lehetőség:nincs megadva
- Energiatanúsítvány:nincs megadva
- Villany:nincs megadva
- Víz:nincs megadva
- Gáz:nincs megadva
- Csatorna:nincs megadva
- Üzenetküldés
- Hívás


Ingatlan hirdetés leírása
Eladásra kínálunk Solymár felé vezető,rendkívül forgalmas fő ú...
Eladásra kínálunk Solymár felé vezető, rendkívül forgalmas fő út(Bécsi út) mentén, ipari és kereskedelmi övezetben, 1233nm-es, teljesen sík telken elhelyezkedő, elképesztő adottságokkal bíró, br. 550Nm alapterületű épület komplexumot-kereskedelmi csarnok ingatlant. Az átmenő forgalom óriási, több települést és vidéket is valamint maga a Fővárost is ezen út mentén lehet elérni. Az épület 2023-ban épült, modern, a mai kor csúcs műszaki tartalmával, rendkívül igényes kivitelben. Ez év végére készül el, a vételár a teljesen befejezett árra vonatkozik. Jelenleg még a burkolatok és a szaniterek választhatóak. Található benne eladótér, iroda, szociális helyiség, valamint nagyméretű, akár szeparálható raktár helyiség is. Az emeleten 140nm-es egyben helyiség, ami akár több irodát vagy tárgyalót is magában foglalhat. Elől, hátul, oldalt több bejárattal is rendelkezik, a személyi bejárás és az anyagmozgatás szempontjait figyelembe véve került kialakításra. a telek utcafronti szélessége igen kényelmes, itt található a közel 7m fesztávú automata úszókapu is. Az ingatlan besorolása gksz, Ipari és Kereskedelmi tevékenység végzésére alkalmas. Szomszédságában kereskedelmi egységek, telephelyek a buszmegálló 100méterre található. Felülete teljesen sík, ipari viacolorral burkolt, minden oldalról újonnan elkerített.A főbb műszaki paraméterek:
-Komplett külső hőszigetelés
-Hőszivattyús padló fűtés illetve faincol
-46 Kw-os napelem rendszer, 102db panel
-3X63 A
-2 db ipari, automata, szekcionált kapu
-ipari, látszóbeton padló
-távfelügyelethez bekötött riasztó rendszer kamerával
Az ingatlan adottságából és elhelyezkedéséből többek közt tökéletes kereskedelmi, szolgáltató vagy ipari jellegű tevékenység végzésére. Hitel.hu - Hasonlítsa össze a bankok lakáshitel ajánlatait


