Eladó új építésű ház - Ajka
- INGYENES HIRDETÉS FELADÁS
Ingatlan adatai
- Eladó vagy kiadó:Eladó
- Település:Ajka
- Kategória:Ház
- Alkategória:Sorház
- Alapterület:98 m2
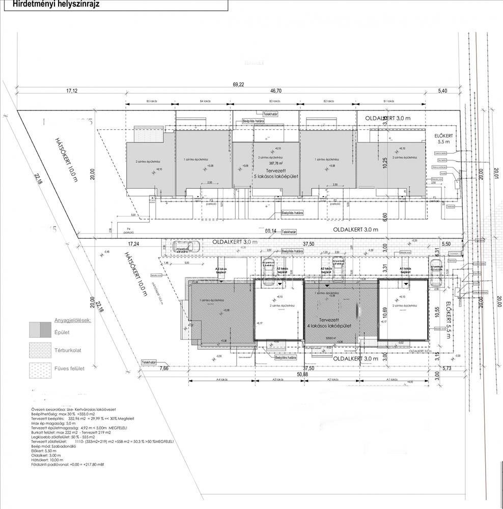
- Telekterület:119 m2
- Csere is:Nem
- Hirdető:Cég
- Élő videón megtekinthető:Nem
- Építés éve:2024
- Szobaszám:3
- Állapot:Új építésű
- Hány szintes az ingatlan:2 szintes
- Tetőtér:nincs megadva
- Komfortosság:Összkomfortos
- Pince:nincs megadva
- Parkolási lehetőség:nincs megadva
- Fűtés:Geotermikus
- Bútorozottság:nincs megadva
- Fényviszony:nincs megadva
- Tájolás:nincs megadva
- Kilátás:nincs megadva
- Internet:nincs megadva
- Klíma:nincs megadva
- Akadálymentesített:nincs megadva
- Energiatanúsítvány:nincs megadva
- Villany:nincs megadva
- Víz:nincs megadva
- Gáz:nincs megadva
- Csatorna:nincs megadva
- Kapcsolatfelvétel
Szélessy Georgina
+36-(70)-300-3560
Mondd meg a hirdetőnek, hogy a megveszLAK-on találtad a hirdetést.
Hitel ajánlatok
Ingatlan hirdetés leírása
Eladó sorház Ajka, Eladó új építésű ház - Ajka
Új építésű sorházak, ajka- BAKONYGYEPESEN!
Lakás mérete: 98, 13 m2
Az ingatlanhoz tartozó telek méret: 119, 85 m2
Kivitelezés, kezdése: 2023. IV. Negyedév
Kivitelezés várható befejezése: 2025. III. Negyedév
A hosszú kivitelezési időtartamot figyelembe véve, az árváltozás jogát a kivitelező fenntartja.
Az ingatlan helység méretei a következők:
FÖLDSZINT:
- szélfogó 4, 21 m2
- lépcsőház 5, 54 m2
- wc 1, 43 m2
- nappali 17, 22 m2
- étkező 9, 33 m2
- konyha 10, 80 m2
- gépészet 1, 65 m2
- terasz 5, 33 m2
EMELET
- közlekedő 4, 50 m2
- wc 1, 94 m2
- fürdő 5, 44 m2
- szoba 10, 89 m2
- szoba 14, 60 m2
- szoba 12, 23 m2
A telek egyben marad és használati megosztással, kerül az egyes kizárólagos használatú, telekrészek leválasztása, egy helyrajzi számon BELÜL.
MŰSZAKI TARTALOM:
Az épület alápincézetlen két szintes lapostetős épület.
Az épület vasalt sávalapokkal lesz alapozva. Az alapok felett lábazati fal készül 30 cm szélességgel zsalukőből, amelyre kifut a vasalt aljzat, betonhálóval. a vasalt aljzatbeton alatt
kavics feltöltés készül, geotextíliára.
Az épület vb pillérjei, betonfalai szerkezeti méretű oszlopokkal, vasalva, zsaluzva, illetve esetenként zsalukőből kialakítva.
FŐFALAK: 25 és 30 cm-es Porotherm n+f falazattal készülnek.
LAKÁSELVÁLASZTÓ falak: Leiertherm 25 cm-es dupla falazat, hangszigeteléssel.
ÁTHIDALÓK: monolit és kerámia áthidalók.
FÖDÉM: monolit vasbeton lemezek, szükséges áttörésekkel és attikaképzésekkel.
LÉPCSŐ: monolit vasbeton lépcső, amely főfalakra és a födémekre támaszkodik fel.
VÁLASZFALAK: Leier 10/50 cm-es válaszfaltéglából készülnek.
KORLÁTOK: külső erkélykorlátok saválló acél szerkezetek, illetve biztonsági üvegkorlátok minimum 95 cm magassággal, a kiviteli és a látványterveknek megfelelően.
A belső korlátok saválló acél szerkezetek illetve biztonsági üvegkorlátok
NYÍLÁSZÁRÓK: Homlokzati ablakok, erkélyajtók, bejárati ajtók- 5 kamrás, 70 mm-es szerkezeti vastagságú, Spectus hőhídmentes műanyag nyílászárók, kétrétegű melegperemes hőszigetelő
üvegezéssel, (Szerkezet határértke u=1, 15 W/m2K), külső oldali antracit színben, belső oldali fehér színben.
BEJÁRATI ajtó: Potsdam Glas 3 üveges díszpanel
PÁRKÁNYOK: Belül, fehér műanyag párkányok, kívül antracit színű alumínium lemezből készülő párkányok
ÁRNYÉKOLÁS: Vakolható tokos, műanyag szerkezetű, kombinált redőnyök (redőny + rolószúnyogháló) kézi működtetés, fehér színben
SZIGETELÉS: Talajpára ellen aljzatbetonra bitumenes szigetelő lemez teljes felületen lángolvasztással elhelyezve. a vizes helyiségekben használati víz elleni kétkomponensű, kent
szigetelés, hajlaterősítő szalaggal. Földszinten lépésálló hőszigetelés 13 cm vastag. Az emeleteken lépéshang gátló szigetelés 4 cm vastag. Homlokzati hőszigetelő rendszer
színvakolattal. Színvakolt részeken általában 15 cm vastagságban, eps 80 hőszigetelő lapokkal, ragasztóval és kiegészítő elemekkel készítve.
Lábazatra 10 cm –es xps hőszigetelés
kerül felrögzítésre, szilikonos lábazati vakolattal.
Lapostető egyenes rétegrendű pvc szigetelés, pontralejtéssel, attikafalak körbeszigetelésével, belső vízelvezetéssel, terhelés
nélkül, mechanikai rögzítéssel.
BÁDOGOS szerkezetek: festett alumínium lemez szegélyek és elemek, szakszerű rögzítéssel.
ALJZATBETON: helyszínen kevert gépi esztrich 6 és 7 cm vtg-ban,
Felületképzés: a belső falfelületeken vakolat, funkció szerint csempe ill. Diszperziós festés készül.
BELSŐ ajtók
Csak az opciós tételben leírt Classen ( egyeztetett időpontban megtekinthető) beltéri ajtók beépítését vállalja, a kivitelező. Minden egyéb Megrendelő által vásárolt/rendelt termék(ek) beépítése Megrendelő feladata.
OPCIÓ: Választható Classen típusú egyszárnyú „tele” beltéri nyíló ajtó: ajtólap: három oldalon falcolt, papírrács belső erősítésű ajtólap laminált felülettel (cpl) színm intából, normál kilinccsel.
Igény szerint üvegbetétes és alu csíkos kivitelben is rendelhető, mely külön árajánlat alapján rendelhető.
12 Cm falvastagság esetén bruttó 103. 000 Ft (98. 000 Ft/ajtó + 5. 000 Ft/kilincs),
32 cm falvastagság esetén bruttó 143. 000 Ft (138. 000 Ft/ajtó + 5. 000 Ft/kilincs),
BURKOLATOK
A hidegpadlós helyiségekben a tulajdonosok által kiválasztott kerámiaburkolat elhelyezése, a fürdő helyiségben csempe falburkolat ajtófélfa (2, 1m) magasságban burkolva,
a wc helyiségben csempe falburkolat 1, 5 m magasságig burkolva,
lábazatok a választott hidegburkolatból készülnek 7, 5 cm szélességben.
Választható hidegburkolatok egységára: bruttó 7. 000 Ft/m2,
tervek alapján
Melegpadlós helyiségekben a tulajdonos által kiválasztott laminált padlóburkolat létesül.
Választható meleg burkolatok + alátét fólia: bruttó 5. 000 Ft/m2, Kémény: nem készül, hőszivattyús fűtés
KERÍTÉS: hátsó kertek körbekerítve, 3d kerítéselemekkel, antracit színben.
VÍZ: Az utcai gerincvezetékről a telek ellátott, épületbe beállás készül.
GÁZ: Az utcai gerincvezetékről a telek ellátott, nem kerül kiépítésre.
ÁRAM: a szükséges energia ellátás az ingatlanra földkábeles becsatlakozási pontról, telepített szekrényből biztosított.
1X32 a (villamos mérőhelyeknek zsalukőfal kiépítése a
helyszínrajzokon jelölt előkertekben)
CSATORNA: Az utcai gerincvezetékről a telek ellátott, épületbe beállás készül.
FŰTÉS: Lakásonkénti hőszivattyú, padlófűtéses kivitelben.
BELTÉRI egység helye: a3 lakásnál, lakáson belül.
MELEGVÍZ ellátás: 100 L tárolós vízmelegítő.
GYENGEÁRAMÚ rendszerek: (telefon, internet, tv) kiépítését utcai rendszerekről, a területileg elérhető szolgáltatókkal, önállóan szerződéssel kell megoldani.
KLÍMA: Központi klimatizálás nem készül, előkészítés rendelhető árajánlat alapján.
GÉPÉSZETI szerelések:
A kétszintes lakásokban a víz és szennyvíz csövek a belső terekben, falon kívül kerülnek elvezetésre, gipszkarton dobozolással.
VÁLASZTHATÓ szaniterek és csaptelepek, valamint a felszerelendő szerelvények, az 1. Számú mellékletben találhatók
Az ár nem tartalmazza: kert rendezést, füvesítést, föld feltöltést.
A műszaki tartalom tájékoztató jellegű, a változás jogát fenntartjuk!
AMIBEN segíteni TUDUNK:
- Megbízható ügyvédi háttér,
- Energetikai tanúsítvány és ingatlan értékbecslés készítése,
INGYENES, bankfüggetlen hitelügyintézés,
- Állami támogatások: csok, Babaváró támogatás,
- Személyi kölcsönök,
- Megtakarítások, lakástakarék.
- Az elírások és a változtatások jogát fenntartjuk!
További információkért forduljon hozzám bizalommal, akár hétvégén is! :)
Kérem hivatkozzon irodai referencia számunkra!
Irodai referenciaszám: a3/ 311166
KERESÜNK eladó/kiadó ingatlanokat országszerte! FIX 3% lakáshitelre megvehető
Tetszett ez az eladó Ajkai új építésű 3 szobás sorház? Hívd fel a hirdetőt most, és tudj meg mindent erről az eladó sorházról! Ha gondolod nézelődj tovább az eladó ház Ajka oldal hirdetései között. Ennek az eladó háznak az ára 75000000 Ft és mivel az alapterülete 98 négyzetméter, ezért az átlagos négyzetméterára 765306 HUF/m2.
Az eladó házak menüpontban további hirdetések között is böngészhetsz. Ha van kedved, akkor böngészhetsz a Szélessy Georgina összes hirdetése között, vagy akár a/az Pannon Ingatlan és Hiteliroda összes hirdetése között is.

