Eladó új építésű ház - Balatonföldvár
- INGYENES HIRDETÉS FELADÁS
Ingatlan adatai
- Eladó vagy kiadó:Eladó
- Település:Balatonföldvár
- Kategória:Ház
- Alkategória:Sorház
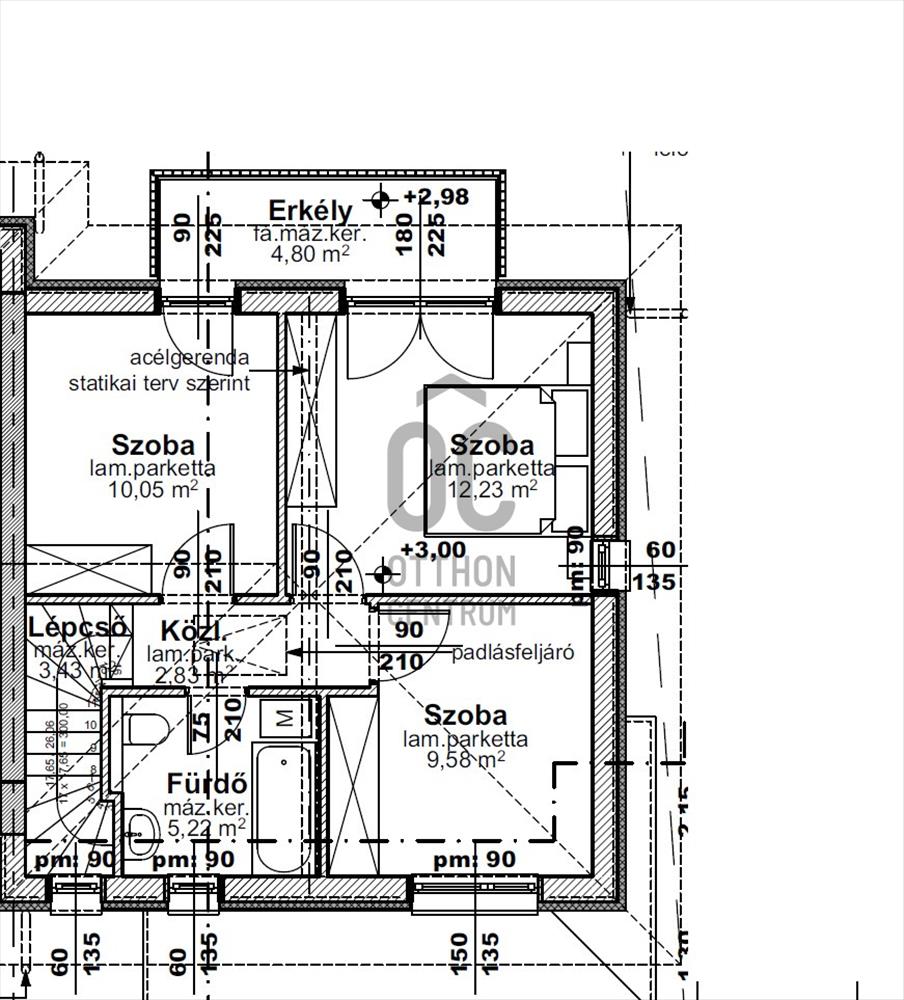
- Alapterület:104 m2
- Telekterület:300 m2
- Csere is:Nem
- Hirdető:Cég
- Élő videón megtekinthető:Nem
- Építés éve:2026
- Szobaszám:4
- Állapot:Új építésű
- Hány szintes az ingatlan:nincs megadva
- Tetőtér:nincs megadva
- Komfortosság:nincs megadva
- Pince:nincs megadva
- Parkolási lehetőség:nincs megadva
- Fűtés:nincs megadva
- Bútorozottság:nincs megadva
- Fényviszony:nincs megadva
- Tájolás:É
- Kilátás:nincs megadva
- Internet:nincs megadva
- Klíma:nincs megadva
- Akadálymentesített:nincs megadva
- Energiatanúsítvány:nincs megadva
- Villany:Van
- Víz:Van
- Gáz:Nincs
- Csatorna:Van
- Kapcsolatfelvétel

Hitel ajánlatok
Ingatlan hirdetés leírása
ÚJ ÉPÍTÉSŰ SORHÁZI LAKÁSOK BALATONFÖLDVÁRON a Kőröshegyi Völgy...
Új építésű sorházi lakások balatonföldváron a Kőröshegyi Völgyhíd alatti dinamikusan fejlődő lakóparkban
Balatonföldvár egyik legígéretesebb, újonnan kialakuló lakókörnyezetében épülő 4 lakásos sorházi lakásokat talált. Kivételes lokáció, modern építészet kialakuló új lakópark.
A projekt ideális választás saját otthonnak, nyaralónak, értékálló befektetésnek.
A projekt főbb JELLEMZŐI:
-4 lakásos, kis volumenű sorház
-modern, letisztult megjelenés
-privát terasz és kertkapcsolat
-családbarát, nyugodt környezet
-könnyű megközelíthetőség (m7, Balaton-part néhány perc)
A lokáció presztízsét az ikonikus völgyhíd közelsége és a Balaton-parti infrastruktúra biztosítja.
FINANSZÍROZÁSI LEHETŐSÉG
A lakások akár Otthon Start Program hitellel is megvásárolhatók, így ideális lehetőség első lakásvásárlóknak vagy tudatos befektetőknek is.
MIÉRT jó DÖNTÉS?
-Folyamatosan fejlődő környezet
-Értéknövekedési potenciál
-Kiváló kiadhatóság szezonálisan és hosszú távon is
#Balatonföldvár #BalatonÉletérzés #PanorámaOtthon #VölgyhídLátvány #BalatoniOtthon #ÚjÉpítésű
#ModernOtthon #Kertkapcsolat #TeraszÉlet #BalatonPart #OtthonAholJóLenni #ReggeliKávéATeraszon #NapfényesOtthon #BalatoniMindennapok #NyugalomÉsStílus
#LassabbRitmus #Értékálló #IngatlanBefektetés #LimitáltProjekt #Értéknövekedés #BiztosDöntés
#OtthonStartProgram #BalatoniIngatlan #PrémiumLokáció
Projekt bemutatása
ÚJ építésű sorházi lakások balatonföldváron a Kőröshegyi Völgyhíd alatti dinamikusan fejlődő lakóparkban
Balatonföldvár egyik legígéretesebb, újonnan kialakuló lakókörnyezetében épülő 4 lakásos sorházi lakásokat talált. Kivételes lokáció, modern építészet kialakuló új lakópark.
A projekt ideális választás saját otthonnak, nyaralónak, értékálló befektetésnek.
A projekt főbb JELLEMZŐI:
-4 lakásos, kis volumenű sorház
-modern, letisztult megjelenés
-privát terasz és kertkapcsolat
-családbarát, nyugodt környezet
-könnyű megközelíthetőség (m7, Balaton-part néhány perc)
A lokáció presztízsét az ikonikus völgyhíd közelsége és a Balaton-parti infrastruktúra biztosítja.
FINANSZÍROZÁSI LEHETŐSÉG
A lakások akár Otthon Start Program hitellel is megvásárolhatók, így ideális lehetőség első lakásvásárlóknak vagy tudatos befektetőknek is.
MIÉRT jó DÖNTÉS?
-Folyamatosan fejlődő környezet
-Értéknövekedési potenciál
-Kiváló kiadhatóság szezonálisan és hosszú távon is
#Balatonföldvár #BalatonÉletérzés #PanorámaOtthon #VölgyhídLátvány #BalatoniOtthon #ÚjÉpítésű
#ModernOtthon #Kertkapcsolat #TeraszÉlet #BalatonPart #OtthonAholJóLenni #ReggeliKávéATeraszon #NapfényesOtthon #BalatoniMindennapok #NyugalomÉsStílus
#LassabbRitmus #Értékálló #IngatlanBefektetés #LimitáltProjekt #Értéknövekedés #BiztosDöntés
#OtthonStartProgram #BalatoniIngatlan #PrémiumLokáció FIX 3% lakáshitelre megvehető
Tetszett ez az eladó Balatonföldvári új építésű 4 szobás sorház? Hívd fel a hirdetőt most, és tudj meg mindent erről az eladó sorházról! Ha gondolod nézelődj tovább az eladó ház Balatonföldvár oldal hirdetései között. Ennek az eladó háznak az ára 95000000 Ft és mivel az alapterülete 104 négyzetméter, ezért az átlagos négyzetméterára 913462 HUF/m2.
Az eladó házak menüpontban további hirdetések között is böngészhetsz. Ha van kedved, akkor böngészhetsz a Dienes László összes hirdetése között, vagy akár a/az Otthon Centrum Balatonföldvár összes hirdetése között is.
További hirdetéseket találsz az eladó Balaton déli parti nyaralók között. Ha a teljes régió kínálata érdekel, nézd meg az eladó Balatoni nyaralók oldalt.

