Eladó jó állapotú ház - Budapest XIV. kerület
- INGYENES HIRDETÉS FELADÁS
Ingatlan adatai
- Eladó vagy kiadó:Eladó
- Település:Budapest XIV. kerület
- Kategória:Ház
- Alkategória:Sorház
- Alapterület:126 m2
- Telekterület:234 m2
- Csere is:Nem
- Hirdető:Cég
- Élő videón megtekinthető:Nem
- Építés éve:1986
- Szobaszám:4
- Állapot:Jó állapotú
- Hány szintes az ingatlan:nincs megadva
- Tetőtér:nincs megadva
- Komfortosság:nincs megadva
- Pince:nincs megadva
- Parkolási lehetőség:nincs megadva
- Fűtés:Gáz (cirko)
- Bútorozottság:nincs megadva
- Fényviszony:nincs megadva
- Tájolás:NY
- Kilátás:nincs megadva
- Internet:nincs megadva
- Klíma:nincs megadva
- Akadálymentesített:nincs megadva
- Energiatanúsítvány:nincs megadva
- Villany:Van
- Víz:Van
- Gáz:Van
- Csatorna:Van
- Kapcsolatfelvétel

Szalontai Árpád
+36-(70)-716-8556
Mondd meg a hirdetőnek, hogy a megveszLAK-on találtad a hirdetést.
Hitel ajánlatok
Ingatlan hirdetés leírása
Prémium hangulatú sorházi lakás eladó Budapest XIV. kerület zö...
Prémium hangulatú sorházi lakás eladó Budapest XIV. kerület zöldövezeti részén – Alsórákos
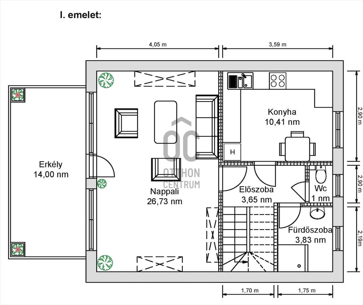
Budapest XIV. kerületében, Alsórákos csendes, zöldövezeti utcájában eladó egy 3 szintes, 4 szobás, műszakilag felújított sorházi otthon, 96 m² lakótérrel (garázs, nagy terasz és erkély ezen felül).
A kiváló lokáció miatt ideális választás családok számára:
villamos és busz pár perc sétára
óvoda, iskola közelben
zöld, nyugodt kertvárosi környezet
kiváló infrastruktúra
Az ingatlan 10 cm grafitos hőszigeteléssel, valamint megújult víz-, gáz-, fűtés- és lefolyórendszerrel rendelkezik. a cirkó fűtés és a napkollektoros rendszer együtt biztosítják a kedvező fenntartási költségeket.
Kiemelt érték a saját garázs szerelőaknával, amely ritkaság a környéken. FIX 3% lakáshitelre megvehető
Tetszett ez az eladó Budapest XIV. kerületi jó állapotú 4 szobás sorház? Hívd fel a hirdetőt most, és tudj meg mindent erről az eladó sorházról! Ha gondolod nézelődj tovább az eladó ház Budapest XIV. kerület oldal hirdetései között. Ennek az eladó háznak az ára 144900000 Ft és mivel az alapterülete 126 négyzetméter, ezért az átlagos négyzetméterára 1150000 HUF/m2.
Az eladó házak menüpontban további hirdetések között is böngészhetsz. Ha van kedved, akkor böngészhetsz a Szalontai Árpád összes hirdetése között, vagy akár a/az Otthon Centrum III. kerület - Flórián tér összes hirdetése között is.

