Eladó újszerű állapotú ház - Budapest XVI. kerület
- INGYENES HIRDETÉS FELADÁS
Ingatlan adatai
- Eladó vagy kiadó:Eladó
- Település:Budapest XVI. kerület
- Kategória:Ház
- Alkategória:Sorház
- Alapterület:120 m2
- Telekterület:241 m2
- Csere is:Nem
- Hirdető:Cég
- Élő videón megtekinthető:Nem
- Építés éve:2020
- Szobaszám:4
- Állapot:Újszerű, kitűnő
- Hány szintes az ingatlan:2 szintes
- Tetőtér:nincs megadva
- Komfortosság:nincs megadva
- Pince:nincs megadva
- Parkolási lehetőség:Garázsban
- Fűtés:Gáz (cirko)
- Bútorozottság:nincs megadva
- Fényviszony:nincs megadva
- Tájolás:nincs megadva
- Kilátás:nincs megadva
- Internet:nincs megadva
- Klíma:nincs megadva
- Akadálymentesített:nincs megadva
- Energiatanúsítvány:nincs megadva
- Villany:Van
- Víz:Van
- Gáz:Van
- Csatorna:Van
- Kapcsolatfelvétel

Mangult András
+36-(70)-382-8433
Mondd meg a hirdetőnek, hogy a megveszLAK-on találtad a hirdetést.
Hitel ajánlatok
Ingatlan hirdetés leírása
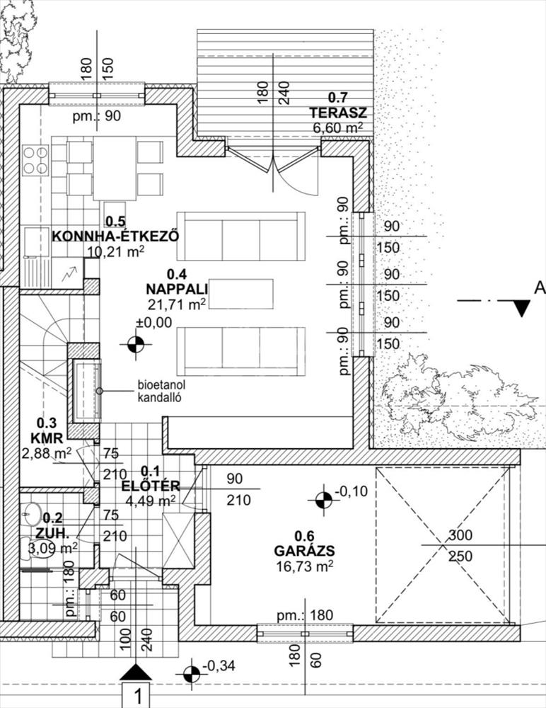
Eladó modern, napelemes sorház, szinte nulla rezsivel Mátyásfö...
Eladó modern, napelemes sorház, szinte nulla rezsivel Mátyásföld legszebb részén – tehermentes, azonnal költözhető!
Mátyásföld-Petőfi kertben természetvédelmi övezet mellett, eladó egy 6 éve épült, világos, korszerű, dél-nyugati fekvésű sorházi ingatlan.
A 98 nm-es lakótér mellett 17 nm-es fűtött garázs, 5 nm erkély, a földszinten 20 nm-es megnagyított terasz és 241 nm saját kert tartozik hozzá.
Tehermentes, azonnal költözhető!
Főbb jellemzők:
✅ Tágas nappali amerikai konyhával (32 nm) – beépített Whirlpool és Gorenje gépekkel.
✅ Összesen nappali+ 3 hálószoba.
✅ Beépített szekrények az emeleti szobákban.
✅ Két fürdőszoba – az alsó szinten zuhany, az emeleten sarokkád.
✅ Modern gépészet – padlófűtés (alsó szint és felső fürdő), radiátoros fűtés, Remeha kazán.
✅ Automata redőnyök és rolós/pliszé szúnyoghálók minden hálószobában.
✅ 241 Nm-es kert – pergolás, 20 nm-es fedett terasz, automata öntözőrendszer.
✅ Energiatakarékos megoldások – 5 kW-os napelem rendszer.
✅ Daikin hűtő-fűtő klíma.
✅ Közművek egyedi mérőórákkal.
✅ Biztonság – mozgás- és nyitásérzékelős riasztó.
Minőségi anyagokkal épült, háromrétegű üvegezésű nyílászárókkal, Porotherm falazattal és Dryvit szigeteléssel.
Megtekintéssel kapcsolatban, várom megtisztelő hívását!
Az ingatlan csak referenssel tekinthető meg!
A hirdetésben feltüntetett adatok és információk csak tájékoztató jellegűek, jogi kötelezettséggel nem bíró jognyilatkozatnak minősülnek, mely nem tekinthető ajánlat tételnek és nem járnak az eladóra nézve kötelező ajánlati kötöttséggel. Hitel.hu - Hasonlítsa össze a bankok lakáshitel ajánlatait

