Eladó új építésű ház - Budapest XVIII. kerület
- INGYENES HIRDETÉS FELADÁS
Ingatlan adatai
- Feladva:87 napja a megveszLAK-on
- Eladó vagy kiadó:Eladó
- Település:Budapest XVIII. kerület
- Kategória:Ház
- Alkategória:Sorház
- Alapterület:126 m2
- Telekterület:830 m2
- Csere is:Nem
- Hirdető:Cég
- Élő videón megtekinthető:Nem
- Építés éve:2025
- Szobaszám:4
- Állapot:Új építésű
- Hány szintes az ingatlan:Földszintes
- Tetőtér:nincs megadva
- Komfortosság:nincs megadva
- Pince:nincs megadva
- Parkolási lehetőség:nincs megadva
- Fűtés:Gáz (cirko)
- Bútorozottság:nincs megadva
- Fényviszony:Napfényes
- Tájolás:D
- Kilátás:nincs megadva
- Internet:nincs megadva
- Klíma:nincs megadva
- Akadálymentesített:nincs megadva
- Energiatanúsítvány:nincs megadva
- Villany:Van
- Víz:Van
- Gáz:Van
- Csatorna:Van
- Kapcsolatfelvétel

Gáspár Olivér
+36-(70)-653-2920
Mondd meg a hirdetőnek, hogy a megveszLAK-on találtad a hirdetést.
Referencia szám: HZ045831
Hitel ajánlatok
Ingatlan hirdetés leírása
Eladó ház, Budapest 18. ker.
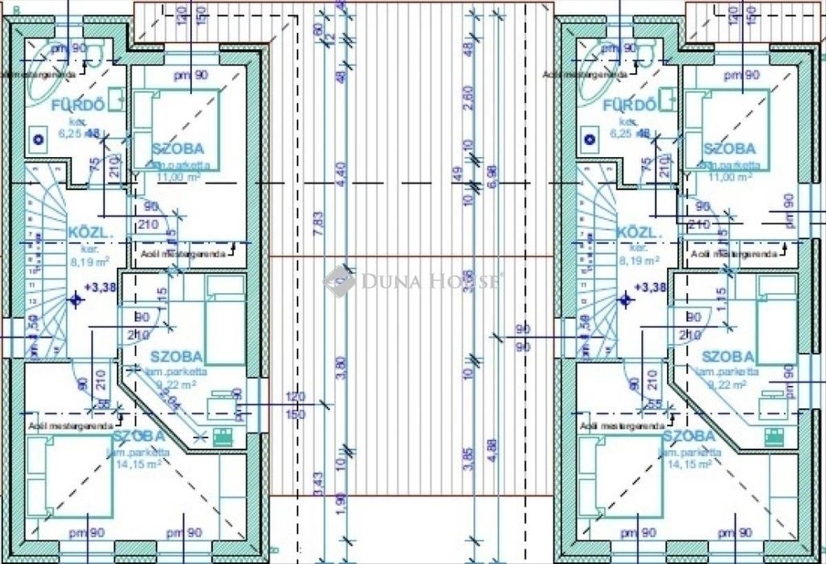
Szemeretelepen sarokteleken, háromlakásos modern sorház szélső és középső lakása eladóa lakásoknak nincs közös fala, mert a gépkocsitárolóknál kapcsolódnak! Az építkezés elkezdődött, de a fotók között a tulajdonos korábbi referenciái szerepelnek! a XVIII. kerület keresett, kertvárosias részén egy kiváló adottságú, közművesített saroktelek épül az új otthona. a tervek szerint egy háromlakásos, igényes megjelenésű, jól átgondolt alaprajzú sorház épül rá, mely szervesen illeszkedik a környező családi házas övezet hangulatához. a lakások jellemzőiA lakások külön bejáratúak, jól elkülönülnek egymástól, modern, családbarát alaprajzzal, és kertkapcsolattal rendelkeznek, saját garázzsal, tárolóval. a nappali + 3 hálószobás lakások méretben, elrendezésben teljesen megegyeznek, csak a kert mérete tesz különbséget köztük. a lakások nettó alapterülete 98, 13 nm , a garázs 19, 8 nm , a tároló 7, 8 nm . a lakások várható átadása: 2025. December. Földszint Hangulatos előkert felől megközelíthető bejárat, védett előtetővel. Fogadó előszoba praktikus elrendezéssel. Udvarra tájolt, napfényes nappali-étkező-konyha egy légtérben, ami ideális a családi együttlétekhez. Konyhához tartozó kamra a kényelmes tároláshoz. Utcafront felé néző, külön zuhanyzós fürdőszoba a földszinten vendégek vagy családtagok kényelmére. a nappaliból közvetlen kijárat egy teraszra, ami kiválóan alkalmas kerti étkezésekhez vagy pihenéshez. Kertkapcsolat, amely lehetővé teszi a zöld környezet élvezetét saját használatú udvarrész formájában. Egyállásos fedett gépkocsi-beálló és különálló külső tároló is tartozik a lakáshoz. emelet Tágas, kényelmes lépcsőház és közlekedő. Három külön nyíló, jól bútorozható hálószoba (14 nm , 11 nm , 9 nm ), ideális akár többgyermekes családoknak. Külön fürdőszoba a felső szinten. TelekTéglalap alakú, sík terep, építési szempontból optimális. Teljes közműellátottság: víz, csatorna, gáz, elektromos áram rendelkezésre áll. Környezet jellemzői: Nyugodt, családi házas övezet. Egy- és kétszintes szomszédos épületek, szabadon álló és oldalhatáros beépítési móddal, jellemzően előkertes kialakítással. Kifejezetten jól illeszkedik a tervezett ház tömegformálása és homlokzati kialakítása a már kialakult utcaképbe. a közvetlen szomszédos ingatlanok is szépen gondozottak, rendezett környezetet biztosítva. Kiváló közlekedési és infrastrukturális ellátottság. Kiváló választás Önnek, ha modern, családbarát otthont szeretne családjának! a részletekkel kapcsolatban várom jelentkezését! Hívjon, akár hétvégén is! FIX 3% lakáshitelre megvehető
Tetszett ez az eladó Budapest XVIII. kerületi új építésű 4 szobás sorház? Hívd fel a hirdetőt most, és tudj meg mindent erről az eladó sorházról! Ha gondolod nézelődj tovább az eladó ház Budapest XVIII. kerület oldal hirdetései között. Ennek az eladó háznak az ára 139900000 Ft és mivel az alapterülete 126 négyzetméter, ezért az átlagos négyzetméterára 1110317 HUF/m2.
Az eladó házak menüpontban további hirdetések között is böngészhetsz. Ha van kedved, akkor böngészhetsz a Gáspár Olivér összes hirdetése között, vagy akár a/az Duna House Zaragoza összes hirdetése között is.

