Eladó jó állapotú ház - Budapest XX. kerület
- INGYENES HIRDETÉS FELADÁS
Ingatlan adatai
- Eladó vagy kiadó:Eladó
- Település:Budapest XX. kerület
- Kategória:Ház
- Alkategória:Sorház
- Alapterület:73 m2
- Telekterület:1164 m2
- Csere is:Nem
- Hirdető:Cég
- Élő videón megtekinthető:Nem
- Építés éve:1970
- Szobaszám:3
- Állapot:Jó állapotú
- Hány szintes az ingatlan:2 szintes
- Tetőtér:nincs megadva
- Komfortosság:nincs megadva
- Pince:nincs megadva
- Parkolási lehetőség:Udvaron
- Fűtés:Gáz (konvektor)
- Bútorozottság:nincs megadva
- Fényviszony:Jó
- Tájolás:nincs megadva
- Kilátás:nincs megadva
- Internet:nincs megadva
- Klíma:nincs megadva
- Akadálymentesített:nincs megadva
- Energiatanúsítvány:D
- Villany:nincs megadva
- Víz:nincs megadva
- Gáz:nincs megadva
- Csatorna:nincs megadva
- Kapcsolatfelvétel

Kozári Tünde
+36-(70)-415-1013
Mondd meg a hirdetőnek, hogy a megveszLAK-on találtad a hirdetést.
Referencia szám: M315872
Ingatlan hirdetés leírása
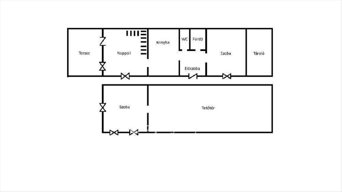
Eladó Ház, Budapest 20. ker.
Pesterzsébet Centrum. Erzsébetfalván eladó egy családi ház nappali plusz 2 háló, Terasz 20nm. Belső kertre néz. Saját kert használat 150 nm, gépkocsi beálló.
Részben felújított. Lehetőség van a további bővítésre a tetőtérből még egy szoba kialakítható. Az ingatlan osztatlan közös, ügyvédi megosztással.
Fűtés elektromos, melegvizet elektromos bojler biztosítja. a közelben iskola, óvoda, bevásárlási lehetőség, piac, orvos. Jó közlekedés.
Kihagyhatatlan lehetőség. Ajánlom családoknak, befektetőknek. Várom megtisztelő hívását!
Az OTP Ingatlanpont teljes körű ügyintézéssel áll az eladók és a vevők rendelkezésére! a kínálatunkból választott ingatlan finanszírozásához kedvezményes hitelkonstrukciókat kínálunk. Az adásvételi szerződés megkötéséhez igény szerint megbízható ügyvédi közreműködést biztosítunk, és segítséget nyújtunk az adásvételhez kapcsolódó ügyek intézéséhez.
Referencia szám: m315872 FIX 3% lakáshitelre megvehető


