Eladó új építésű ház Dunaharaszti
| Kedvencbe | Megosztás | Árfigyelő |
| FIX 3% lakáshitelre megvehető | ||
| 99 990 000 HUF | ||
Ingatlan adatai
- Eladó vagy kiadó:Eladó
- Település:Dunaharaszti
- Kategória:Ház
- Alkategória:Sorház
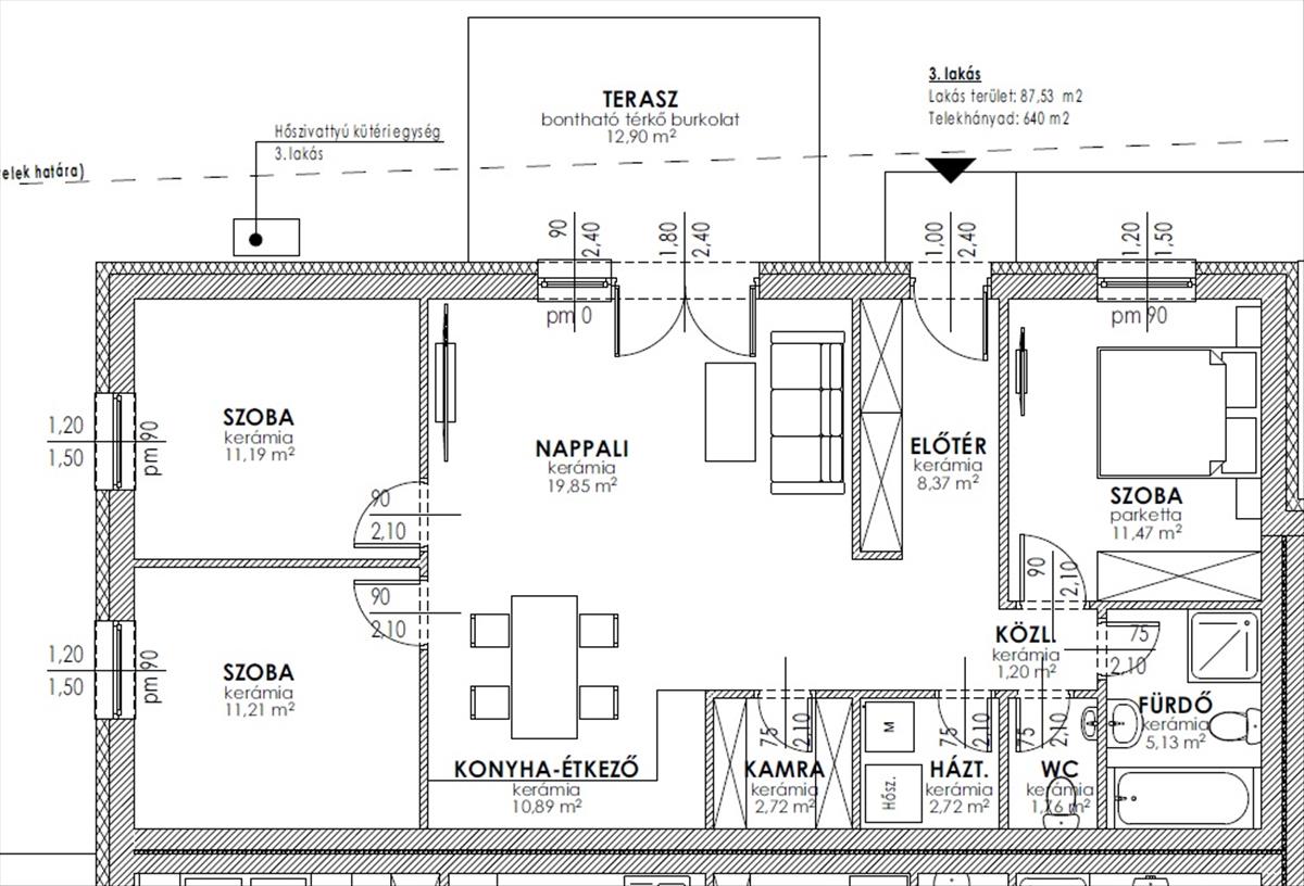
- Alapterület:88 m2
- Telekterület:640 m2
- Csere is:Nem
- Hirdető:Cég
- Élő videón megtekinthető:Nem
- Építés éve:2025
- Szobaszám:4
- Állapot:Új építésű
- Hány szintes az ingatlan:nincs megadva
- Tetőtér:nincs megadva
- Komfortosság:nincs megadva
- Pince:Nincs
- Parkolási lehetőség:Beállóban
- Fűtés:nincs megadva
- Bútorozottság:nincs megadva
- Fényviszony:nincs megadva
- Tájolás:nincs megadva
- Kilátás:nincs megadva
- Internet:Optikai
- Klíma:Van
- Akadálymentesített:nincs megadva
- Energiatanúsítvány:nincs megadva
- Villany:Van
- Víz:Van
- Gáz:nincs megadva
- Csatorna:Van
- Üzenetküldés
- Hívás

Hitel ajánlat
Ingatlan hirdetés leírása
Dunaharasztin a Millenium telepen hőszivattyús, modern sorháza...
Dunaharaszti Millenniumtelepen modern, energiatakarékos hőszivattyús 3-4 szobás sorházak csodás környezetben eladóak!Éljen a lehetőséggel! ! ! !
BEVEZETŐ áron kínáljuk eladásra Dunaharaszti egyik legkedveltebb lakóparkjában, igényes kivitelezésű, dupla fallal épült sorházainkat.
Hitel ügyintézéssel kapcsolatosan is azonnal rendelkezésére állunk!
CSOK igényelhető rá, akár első ház vásárlására is!
A bal hátsó ingatlan 86 nm-es, melyhez 335 nm-es telekrész tartozik, ára: 96. 990. 000. - Ft.
A jobb hátsó ingatlan 88 nm-es 640 nm-es telekhányaddal, melynek ára: 99. 990. 000. - Ft.
A beruházó számtalan referenciával RENDELKEZIK
Elosztását tekintve kiváló: az amerikai konyhás étkező-nappalin kívül, 3 hálószobával, fürdőszobával, külön wc-vel, kamrával rendelkeznek illetve terasszal.
A fűtésrendszer hőszivattyúval működtetett padlófűtéssel kerül kiépítésre, gazdaságossá téve a fogyasztást termosztátokkal. a meleg víz rendszer pedig hőszivattyús villanybojlerrel működik.
Napelem előkészítés. Elektromos autótöltő opcionálisan kérhető.
A falak 37, 5-s Ytong téglából épülnek, a padlástér pedig 25 cm-es szigeteléssel.
A tető fedése bramac betoncseréppel történik.
A nyílászárók 3 rétegű üvegezéssel ellátottak.
Fan coilos hűtéssel a lakásban.
ENERGETIKAI besorolás: A
Igény szerint, választhatók a burkolatok, a belső ajtók, szaniterek és a válaszfalak is még variálhatók.
A Hévmegálló és üzletek, duna-part néhány perces sétával elérhetők.
Az ingatlanok várható átadása: 2026. Április
A képek között a látványtervek, alaprajzok, helyszínrajzok szerepelnek.
Igényes, gondos, egyedi kivitelezés! Érdemes megtekinteni! Ne maradjon le róla!
Várjuk hívását! Amennyiben nem tudjuk felvenni a telefont, hamarosan visszahívjuk!
Hétvégén és esténként is nyugodtan kereshet bizalommal!
Független, ingyenes hitel-CSOK ügyintézéssel segítjük kedves Ügyfeleinket, igen kedvező hitelekkel 2025-ben!
Ha az ingatlan megvásárlásához el szeretné adni a jelenleg meglévő ingatlanját, ebben is nagyon szívesen segítünk. Az Ingatlancorner kft. Igen alacsony közvetítői díjjal, a legmagasabb színvonalon képviseli az Ön érdekeit.
Ellenőrzött prémium partnereink várják a hívását! FIX 3% lakáshitelre megvehető

