Eladó új építésű ház Dunaharaszti
| Kedvencbe | Megosztás | Árfigyelő |
| FIX 3% lakáshitelre megvehető | ||
| 104 900 000 HUF | ||
Ingatlan adatai
- Eladó vagy kiadó:Eladó
- Település:Dunaharaszti
- Kategória:Ház
- Alkategória:Sorház
- Alapterület:85 m2
- Telekterület:18 m2
- Csere is:Nem
- Hirdető:Cég
- Élő videón megtekinthető:Nem
- Építés éve:2025
- Szobaszám:4
- Állapot:Új építésű
- Hány szintes az ingatlan:Földszintes
- Tetőtér:nincs megadva
- Komfortosság:nincs megadva
- Parkolási lehetőség:nincs megadva
- Fűtés:Hőszivattyús
- Bútorozottság:nincs megadva
- Fényviszony:Napfényes
- Tájolás:DNY
- Kilátás:nincs megadva
- Internet:nincs megadva
- Akadálymentesített:nincs megadva
- Energiatanúsítvány:nincs megadva
- Villany:nincs megadva
- Víz:nincs megadva
- Gáz:nincs megadva
- Csatorna:nincs megadva
- Üzenetküldés
- Hívás

Referencia szám: HZ034945

Hitel ajánlat
Ingatlan hirdetés leírása
Eladó ház, Dunaharaszti
Eladó egy lenyűgöző sorházi lakás Dunaharasztiban, a Bezerédi lakóparkban, amely a letisztult formavilág és a precíz kivitelezés mellett a nyugalom és a kellemes környezeti adottságok kombinációját kínálja.Dunaharaszti tekintetében kiemelkedő az elhelyezkedése, hiszen Budapest közvetlen szomszédságában helyezkedik el, így ideális választás azok számára, akik a főváros közelében, mégis nyugodt, gyerekbarát környezetben szeretnének élni.
Budapest déli agglomerációjában a legkedveltebb város Dunaharaszti, gyors bejutással a főváros kerületeibe, mind autóval, mind tömegközlekedéssel.
A környéken megtalálható minden, ami a mindennapi élethez szükséges: bölcsőde, óvoda, iskola, kisboltok, szupermarketek, játszóterek és sportpálya is.
A társasház 9 lakásból áll, ahol mind a jó szomszédsági kapcsolatok, mind a gyönyörű, parkosított udvar garantálja a kellemes lakókörnyezetet.
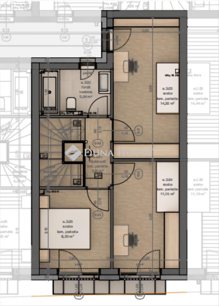
A sorházi kétszintes kertkapcsolatos lakás 85, 69 négyzetméteres.
Az ingatlan tégla szerkezetű, 2025-ben épül és egy zárt lakópark részét képezi, kaputelefonnal és elektromos kapubeállóval, ennek lehetőség kiépítve.
A felszíni autóbeállási lehetőség, a gyönyörűen parkosított udvar és a kamerarendszer előkészítése mind hozzájárulnak ahhoz, hogy itt nem csak biztonságos, hanem kényelmes és élhető otthont találjon az új tulajdonos.
A lakás napfényes, udvarra néző, és a modern fűtési megoldásokat mint a hőszivattyú és a két darab klíma teljes mértékben kihasználva kínálja a kényelmet.
A földszinten helyezkedik el a tágas nappali, amely egybe van nyitva a konyha és étkezővel. Továbbá egy előtér, egy fürdőszoba WC-vel és egy háztartási helyiség helyezkedik itt el.
Az emeleten található három hálószoba, egy közlekedő, valamint egy további fürdőszoba WC-vel.
A padláson tárolóhelyiség áll rendelkezésre.
Minden szinten magas minőségű anyagokkal és kivitelezéssel találkozhatunk, ami biztosítja az otthon kellemes és nyugodt légkörét.
A kertkapcsolat pedig garantálja a kikapcsolódást, a baráti összejövetelek helyszínét, gyermekeknek pedig a mindennapi szórakozást.
Ingatlanban válaszható a hideg/meleg burkolat, beltéri ajtó színe.
Az ingatlan CSOK hitelre is megvásárolható és rugalmasan megtekinthető!
Az ingatlan finanszíroztatásában is tudunk segíteni, bankfüggetlen szakértőink segítségével, mely szolgáltatás díjmentes!
Keressen bizalommal további információért, megtekintés egyeztetéséért!
Ingatlan eladás és vétel teljes körű ügyintézése, megbízható ügyvédi háttér biztosítása, ingyenes ingatlan tanácsadás, teljes körű és gyors bankfüggetlen hitelügyintézés, biztosítás, energetikai tanúsítvány akár hozott ingatlanra is az ország piacvezető ingatlanközvetítő hálózatának támogatásával!
Amennyiben felkeltettem érdeklődését, várom hívását!
Érd. : Hegedűs Tamás tel. : +36/30-416-7090 Email: tamas. Hegedus@dh. Hu
Referencia szám: hz034945 FIX 3% lakáshitelre megvehető

