- >>
- eladó ingatlanok
- >>
- eladó ház
- >>
- eladó ház Gyula
- >>
Eladó újszerű állapotú ház - Gyula
| | |||
| Kedvencnek jelölöm | Elküldöm emailben | Megosztás | Szavazás |
| FIX 3% lakáshitelre megvehető | |||
| 92 000 000 HUF | |||
Ingatlan adatai
- Eladó vagy kiadó:Eladó
- Település:Gyula
- Kategória:Ház
- Alkategória:Sorház
- Alapterület:126 m2
- Telekterület:171 m2
- Csere is:Nem
- Hirdető:Cég
- Élő videón megtekinthető:Nem
- Építés éve:1980
- Szobaszám:2 + 3 fél
- Állapot:Újszerű, kitűnő
- Hány szintes az ingatlan:3 szintes
- Tetőtér:nincs megadva
- Komfortosság:nincs megadva
- Parkolási lehetőség:Garázsban
- Fűtés:Gáz (cirko)
- Bútorozottság:Bútorozott
- Fényviszony:Napfényes
- Tájolás:D
- Kilátás:nincs megadva
- Internet:nincs megadva
- Klíma:Van
- Akadálymentesített:nincs megadva
- Energiatanúsítvány:nincs megadva
- Villany:Van
- Víz:Van
- Gáz:Van
- Csatorna:Van
- Üzenetküldés
- Hívás

Referencia szám: M311586

Hitel ajánlat
Ingatlan hirdetés leírása
Eladó Ház, Gyula, Eladó újszerű állapotú ház - Gyula
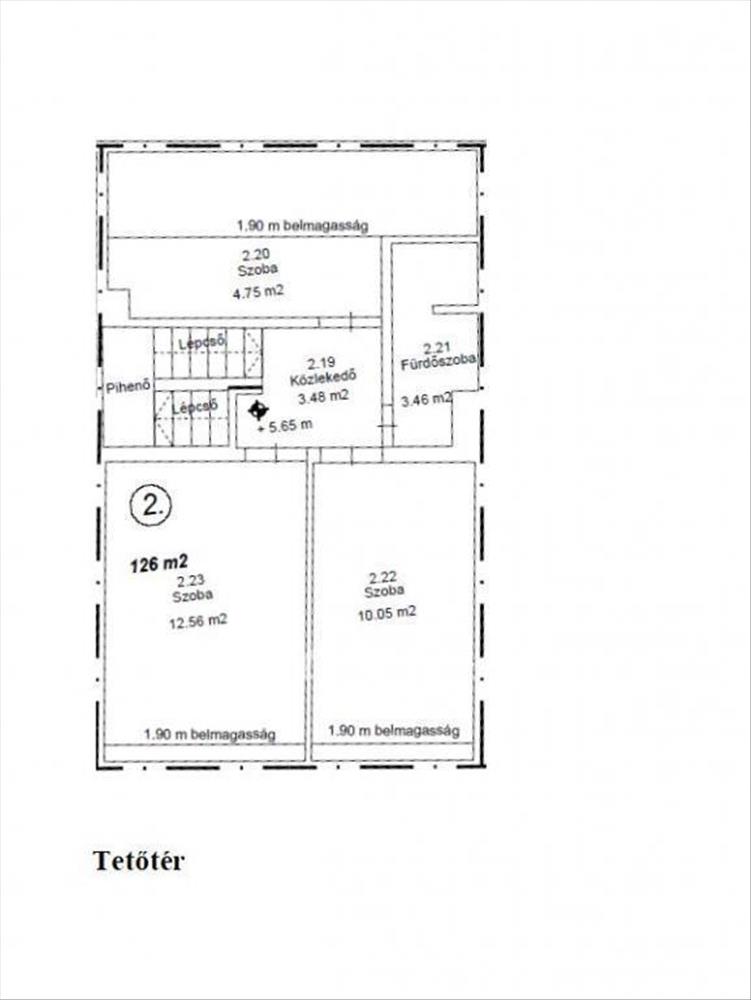
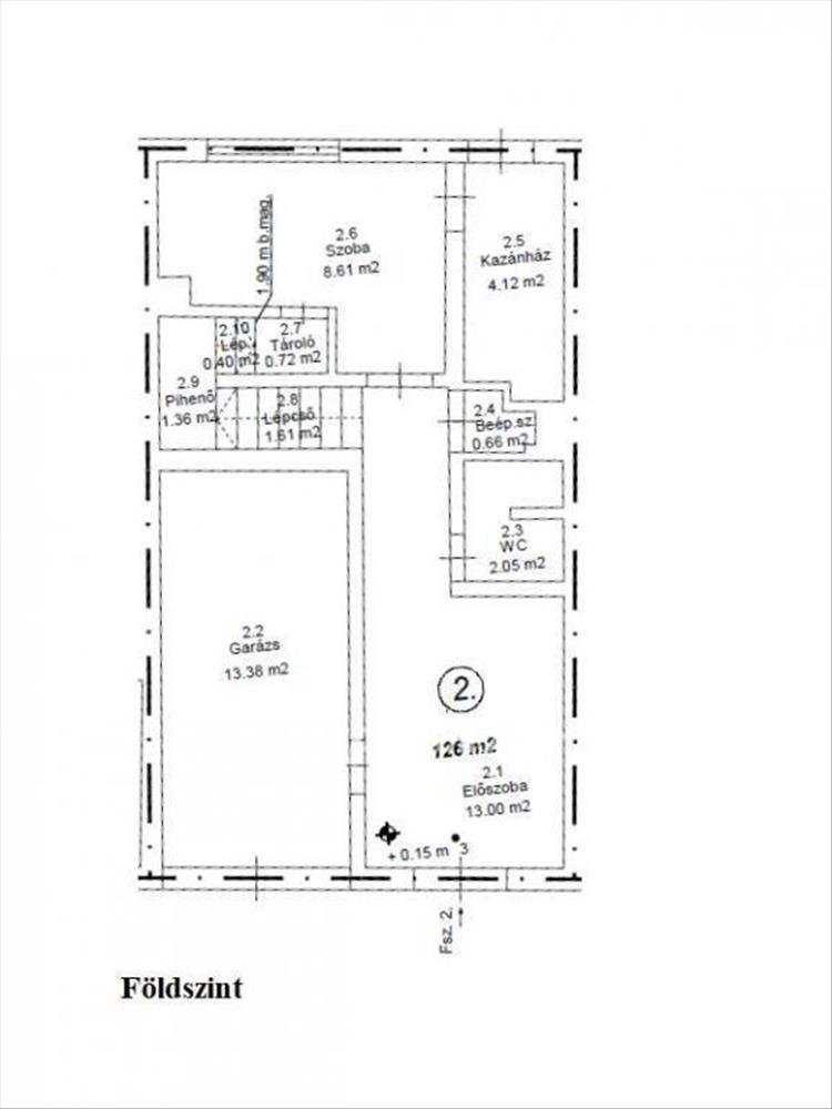
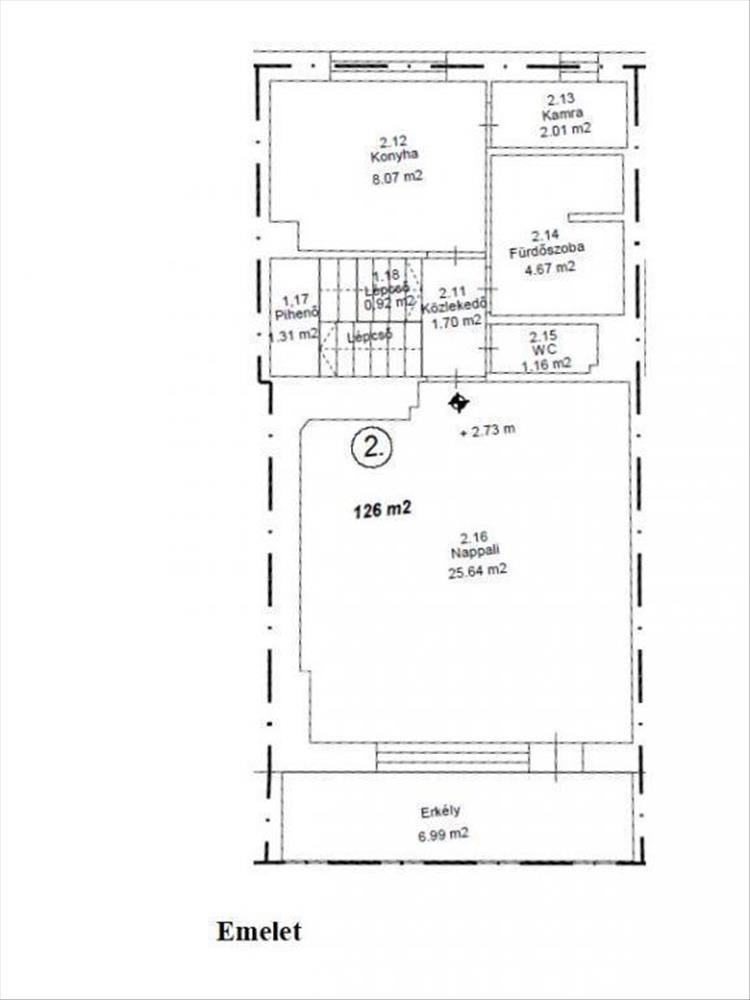
Gyulán, a Vár és a Várfürdő közvetlen közelében kínálok eladásra egy 126 nm-es téglából épült, háromszintes kiváló állapotú sorházat. Az ingatlan földszintjén elektromosan nyitható, zárt garázs, egy szoba, előszoba és egy wc található. Az első emeleten tágas, 25 nm-es nappali kapott helyet, amelyhez kényelmes terasz kapcsolódik. Itt található még a konyha, valamint külön fürdőszoba és wc is. a tetőtérben három hálószoba (két félszoba és egy nagyobb szoba), valamint fürdőszoba WC-vel szolgálja a kényelmet. a ház kívülről és a tető is hőszigetelt, emellett 2, 5 kW-os napelemrendszer gondoskodik az energiatakarékosságról. a fűtésről többféle megoldás gondoskodik: gázkazán, vegyes tüzelésű kazán, valamint két hűtő-fűtő klíma. a modern kényelmet növeli a minden szinten kiépített központi porszívórendszer, az ablakok szúnyoghálóval ellátott és elektromos redőnnyel felszereltek. Ingatlanhoz tartozik igény szerint leválasztható közös udvar, amit egy fedett teraszról élvezhetünk. Az ház teljes bútorzattal és gépesített konyhával együtt eladó, így az új tulajdonos azonnal birtokba veheti. Igény esetén hitelügyintéző kollégánk tájékoztatja Önt a jelenleg elérhető legkedvezőbb feltételekről.Érd: Orova Zsuzsanna 30-9991611
Referencia szám: m311586 FIX 3% lakáshitelre megvehető

