Eladó jó állapotú ház - Komárom
- INGYENES HIRDETÉS FELADÁS
Ingatlan adatai
- Eladó vagy kiadó:Eladó
- Település:Komárom
- Kategória:Ház
- Alkategória:Sorház
- Alapterület:143 m2
- Telekterület:300 m2
- Csere is:Nem
- Hirdető:Cég
- Élő videón megtekinthető:Nem
- Szobaszám:4
- Állapot:Jó állapotú
- Hány szintes az ingatlan:nincs megadva
- Tetőtér:nincs megadva
- Komfortosság:Komfortos
- Pince:Nincs
- Parkolási lehetőség:Nincs
- Fűtés:Gáz (konvektor)
- Bútorozottság:nincs megadva
- Fényviszony:nincs megadva
- Tájolás:nincs megadva
- Kilátás:Utcai
- Internet:nincs megadva
- Klíma:nincs megadva
- Akadálymentesített:nincs megadva
- Energiatanúsítvány:nincs megadva
- Villany:Van
- Víz:Van
- Gáz:Van
- Csatorna:Van
- Kapcsolatfelvétel

Nagy Edit
+36-(30)-622-6317
Mondd meg a hirdetőnek, hogy a megveszLAK-on találtad a hirdetést.
Hitel ajánlatok
Ingatlan hirdetés leírása
Eladó Sorház, Komárom, 143nm, 86400000 Ft
Kulcsrakész, azonnal költözhető otthonok Komárom szőnyi városrészében!
Csendes, barátságos lakóövezetben, saját telekkel rendelkező, új építésű sorházi lakások várják új tulajdonosaikat – most jelentős árkedvezménnyel + 3%-os hitellel és akár lakás beszámítással is!
A Dot-Ing ingatlan- és hiteliroda kiemelt kínálatában olyan otthonokat talál, amelyek egyszerre kínálnak modern kényelmet, fenntartható technológiát és minőségi életstílust.
Miért különleges ez az ajánlat?
•Kiváló ár-érték arány
•Saját, körbekerített telek
•Térkő burkolatú udvarrész + kerti tároló
•Környezettudatos építőanyagok és technológia
•Modern, energiatakarékos megoldások
•Használatbavételi engedéllyel rendelkezik – kulcsrakész, azonnal költözhető!
Életérzés, amit nyújt:
Reggel a saját kertjében kávézhat, gyermekei szabadon játszhatnak a biztonságos udvaron, Ön pedig nyugodt, harmonikus környezetben élhet – mindezt az iskola közvetlen közelében.
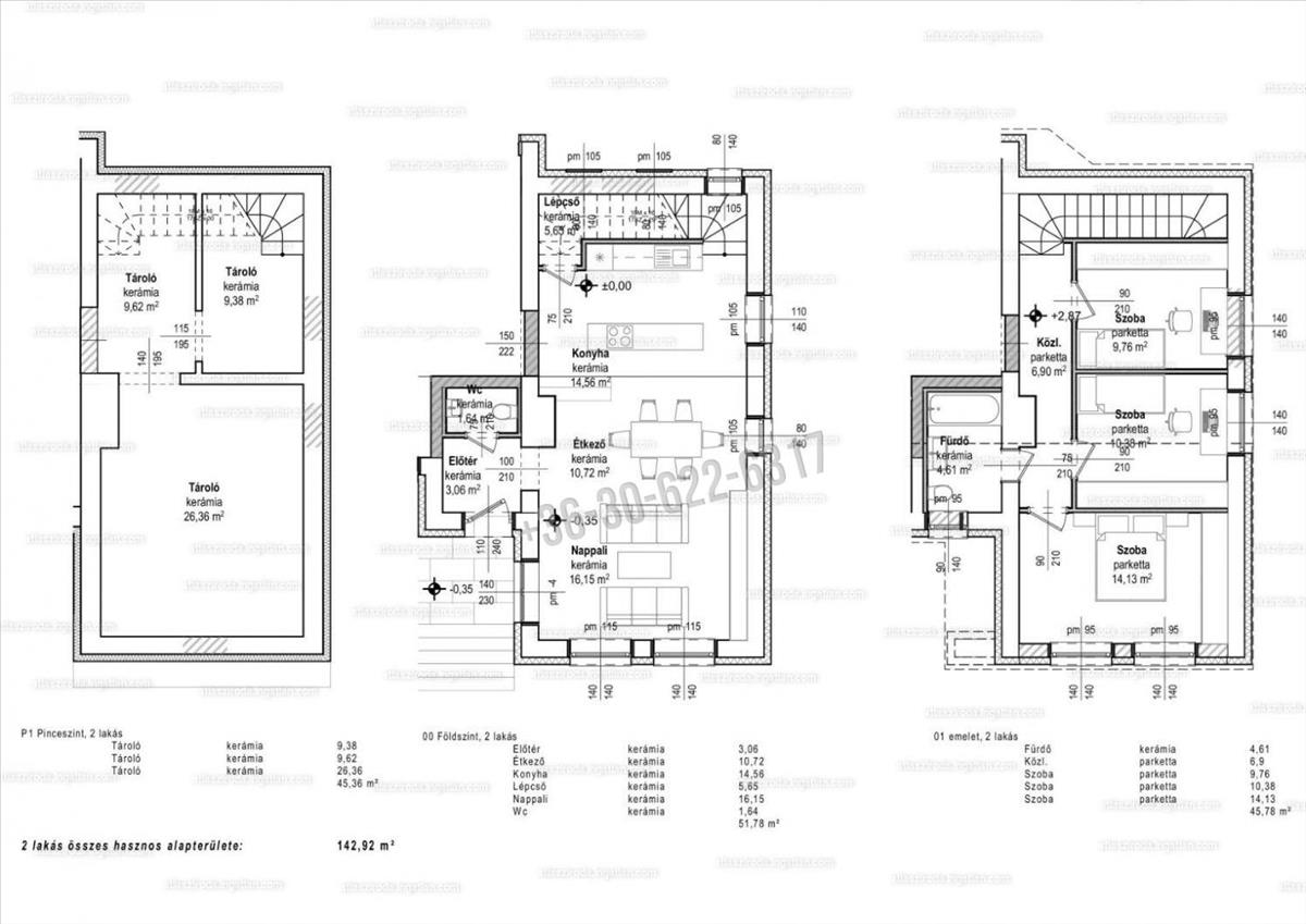
Az 1. Lakás főbb adatai:
•122 nm + saját telek és utcafronti kocsibeálló
•Pince + lakószint + tetőtér kialakítású
•Földszint: tágas előtér, amerikai konyhás nappali, közlekedő, wc, terasz
•Tetőtér: 3 hálószoba, gardrób szoba, fürdő-WC
•Pinceszint: mosókonyha + nagy tárolóhelyiségek
A 2. Lakás főbb adatai:
•143 nm + saját telek és utcafronti kocsibeálló
•Pince + lakószint + tetőtér kialakítású
•Földszint: előtér, amerikai konyhás nappali, wc, lépcsőtér, terasz
•Tetőtér: előtér, 3 szoba, fürdő-WC
•Pinceszint: mosókonyha, 2 kisebb tároló, nagyobb helyiség (akár edzőterem, szauna, relaxációs tér kialakítására is)
Műszaki tartalom:
•Beton alapozás, Porotherm falazat
•15 cm szigetelés + nemesvakolat
•Vasbeton födém, faszerkezetű nyeregtető betoncseréppel
•3 rétegű üvegezésű, redőnnyel és szúnyoghálóval felszerelt nyílászárók
•Levegő-víz hőszivattyús padlófűtés
•Pinceszinten hővisszanyerős szellőző + fúrt kút
•Tetőtérben klíma előkészítés
Kulcsrakész tartalom:
•Térkő burkolatú udvar
•Hideg- és melegburkolatok,
•I. Osztályú szaniterek
•Beltéri ajtók
Az előnyök röviden:
- Környezettudatos, időtálló kivitelezés
- Modern, fenntartható otthon a jövő igényeire szabva
- Kiváló ár-érték arány
- Saját kert, saját parkoló
Miért most a legjobb döntés?
- Az ingatlan ára most kedvezőbb
- a 3%-os Otthon Start hitel segítségével biztonságos, fix kamattal finanszírozhat
- a két előny együtt hatalmas megtakarítást és árelőnyt jelent
- Így egy modern, kulcsrakész otthonhoz juthat, amely nemcsak szép, hanem okos befektetés is
Ne hagyja ki ezt a ritka lehetőséget! Az álmai otthona már elkészült, Önre vár!
Hívjon most: Nagy Edit – 06 30 6 226 317 FIX 3% lakáshitelre megvehető
Tetszett ez az eladó Komáromi jó állapotú 4 szobás sorház? Hívd fel a hirdetőt most, és tudj meg mindent erről az eladó sorházról! Ha gondolod nézelődj tovább az eladó ház Komárom oldal hirdetései között. Ennek az eladó háznak az ára 86400000 Ft és mivel az alapterülete 143 négyzetméter, ezért az átlagos négyzetméterára 604196 HUF/m2.
Az eladó házak menüpontban további hirdetések között is böngészhetsz. Ha van kedved, akkor böngészhetsz a Nagy Edit összes hirdetése között, vagy akár a/az Dot-Ing 2001 Ingatlanirodák Kft. összes hirdetése között is.

