Eladó átlagos állapotú ház Nyíregyháza
| Kedvencbe | Megosztás | Árfigyelő |
| FIX 3% lakáshitelre megvehető | ||
| 72 000 000 HUF | ||
Ingatlan adatai
- Eladó vagy kiadó:Eladó
- Település:Nyíregyháza
- Kategória:Ház
- Alkategória:Sorház
- Alapterület:135 m2
- Telekterület:110 m2
- Csere is:Nem
- Hirdető:Cég
- Élő videón megtekinthető:Nem
- Szobaszám:5
- Állapot:Átlagos állapotú
- Hány szintes az ingatlan:3 szintes
- Tetőtér:nincs megadva
- Komfortosság:nincs megadva
- Pince:Nincs
- Parkolási lehetőség:nincs megadva
- Fűtés:nincs megadva
- Bútorozottság:nincs megadva
- Fényviszony:nincs megadva
- Tájolás:nincs megadva
- Kilátás:nincs megadva
- Internet:nincs megadva
- Akadálymentesített:nincs megadva
- Energiatanúsítvány:nincs megadva
- Villany:nincs megadva
- Víz:nincs megadva
- Gáz:nincs megadva
- Csatorna:nincs megadva
- Közös költség:7 000 Ft
- Üzenetküldés
- Hívás

Baku Lászlóné a Pontos...
Mondd meg a hirdetőnek, hogy a megveszLAK-on találtad a hirdetést.

Hitel ajánlat
Ingatlan hirdetés leírása
Sorház telekkel, garázzsal, tárolóval a Hímesben.
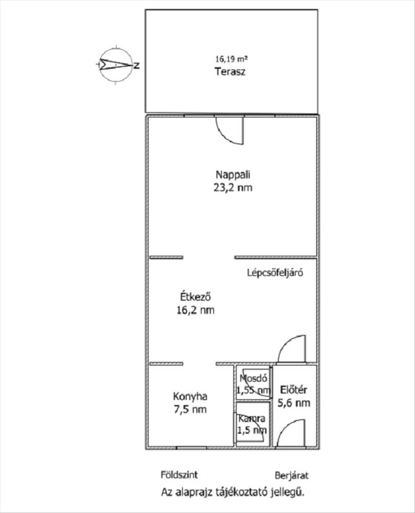
Nyíregyháza, Hímesben eladóvá vált ez a tégla építésű sorház:- a földszint nappali-étkező-konyha, kamra, lépcsőfeljáró, előtér, mosdó+WC, és teraszból áll.
- Az első szinten három szoba, egy zuhanyzós fürdőszoba WC-vel, és egy kádas fürdőszoba található, a közlekedő-lépcsőfeljáró mellett.
- a tetőtéri részben került két szoba, egy kádas fürdőszoba kialakításra.
- a szövetkezeti ház műanyag nyílászárós, gáz-cirkó fűtésű, közös költsége 7. 000, - Ft
- a földszinti nagy terasz, az emeleti szintén nagy erkély mellett az osztatlan közös tulajdonú előkert és a hátsó kiskert is közel hozza a természetet.
- a ház elhelyezkedését tekintve középen található a „sorban”, így fűtése gazdaságos.
- a burkolatok parketta, járólap, illetve egy szobában padlószőnyeg.
- Az alapterület kb. 50Nm, az első szint szintén, a tetőtér kb. 35Nm.
- Stílusát tekintve az ingatlan a múltat idézi, ezért aki a modern stílus kedvelője, számítson rá, hogy számára felújítást igényel.
- a kert végében egy garázs és egy – akár garázzsá is alakítható- tároló helyezkedik el.
A Hímes kedvelt területén található ingatlan az előzetes egyeztetést követő naptól megtekinthető.
Én várom hívását, hisz erről a házról elmondható, hogy három szinten, szinte minden megtalálható. FIX 3% lakáshitelre megvehető

