Eladó új építésű ház - Vác
- INGYENES HIRDETÉS FELADÁS
Ingatlan adatai
- Eladó vagy kiadó:Eladó
- Település:Vác
- Kategória:Ház
- Alkategória:Sorház
- Alapterület:96 m2
- Telekterület:600 m2
- Csere is:Nem
- Hirdető:Cég
- Élő videón megtekinthető:Nem
- Építés éve:2027
- Szobaszám:4
- Állapot:Új építésű
- Hány szintes az ingatlan:nincs megadva
- Tetőtér:nincs megadva
- Komfortosság:nincs megadva
- Pince:nincs megadva
- Parkolási lehetőség:nincs megadva
- Fűtés:nincs megadva
- Bútorozottság:nincs megadva
- Fényviszony:nincs megadva
- Tájolás:D
- Kilátás:nincs megadva
- Internet:nincs megadva
- Klíma:nincs megadva
- Akadálymentesített:nincs megadva
- Energiatanúsítvány:nincs megadva
- Villany:Van
- Víz:Van
- Gáz:nincs megadva
- Csatorna:Van
- Kapcsolatfelvétel

Prencsok Tamás
+36-(70)-412-3686
Mondd meg a hirdetőnek, hogy a megveszLAK-on találtad a hirdetést.
Hitel ajánlatok
Ingatlan hirdetés leírása
VÁCON a KASTÉLYLIGET LAKÓPARKBAN kínálunk eladásra ÚJ ÉPÍTÉSŰ ...
Vácon a kastélyliget lakóparkban kínálunk eladásra új építésű sorházakat 2027-es átadással!
A 3%-os otthon start hitelre alkalmas INGATLANOK!
A vásárláshoz a csok+ és az illetékkedvezmény is igénybe vehető. Céges építkezés!
KORSZERŰ alacsony energiaigényű OTTHONOK.
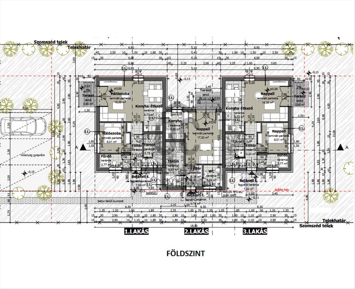
A háromlakásos sorház két szélső lakása 96-96 nm , a középső lakás pedig 73 nm alapterületű.
Minden lakáshoz külön bejárat, saját használatú változó nagyságú körbekerített kert és kocsibeálló tartozik.
A hirdetés az alaprajzon látható 1. Számú utcafronti lakásra vonatkozik, melynek ára 97, 9 M Ft.
A 96 nm -es belső kétszintes lakások földszintjén egy hálószoba, tároló, zuhanyzó+WC, konyha-étkező, valamint egy kertkapcsolatos nappali kapott helyet.
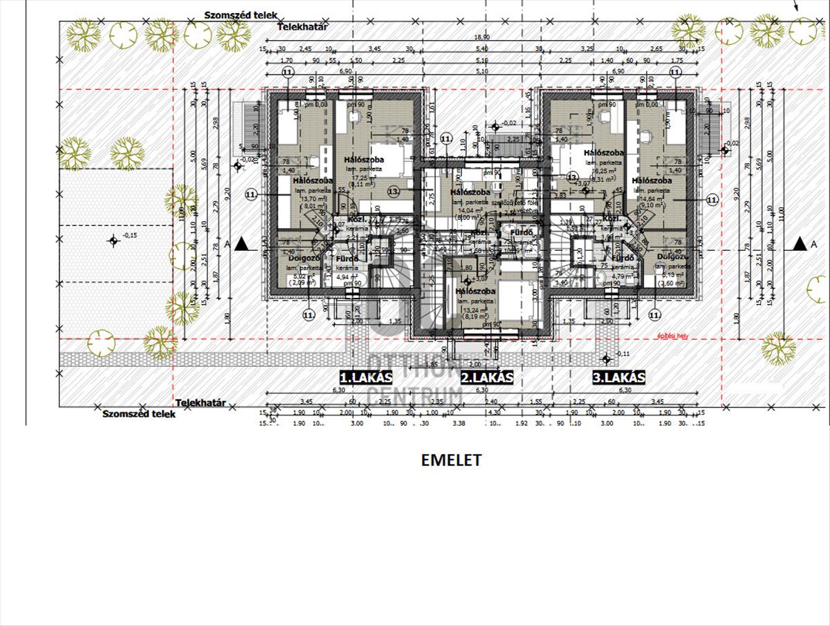
A tetőtérben két háló, egy dolgozó szoba, közlekedő és egy fürdő+WC található.
A jelenleg épülő 3 és 4 lakásos sorházak belső kétszintesek, 71 nm , 73 nm , 84 nm , és 96 nm -es kivitelben elérhetőek.
Választható lakások:
- 71 nm -es. Vételár :75, 9-79, 9 M Ft.
- 73 Nm-es. Vételár: 75, 9 M Ft.
- 84 Nm-es. Vételár: 88, 9-98, 9 M Ft.
- 96 Nm-es. Vételár: a belső 3. Számú lakás eladási ára 99, 9 MFt. Az utcafronti 1. Számú lakás eladási ára 97, 9 MFt.
A sorház modern stílusban praktikus elosztással lett tervezve, hogy minél élhetőbb és barátságosabb otthont biztosítson a leendő tulajdonosának és családjának.
Csendes nyugodt környék, átmenőforgalomtól mentes külvárosias környezetben, aszfaltozott úthálózattal, térkövezett járdákkal és közvilágítással.
Átgondolt tervezés, minőségi anyaghasználat és precíz kivitelezés egy megbízható referenciákkal bíró kivitelezőtől.
Műszaki paraméterek:
-Sávalapozás 60 cm szélességben. Külső falazat 30 cm-es kerámia blokk+15 cm homlokzati szigetelés
-Lakáselválasztó fal 30-as hanggátló téglából.
-Földszinten műanyag nyílászárók 3 rétegű üvegezéssel, kiegészítve beépített hőszigetelt redőnytokkal elektromos előkészítéssel.
-Hőszivattyús fűtés, a földszinten és az emeleten is padlófűtéssel.
-Elektromos és gépészeti előcsövezés a fan-coil rendszerhez.
-Opcionális lehetőség a teljes fan-coil rendszer kivitelezéséhez.
-Riasztó és kaputelefon előkészítés.
-Az elektromos hálózat 1x32A, de 3 fázisra bővíthetőségre előkészítve.
-H tarifás mérőóra igényelhető.
Közlekedés:
-Buszmegálló 5 perc sétával elérhető, ahonnan a Vác-alsóvárosi vasútállomás 3 perc
-Vác-Alsóváros-Bp Nyugati pályaudvar 29 perc vonattal
-Autóval az m2-es autóúton 20 perc alatt elérhető Budapest
Amivel segíteni tudjuk az Ön ingatlanvásárlását:
-ingyenes, bankfüggetlen hitelügyintézés
-értékbecslés
-jogi háttér
-földhivatali ügyintézés
-energetikai tanúsítvány készítése
Amennyiben a hirdetés felkeltette érdeklődését kérem forduljon hozzám bizalommal.
Projekt bemutatása
VÁCON a kastélyliget lakóparkban kínálunk eladásra új építésű SORHÁZAKAT.
A vásárláshoz a csok+ és az illetékkedvezmény is igénybe vehető.
CÉGES ÉPÍTKEZÉS!
A 71 nm -es belső kétszintes lakások földszintjén konyha, wc valamint egy kertkapcsolatos nappali-étkező kapott helyet.
A tetőtérben két háló, fürdő, +WC, és egy gardrób található.
A 600-800 nm -es telken 3 db lakás található eltérő méretű saját használatú kerttel és kocsibeállóval.
Az első ütemben megépült 16 db nagyobb méretű ikerházak már átadásra kerültek.
A második ütemben folyamatosan épülő 3 és 4 lakásos sorházak belső kétszintesek, 71 nm , 73 nm , 84 nm , és 96 nm -es kivitelben elérhetőek.
Minden lakáshoz külön bejárat, saját használatú változó nagyságú körbekerített kert és kocsibeálló tartozik.
Választható lakások:
- 71 nm -es. Földszintjén konyha, wc, étkező, kertkapcsolatos nappalival. Tetőtérben 2 háló, fürdő+WC, és gardrób.
Vételár :75, 9-79, 9 M Ft.
- 73 Nm-es. Földszinten konyha-étkező, kertkapcsolatos nappali, tároló, fürdő+WC. Tetőtérben 2 háló, közlekedő, fürdő+WC.
Vételár: 75, 9 M Ft.
- 84 Nm-es. Földszinten konyha-étkező, nappali kertkapcsolattal, kamra, fürdő+WC, gardrób. Tetőtérben 3 háló, fürdő+WC, gardrób.
Vételár: 88, 9-98, 9 M Ft.
- 96 Nm-es. Földszinten 1 háló, konyha-étkező, kertkapcsolatos nappali, fürdő+WC és tároló. Tetőtérben 2 háló, dolgozószoba, és fürdő.
Vételár: 97, 9-99, 9 M Ft.
A lakások modern stílusban praktikus elosztással lett tervezve, hogy minél élhetőbb és barátságosabb otthont biztosítson a leendő
tulajdonosának és családjának. Csendes nyugodt környék, átmenőforgalomtól mentes külvárosias környezetben.
Rendezett környék aszfaltozott úthálózattal, közvilágítással, térkövezett parkolóval, járdákkal.
Átgondolt tervezés, minőségi anyaghasználat és precíz kivitelezés egy megbízható referenciákkal bíró kivitelezőtől.
Műszaki paraméterek:
-Sávalapozás 60 cm szélességben. Külső falazat 30 cm-es kerámia blokk+15 cm homlokzati szigetelés
-Lakáselválasztó fal 30-as hanggátló téglából.
-Földszinten műanyag nyílászárók 3 rétegű üvegezéssel, kiegészítve beépített hőszigetelt redőnytokkal elektromos előkészítéssel.
-Hőszivattyús fűtés, a földszinten és az emeleten is padlófűtéssel.
-Elektromos és gépészeti előcsövezés a fan-coil rendszerhez.
-Opcionális lehetőség a teljes fan-coil rendszer kivitelezéséhez.
-Riasztó és kaputelefon előkészítés.
-Az elektromos hálózat 1x32A, de 3 fázisra bővíthetőségre előkészítve.
-H tarifás mérőóra.
Közlekedés:
-A buszmegálló 5 perc sétával elérhető, ahonnan a Vác-alsóvárosi vasútállomás 3 perc
-Vác-Alsóváros-Bp Nyugati pályaudvar 29 perc vonattal
-Autóval az m2-es autóúton 20 perc alatt elérhető Budapest
Amivel segíteni tudjuk az Ön ingatlanvásárlását:
-ingyenes, bankfüggetlen hitelügyintézés
-jogi háttér
-földhivatali ügyintézés
-energetikai tanúsítvány készítése
-értékbecslés
Amennyiben a hirdetés felkeltette érdeklődését kérem forduljon hozzám bizalommal. FIX 3% lakáshitelre megvehető
Tetszett ez az eladó Váci új építésű 4 szobás sorház? Hívd fel a hirdetőt most, és tudj meg mindent erről az eladó sorházról! Ha gondolod nézelődj tovább az eladó ház Vác oldal hirdetései között. Ennek az eladó háznak az ára 97900000 Ft és mivel az alapterülete 96 négyzetméter, ezért az átlagos négyzetméterára 1019792 HUF/m2.
Az eladó házak menüpontban további hirdetések között is böngészhetsz. Ha van kedved, akkor böngészhetsz a Prencsok Tamás összes hirdetése között, vagy akár a/az Otthon Centrum Vác összes hirdetése között is.

