Eladó új építésű ház - Veresegyház
- INGYENES HIRDETÉS FELADÁS
Ingatlan adatai
- Eladó vagy kiadó:Eladó
- Település:Veresegyház
- Kategória:Ház
- Alkategória:Sorház
- Alapterület:131 m2
- Telekterület:228 m2
- Csere is:Nem
- Hirdető:Cég
- Élő videón megtekinthető:Nem
- Építés éve:2025
- Szobaszám:5
- Állapot:Új építésű
- Hány szintes az ingatlan:nincs megadva
- Tetőtér:nincs megadva
- Komfortosság:nincs megadva
- Pince:nincs megadva
- Parkolási lehetőség:nincs megadva
- Fűtés:Egyéb
- Bútorozottság:nincs megadva
- Fényviszony:nincs megadva
- Tájolás:nincs megadva
- Kilátás:nincs megadva
- Internet:nincs megadva
- Klíma:nincs megadva
- Akadálymentesített:nincs megadva
- Energiatanúsítvány:nincs megadva
- Villany:nincs megadva
- Víz:nincs megadva
- Gáz:nincs megadva
- Csatorna:nincs megadva
- Kapcsolatfelvétel

Dalmadi Orsi
+36305207219
Mondd meg a hirdetőnek, hogy a megveszLAK-on találtad a hirdetést.
Hitel ajánlatok
Ingatlan hirdetés leírása
Veresegyház egyik legkedveltebb, új építésű lakóövezetében, a ...
Veresegyház egyik legkedveltebb, új építésű lakóövezetében, a Revetek részén kínáljuk eladásra ezt a modern, kulcsrakész szélső sorházi otthont.
2026. Tavaszi átadás
Saját kertkapcsolattal 228nm
A lakás nettó 131, 1 m²,
+terasszal 6, 5 m2,
+erkély az emeleten 12 m2
+18, 10 m²-es garázs,
Földszint –
amerikai konyhás nappali–étkező (34, 91 m²)
Előtér: 5, 78 m2
külön Wc: 2, 32 m2
Gardrób: 5, 58 m2
Szoba: 8, 19 m2
Kádas fürdő: 4, 81 m2
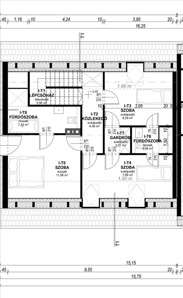
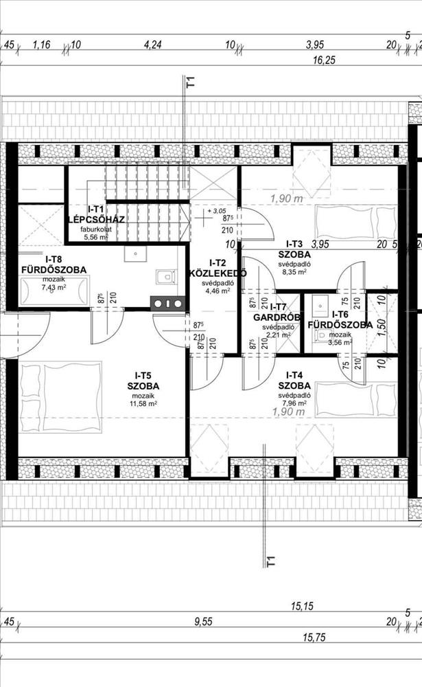
Tetőtér:
Lépcsőház: 5, 56 m2
Közlekedő: 4, 46 m2
1. Szoba: 8, 35 m2
2. Szoba: 7, 96 m2
3. Szoba: 11, 58 m3
Gardrób: 2, 21 m2
Fürdőszoba: 7, 43 m3
Fürdőszoba:
Lokáció:
Csendes aszfaltos utcában található, új építésű házak közvetlen közelben,
közlekedés:
Vasútállomás párc gyakog
Buszmegálló 5 perc gyalog
Központ: Iskola, óvada, orvosi rendelő, 5 perc autóval
Az ingatlan osztatlan közös tulajdon, albetétes, saját kerthasználattal.
Ideális választás fiatal kisgyerekes családoknak vagy azoknak, akik modern, igényes új otthont keresnek.
Az ingatlan hitelezhető, költözhető.
Megtekintés, előre egyeztetett időpontban bármikor.
Teljes körű és díjmentes hitel ügyintézéssel, biztosításkötéssel áll rendelkezésére szakértő kollégánk. Kérje személyre szabott ajánlatunkat! Ezúton tájékoztatjuk, hogy Ön mint érdeklődő, a hirdetésben megjelölt telefonszám felhívásával hozzájárul személyes adatai – így különösen neve és telefonszáma -, a hirdetést feladó általi - biztonságos és körültekintő - kezeléséhez, nyilvántartásához.
Az Immo1 Adatvédelmi aloldalán találja a teljes körű leírást. FIX 3% lakáshitelre megvehető
Tetszett ez az eladó Veresegyházi új építésű 5 szobás sorház? Hívd fel a hirdetőt most, és tudj meg mindent erről az eladó sorházról! Ha gondolod nézelődj tovább az eladó ház Veresegyház oldal hirdetései között. Ennek az eladó háznak az ára 127900000 Ft és mivel az alapterülete 131 négyzetméter, ezért az átlagos négyzetméterára 976336 HUF/m2.
Az eladó házak menüpontban további hirdetések között is böngészhetsz. Ha van kedved, akkor böngészhetsz a Dalmadi Orsi összes hirdetése között.

