Eladó átlagos állapotú tanya - Békéscsaba
- INGYENES HIRDETÉS FELADÁS
Ingatlan adatai
- Eladó vagy kiadó:Eladó
- Település:Békéscsaba
- Kategória:Mezőgazdasági ingatlan
- Alkategória:Tanya
- Alapterület:80 m2
- Telekterület:2070 m2
- Csere is:Nem
- Hirdető:Cég
- Élő videón megtekinthető:Nem
- Fűtés:Gáz (cirko)
- Bútorozottság:nincs megadva
- Fényviszony:nincs megadva
- Tájolás:nincs megadva
- Internet:nincs megadva
- Klíma:nincs megadva
- Akadálymentesített:nincs megadva
- Energiatanúsítvány:nincs megadva
- Villany:Van
- Víz:Nincs
- Gáz:Nincs
- Csatorna:Nincs
- Kapcsolatfelvétel

Dosa Lajos
+36-(30)-967-9813
Mondd meg a hirdetőnek, hogy a megveszLAK-on találtad a hirdetést.
Hitel ajánlatok
Ingatlan hirdetés leírása
Eladó Tanya, Békéscsaba, Nincs megadva, 80nm, 12900000 Ft
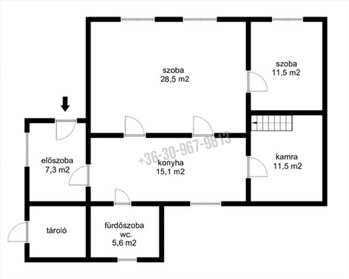
Békéscsaba Jaminai városrészétől 3, 5 km-re lévő Kerek tanyáknál, 2070 m2-es telken lévő 80 m2-es alapterületű, 2, 7 m-es belmagasságú tanya, valamint a hozzátartozó 19360 m2-es, 45 ak értékű szántó eladó. a jól megközelíthető tanyában előszoba, két szoba, konyha, kamra, tusolós fürdőszoba, wc, került kialakításra. a tégla lábazatú, vályogfalazatú épület korábbi korszerűsítésekor az ipari áram bevezetése, villanyvezetékek cseréje, falak vízszigetelése, az aljzat betonozása, a tetőszerkezet megerősítése, a cserepek cseréje, valamint a műanyag ablakok beépítése is megtörtént. a tanya vízellátását hidrofor, cirkó fűtését vegyes tüzelésű kazán biztosítja. Az udvaron ólak, tárolók, gazdasági épületek nincsenek. a tanya (12, 9 MFt) és a szántó (7 MFt) együttes irányára: 19, 9 MFt. T: 30-9679-813, 66-633-362 Hitel.hu - Hasonlítsa össze a bankok lakáshitel ajánlatait
Tetszett ez az eladó Békéscsabai átlagos állapotú mezőgazdasági ingatlan? Hívd fel a hirdetőt most, és tudj meg mindent erről az eladó mezőgazdasági ingatlanról! Ha gondolod nézelődj tovább az eladó mezőgazdasági ingatlan Békéscsaba oldal hirdetései között.
Az eladó mezőgazdasági ingatlanok menüpontban további hirdetések között is böngészhetsz. Ha van kedved, akkor böngészhetsz a Dosa Lajos összes hirdetése között.

