Eladó tanya - Kiskunhalas
- INGYENES HIRDETÉS FELADÁS
Ingatlan adatai
- Eladó vagy kiadó:Eladó
- Település:Kiskunhalas
- Kategória:Mezőgazdasági ingatlan
- Alkategória:Tanya
- Alapterület:nincs megadva
- Telekterület:8225 m2
- Csere is:Nem
- Hirdető:Cég
- Élő videón megtekinthető:Nem
- Fűtés:nincs megadva
- Bútorozottság:nincs megadva
- Fényviszony:nincs megadva
- Tájolás:nincs megadva
- Internet:nincs megadva
- Klíma:nincs megadva
- Akadálymentesített:nincs megadva
- Energiatanúsítvány:nincs megadva
- Villany:nincs megadva
- Víz:nincs megadva
- Gáz:nincs megadva
- Csatorna:nincs megadva
- Kapcsolatfelvétel

Kakulya Nóra
+36-(30)-692-8487
Mondd meg a hirdetőnek, hogy a megveszLAK-on találtad a hirdetést.
Hitel ajánlatok
Ingatlan hirdetés leírása
Eladó 8225 m2 tanya, Kiskunhalas
Ár: 24. 900. 000. -
Bács-Kiskun vármegye, Kiskunhalas külterületén, Kiskunhalastól 3 km-re Pirtó irányába főút mentén- kb 200 méteres bejáróval, 3 helyrajzi számon nyilvántartott tanya összesen 8225 m2-es területtel eladó. Az ingatlanhoz az alábbi területek tartoznak:
- kivett tanya, szántó: 4316 m2
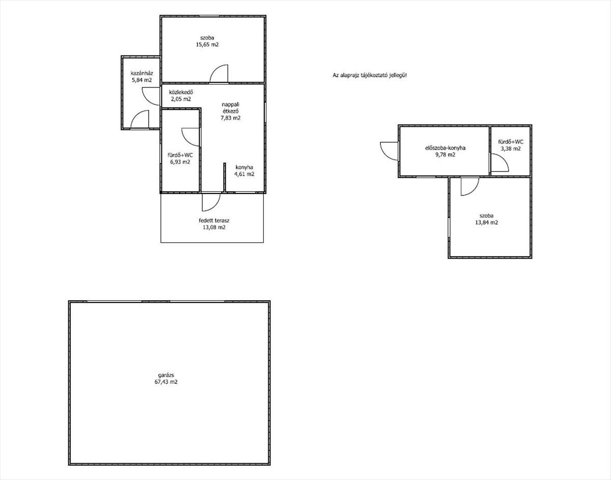
1. 50 m2-es lakóépület, melyben egy szoba, konyha, étkező, közlekedő, fürdő+WC került kialakításra. Falazata tégla. Fűtéséről vegyestüzelésű kazán gondoskodik radiátoros hőleadással. Nyílászárói műanyag szerkezetű, hőszigetelt ablakok.
2. Felújítandó kis családi ház, 27 m2 alapterülettel. Konyha, előszoba, fürdő+WC, szoba kialakítással. Fűtéséről kályha gondoskodik.
3. 67, 43 m2-es 3 beállásos garázs, műhely, tároló. Ipari áram kiépített.
- Szántó: 1878 m2
- erdő: 2031 m2
A 3 helyrajzi szám egyben megvásárolható. Az adásvétel kifüggesztés köteles. Bővebb információért keressen: Kakulya Nóra 06 30 692 8487 (hivatkozási szám: m118243) Hitel.hu - Hasonlítsa össze a bankok lakáshitel ajánlatait
Tetszett ez az eladó Kiskunhalasi mezőgazdasági ingatlan? Hívd fel a hirdetőt most, és tudj meg mindent erről az eladó mezőgazdasági ingatlanról! Ha gondolod nézelődj tovább az eladó mezőgazdasági ingatlan Kiskunhalas oldal hirdetései között.
Az eladó mezőgazdasági ingatlanok menüpontban további hirdetések között is böngészhetsz. Ha van kedved, akkor böngészhetsz a Kakulya Nóra összes hirdetése között.

