- >>
- eladó ingatlanok
- >>
- eladó mezőgazdasági ingatlan
- >>
- eladó mezőgazdasági ingatlan Szekszárd
- >>
Eladó jó állapotú tanya - Szekszárd
| | |||
| Kedvencnek jelölöm | Elküldöm emailben | Megosztás | Szavazás |
| Kedvezményes lakáshitel ajánlatok | |||
| 15 000 000 HUF | |||
Ingatlan adatai
- Eladó vagy kiadó:Eladó
- Település:Szekszárd
- Kategória:Mezőgazdasági ingatlan
- Alkategória:Tanya
- Alapterület:90 m2
- Telekterület:4120 m2
- Csere is:Nem
- Hirdető:Cég
- Élő videón megtekinthető:Nem
- Fűtés:nincs megadva
- Bútorozottság:nincs megadva
- Fényviszony:nincs megadva
- Tájolás:K
- Internet:nincs megadva
- Akadálymentesített:nincs megadva
- Energiatanúsítvány:nincs megadva
- Villany:Van
- Víz:Nincs
- Gáz:Nincs
- Csatorna:Nincs
- Üzenetküldés
- Hívás


Hitel ajánlat
Ingatlan hirdetés leírása
Szekszárdon a Kisbödő hegyen eladó 4120 m2-es telken 90 m2-es ...
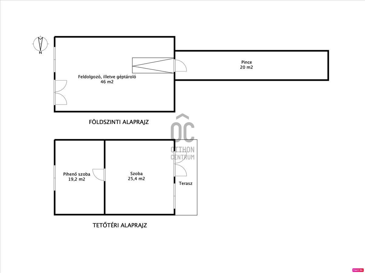
Szekszárdon a Kisbödő hegyen eladó 4120 m2-es telken 90 m2-es alapterületű ház (alsó szint 46 m2, felső szint 44 m2 bruttó).A tanya tégla épület, 270 cm-es belmagasságú, ipari árammal ellátott.
Az esővizet 4 m3-es beton ciszternában tárolják, a terasz alatt.
Beton úton megközelíthető.
10 Méter hosszú téglázott pince, és további 2 m földpince tartozik a gazdasági épülethez.
A területen bor szőlő és csemege szőlő is található, illetve a telek felső részén egy konyhakert is van.
A telek méretéből adódóan alkalmas annyi növény megtermelésére, ami egy család megélhetését tudja biztosítani.
A tanya alsó szintje garázsként is használható a nagyméretű kapunak, és az egyben 46 m2 alapterületnek.
Menjünk nézzük meg! Hitel.hu - Hasonlítsa össze a bankok lakáshitel ajánlatait

