- >>
- eladó ingatlanok
- >>
- eladó mezőgazdasági ingatlan
- >>
- eladó mezőgazdasági ingatlan Tereske
- >>
Eladó jó állapotú tanya - Tereske
| | |||
| Kedvencnek jelölöm | Elküldöm emailben | Megosztás | Szavazás |
| Kedvezményes lakáshitel ajánlatok | |||
| 19 500 000 HUF | |||
Ingatlan adatai
- Eladó vagy kiadó:Eladó
- Település:Tereske
- Kategória:Mezőgazdasági ingatlan
- Alkategória:Tanya
- Alapterület:122 m2
- Telekterület:139 m2
- Csere is:Nem
- Hirdető:Cég
- Élő videón megtekinthető:Nem
- Fűtés:Gáz (cirko)
- Bútorozottság:nincs megadva
- Fényviszony:nincs megadva
- Tájolás:nincs megadva
- Internet:nincs megadva
- Akadálymentesített:nincs megadva
- Energiatanúsítvány:nincs megadva
- Villany:Van
- Víz:Van
- Gáz:Van
- Csatorna:Van
- Üzenetküldés
- Hívás


Hitel ajánlat
Ingatlan hirdetés leírása
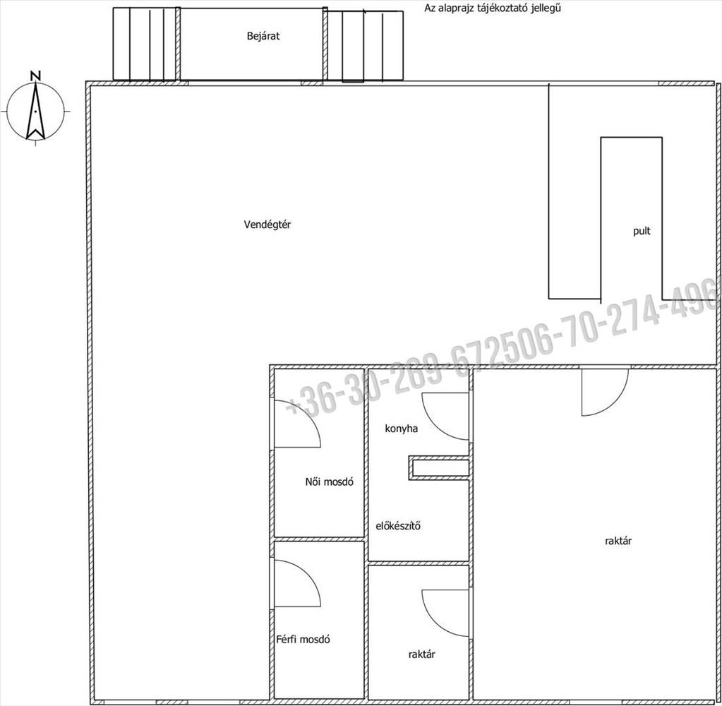
Eladó Tanya, Tereske, 122nm, 19500000 Ft
Tereske központjában 122 m2-es hasznos alapterületű bejáratott presszó eladó!Az épület 1970-es években épült beton alapra, téglából, cserép fedéssel. Szerkezetileg kiváló állapotban van, mellette vegyesbolt és dohánybolt üzemel. a belső tereket a jelenlegi tulajdonosok felújították. a hatalmas, 72 m2-es vendégtéren kívül kialakításra került benne külön férfi és női mosdó mozgásérzékelő világítással új szerelvényekkel, konyha, előkészítő (az előírásoknak megfelelően) és nagy méretű raktárak, valamint az udvarról megközelíthető személyzeti mosdó. Fűtése gázcirkóval és cserépkályhával is megoldható. Az épületbe klímaberendezés és kamerarendszer is felszerelésre került.
A falu folyamatosan fejlődik, nemrégiben kapott új útburkolatot, óvoda, iskola, polgármesteri hivatal, posta, orvosi rendelő működik a településen.
Tereske a Börzsöny és a Cserhát hegység találkozásánál, közvetlenül a 22-es főút mellett elhelyezkedő bájos Árpád-kori település, erről tanúskodik az altemplommal és eredeti freskókkal rendelkező román kori templom is. Az épülő m2 autópálya nyomvonala a tervek szerint érinteni fogja, így még könnyebben megközelíthető lesz Budapest és Szlovákia irányából is. Közlekedése jelenleg is jó, Rétságtól 6 km-re, Balassagyarmattól 20 km-re, Budapesttől 70 km-re helyezkedik el, a fővárosba óránként induló buszjáratokkal is el lehet jutni. a falu határában gyönyörű horgásztó van, a környék bővelkedik látnivalókban, műemlékekben, gyönyörű kirándulóhelyekben. a Bánki tó pár perces autóúttal elérhető.
Ha felkeltette kíváncsiságát ez az igazán különleges ingatlan és szeretné megtekinteni, előzetes egyeztetés után megteheti.
Várom megtisztelő megkeresését!
Irodánk az alábbi szolgáltatásokkal segíti Önt az ingatlanvásárlásban:
- Ingyenes hitelügyintézés
- Földhivatali ügyintézés
- Jogi háttér biztosítása
- Energetikai tanúsítvány elkészítése
- Értékbecslés
+ szolgáltatásunk: Ingyenes ajánlatküldés országos rendszerből, e-mail cím megadásával Hitel.hu - Hasonlítsa össze a bankok lakáshitel ajánlatait

