Eladó jó állapotú lakás - Alsópáhok
- INGYENES HIRDETÉS FELADÁS
Ingatlan adatai
- Feladva:4 hónapja a megveszLAK-on
- Eladó vagy kiadó:Eladó
- Település:Alsópáhok
- Kategória:Lakás
- Alkategória:Tégla
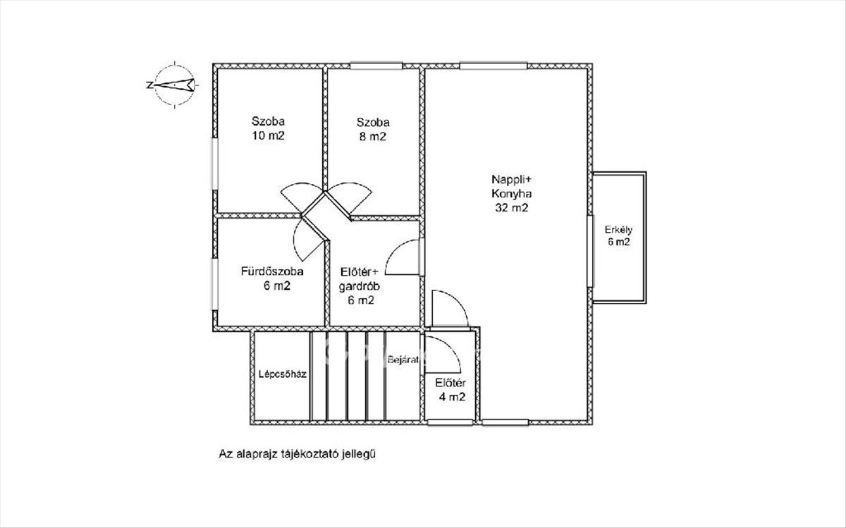
- Alapterület:71 m2
- Csere is:Nem
- Hirdető:Cég
- Élő videón megtekinthető:Nem
- Szobaszám:3
- Állapot:Jó állapotú
- Hány szintes az ingatlan:2 szintes
- Komfortosság:nincs megadva
- Hányadik emeleti:1
- Erkély:nincs megadva
- Lift:Nincs
- Parkolási lehetőség:Beállóban
- Fűtés:Gáz (cirko)
- Bútorozottság:nincs megadva
- Fényviszony:nincs megadva
- Tájolás:nincs megadva
- Kilátás:nincs megadva
- Internet:nincs megadva
- Klíma:nincs megadva
- Akadálymentesített:nincs megadva
- Energiatanúsítvány:nincs megadva
- Villany:nincs megadva
- Víz:nincs megadva
- Gáz:nincs megadva
- Csatorna:nincs megadva
- Kapcsolatfelvétel

Köteles Judit
+36-30-398-4004
Mondd meg a hirdetőnek, hogy a megveszLAK-on találtad a hirdetést.
Hitel ajánlatok
Ingatlan hirdetés leírása
Alsópáhok rendezett lakóparkjában eladó egy 71 m2-es, első eme...
Alsópáhok rendezett lakóparkjában eladó egy 71 m2-es, első emeleti, erkélyes lakás, egy mindössze kétlakásos, téglaépítésű épületben.
A lépcsőházból az előszobába érkezünk, innen a világos, amerikai konyhás nappali nyílik, közvetlen kijárattal az erkélyre. a gardróbos előtérből két külön nyíló hálószoba, valamint egy zuhanyzós fürdőszoba WC-vel található.
Az újszerű lakás klímával, gáz cirkó fűtéssel és riasztórendszerrel felszerelt. a hőszigetelt fa nyílászárók részben redőnnyel és szúnyoghálóval ellátottak, a vételár pedig saját parkolóhelyet is tartalmaz.
Az ingatlan elektromos kapuval zárt, saját úton megközelíthető, gondozott, parkos környezetben helyezkedik el.
Mindennapi otthonnak, ugyanakkor hétvégi pihenésre vagy befektetésnek is tökéletes a Balaton és a környék gyógyfürdőinek közelsége miatt.
Hévíz 2 km, Keszthely 7 km, Kehidakustány 15 km, Zalakaros 25 km.
Mindennapi nyugalom és kényelem, amikor csak szeretnéd.
Egyedi kamatozású, ingatlanvásárlási, - és felújítási hitelek, valamint CSOK és babaváró-hitel ügyintézését is elvégezzük Ön helyett, az OTP Bank hátterével. Otthon Start programmal is hitelezhető.
Amennyiben a hirdetés felkeltette érdeklődését, kérdése van vagy szeretné személyesen megtekinteni, akár hétvégén is, hívjon bizalommal! FIX 3% lakáshitelre megvehető
Tetszett ez az eladó Alsópáhoki jó állapotú 3 szobás tégla lakás? Hívd fel a hirdetőt most, és tudj meg mindent erről az eladó tégla lakásról! Ha gondolod nézelődj tovább az eladó lakás Alsópáhok oldal hirdetései között. Ennek az eladó lakásnak az ára 62900000 Ft és mivel az alapterülete 71 négyzetméter, ezért az átlagos négyzetméterára 885915 HUF/m2.
Az eladó lakások menüpontban további hirdetések között is böngészhetsz. Ha van kedved, akkor böngészhetsz a Köteles Judit összes hirdetése között, vagy akár a/az Tapolca Batsányi utca 1 - OTP Ingatlanpont Iroda összes hirdetése között is.

