Eladó újszerű állapotú lakás - Baja
- INGYENES HIRDETÉS FELADÁS
Ingatlan adatai
- Eladó vagy kiadó:Eladó
- Település:Baja
- Kategória:Lakás
- Alkategória:Tégla
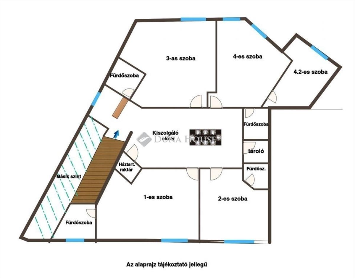
- Alapterület:135 m2
- Csere is:Nem
- Hirdető:Cég
- Élő videón megtekinthető:Nem
- Szobaszám:5
- Állapot:Újszerű, kitűnő
- Hány szintes az ingatlan:Földszintes
- Komfortosság:nincs megadva
- Hányadik emeleti:Földszint
- Erkély:nincs megadva
- Lift:Nincs
- Parkolási lehetőség:nincs megadva
- Fűtés:Gáz
- Bútorozottság:nincs megadva
- Fényviszony:Napfényes
- Tájolás:ÉK
- Kilátás:nincs megadva
- Internet:nincs megadva
- Klíma:nincs megadva
- Akadálymentesített:nincs megadva
- Energiatanúsítvány:nincs megadva
- Villany:Van
- Víz:Van
- Gáz:nincs megadva
- Csatorna:Van
- Kapcsolatfelvétel

Roncsák Martin
+36-(20)-251-9117
Mondd meg a hirdetőnek, hogy a megveszLAK-on találtad a hirdetést.
Referencia szám: LK088636
Hitel ajánlatok
Ingatlan hirdetés leírása
Eladó lakás, Baja, Eladó újszerű állapotú lakás - Baja
Figyelem eladó apartman, remek vállalkozási, befektetési LEHETŐSÉG! Befektetési számítás miért éri meg? a booking. Com adatai alapján jelenleg egy 10 fős társaság egyhetes bajai tartózkodása minimum 500. 000 Ft-nál kezdődik. Az ingatlan jelenlegi kialakítása 12-14 fő elszállásolására alkalmas, így teljes szezonban könnyen kiadható. Ha évente csupán 6 hónapig (26 hétig) van kiadva heti 500. 000 Ft-ért:Éves bruttó bevétel: 13. 000. 000 FtVárható adóteher (~15%): 1. 950. 000 FtFenntartási és működési költségek (~10%): 1. 300. 000 FtÉves nettó nyereség: ~9. 750. 000 FtMegtérülési idő: kb. 8, 2 ÉvEzután évente közel 10 millió Ft tiszta bevételt termelhet! További előnyök:Akár két különálló lakássá is átalakítható. Tökéletes nagyobb társaságok, családok, céges vendégek elszállásolására. Frekventált, belvárosi környezet! Könnyű bérbeadás, magas kereslet Baján a nagy létszámú apartmanokra. Ne hagyd ki ezt az azonnal működtethető lehetőséget! RÉSZLETEK az ingatlannal KAPCSOLATBAN:Baja abszolút belvárosában, kiváló elhelyezkedéssel kínálunk eladásra egy 135 m²-es apartmant, amely jelenlegi kialakításával is 12-14 fő elszállásolására alkalmas így kiváló választás lehet befektetőknek, szállásadóknak, vagy vállalkozóknak, akik hosszú távú megtérülést keresnek. Az ingatlan 4 különnyíló szobából, egy ötödik, kapcsolt szobából, kiszolgáló előtérből, valamint 4 saját fürdőszobából áll (mindegyik zuhanyzóval és WC-vel felszerelt). Emellett két külön bejáratú helyiség is rendelkezésre áll: egy háztartási raktár, valamint egy külön tároló. Az apartmanhoz tartozik egy külön kazánház, ahol egy személyzeti mosdó is helyet kapott. a szobák aljzata faparkettás, a falakat dupla gipszkarton és vékony tégla biztosítja, kiváló hangszigeteléssel. a nyílászárók műanyag hő- és hangszigeteltek, a fűtésről pedig központi rendszer gondoskodik kondenzációs gázkazánnal. Az épület 2000-ben épült téglából, és utcafronti bejárattal rendelkezik. További információért, vagy megtekintésért az kérem hívja a megadott telefonszámot, vagy írjon emailt!
Referencia szám: LK088636
Referencia szám: lk088636 FIX 3% lakáshitelre megvehető
Tetszett ez az eladó Bajai újszerű állapotú 5 szobás tégla lakás? Hívd fel a hirdetőt most, és tudj meg mindent erről az eladó tégla lakásról! Ha gondolod nézelődj tovább az eladó lakás Baja oldal hirdetései között. Ennek az eladó lakásnak az ára 80000000 Ft és mivel az alapterülete 135 négyzetméter, ezért az átlagos négyzetméterára 592593 HUF/m2.
Az eladó lakások menüpontban további hirdetések között is böngészhetsz. Ha van kedved, akkor böngészhetsz a Roncsák Martin összes hirdetése között, vagy akár a/az Duna House Szeged, Mérey utca összes hirdetése között is.

