Eladó új építésű lakás Balatonboglár
| Kedvencbe | Megosztás | Árfigyelő |
| FIX 3% lakáshitelre megvehető | ||
| 58 900 000 HUF | ||
Ingatlan adatai
- Eladó vagy kiadó:Eladó
- Település:Balatonboglár
- Kategória:Lakás
- Alkategória:Tégla
- Alapterület:45 m2
- Csere is:Nem
- Hirdető:Cég
- Élő videón megtekinthető:Nem
- Szobaszám:2
- Állapot:Új építésű
- Hány szintes az ingatlan:nincs megadva
- Komfortosság:nincs megadva
- Kertkapcsolatos:Igen
- Hányadik emeleti:Földszint
- Parkolási lehetőség:nincs megadva
- Fűtés:Megújuló energia
- Bútorozottság:nincs megadva
- Fényviszony:nincs megadva
- Tájolás:nincs megadva
- Kilátás:nincs megadva
- Internet:nincs megadva
- Akadálymentesített:nincs megadva
- Energiatanúsítvány:nincs megadva
- Villany:nincs megadva
- Víz:nincs megadva
- Gáz:nincs megadva
- Csatorna:nincs megadva
- Üzenetküldés
- Hívás


Hitel ajánlat
Ingatlan hirdetés leírása
Eladó ÚJ ÉPÍTÉSŰ lakóparki lakások Balatonboglár központjában!
Kizárólag a lido home Balatonboglár ingatlaniroda kínálatában!Ön is szeretne az év bármely napján a település központi részén, a Platán strandtól kényelmes séta távolságra, nyugodt környezetben minőségi lakásban/nyaralóban pihenni, kikapcsolódni? Itt a vissza nem térő, új lehetőség: indul a mill garden projekt II. Üteme, melyben még egy, 14 lakásból álló épülettömb kerül felépítésre.
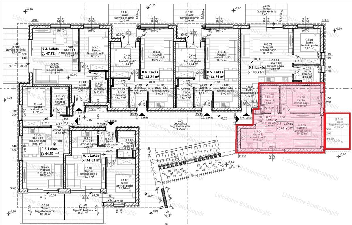
A lido home Balatonboglár Ingatlaniroda eladásra kínálja Balatonboglár kertvárosában, a központ közelében lévő, új építésű, 14 lakásos társasházban a földszinti, 41, 25 m2-es, hasznos alapterületű lakást, a hozzá tartozó 8, 75 m2-es terasz kapcsolattal,
- a 14 lakásos társasház Balatonboglár központjának közelében, 6407 m2-es telken, hangulatos természeti környezetben kerül felépítésre.
- a társasház minőségi és igényes anyagokból épül, a földszinten hét teraszos-kertkapcsolatos, az emeleten hét teraszos lakás kialakítással.
- a Földszint 7-es lakás, hasznos alapterülete 41, 25 m2, terasza 8, 75 m2 (nappaliból nyíló, D-Keleti tájolású).
- Helyiségkiosztása: Előszoba, Amerikai konyha-nappali, szoba, fürdőszoba
- a társasház falazata Porotherm 30 K blokktégla teherhordó szerkezet, tégla belső teherhordó és válaszfalak, 20 cm-es monolit födém.
A lakások Beruházó által garantált, irányárban vállalt műszaki paraméterei:
-magas minőségű import burkolatok alapáron
-lakásonként egyedi gázfűtés
-padlófűtés a lakás teljes területén
-klíma beépítés - ( minőségi hűtő-fűtő klímaberendezés felszerelése a nappaliba)
-háromrétegű üveggel rendelkező hőszigetelt nyílászárók
-Az épületen napelem kerül elhelyezésre, amely javítja a villamosenergia költségeket, a lakások energetikai besorolása bb
-a lakások Beruházó által kínált, felár ellenében, vevői igény esetén kivitelezhető, magasabb műszaki tartalmú szolgáltatások paraméterei:
-felár ellenében motorosan működtetett alumínium redőnyök
-felár ellenében szoba szellőztető rendszer beépítése
-felár ellenében okos otthon vezérlés beépítése
- Minden lakás egyedi mérőórákkal kerül átadásra
- a lakáshoz zárt, intim udvarban kültéri beállóhely vásárolható, melynek ára: brutto 3. 000. 000, -Ft
- Balaton part, szabad strand 1000 méter távolságra található, 10 perces, kényelmes sétával elérhető.
- Az irányár a választható burkolatokat és beépített szanitereket tartalmazza (műszaki leírásban rögzített feltételekkel)
- Fizetési ütemezésről és feltételekről, a lakással kapcsolatosan felmerült egyéb kérdésekről személyesen, telefonon vagy e-mailben küldött dokumentációs anyag küldésével tudom tájékoztatni
A társasház minden apró részletét a minőségi és igényes kialakítás jellemzi, kiváló választás lehet állandó lakásnak, nyaralónak vagy befektetésnek is.
Amennyiben a Lido Home Balatonboglár Ingatlaniroda által hirdetett, balatonboglári, új építésű társasházi lakás, vagy bármely a kínálatunkban szereplő ingatlan felkeltette érdeklődését, hívjon bizalommal a megadott telefonszámon. Várom jelentkezését!
Vásárolna, de nincs rá keret? Kollégám díjmentes, bank semleges hitel ügyintézéssel áll rendelkezésére.
LIDO home - Ingatlanok egy életen át! FIX 3% lakáshitelre megvehető

