Eladó jó állapotú lakás Balatonboglár
| Kedvencbe | Megosztás | Árfigyelő |
| FIX 3% lakáshitelre megvehető | ||
| | 56 900 000 HUF | |
Ingatlan adatai
- Eladó vagy kiadó:Eladó
- Település:Balatonboglár
- Kategória:Lakás
- Alkategória:Tégla
- Alapterület:71 m2
- Csere is:Nem
- Hirdető:Cég
- Élő videón megtekinthető:Nem
- Szobaszám:2 + 1 fél
- Állapot:Jó állapotú
- Hány szintes az ingatlan:3 szintes
- Komfortosság:Összkomfortos
- Tetőtéri:Nem
- Kertkapcsolatos:Nem
- Hányadik emeleti:Földszint
- Erkély:Van
- Lift:Nincs
- Parkolási lehetőség:Garázsban
- Fűtés:Gáz (konvektor)
- Bútorozottság:Bútorozatlan
- Fényviszony:Jó
- Tájolás:nincs megadva
- Kilátás:nincs megadva
- Internet:nincs megadva
- Akadálymentesített:nincs megadva
- Energiatanúsítvány:nincs megadva
- Villany:Van
- Víz:Van
- Gáz:Van
- Csatorna:Van
- Üzenetküldés
- Hívás
Korrekt Ingatlaniroda ...
Mondd meg a hirdetőnek, hogy a megveszLAK-on találtad a hirdetést.
Referencia szám: 1269.

Hitel ajánlat
Ingatlan hirdetés leírása
71 nm-es földszinti lakás + Garázs eladó Balatonbogláron
Árcsökkenés!71 Nm-es földszinti lakás + Garázs eladó Balatonbogláron (Alacsony közösköltség! )
A Balaton déli partján, Balatontól kb. 800 M-re, Balatonbogláron, csendes, nyugodt utcában, 6 lakásos társasházban, földszintes, jó állapotú, tehermentes, 1/1 -es tulajdonostól, 71 nm-es erkélyes lakás 17, 6 nm-es garázzsal együtt eladó.
Kérjük, tekintse meg ingatlanvideónkat!
A közelben élelmiszerüzletek, étterem, vasútállomás és buszmegálló található.
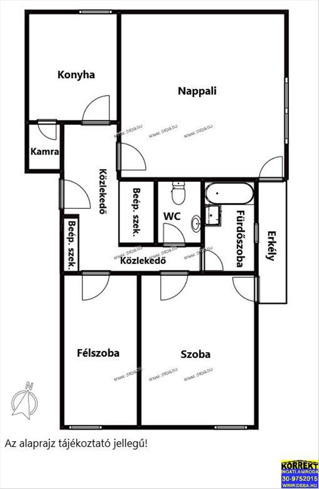
Helyiségek: Nappali, szoba, félszoba, konyha, kamra, fürdőszoba, wc, erkély, és 17, 6 nm-es garázs.
A lakásban kábel tv, internet bekötésre is lehetőség van. 2 Beépített szekrény található a közlekedőn.
Fűtés: gázkonvektorokkal, melegvíz-ellátás átfolyós gázbojlerrel történik.
Közös költség: 60 ezer forint / év.
Akár állandó lakásnak vagy nyaralónak, de befektetésnek is alkalmas ingatlan.
Kulcsunk van hozzá, így előzetes időpont egyeztetéssel bármikor megtekinthető a lakás.
Kód: 1269.
KÉRJÜK, hogy lehetőleg telefonon keressenek, akár hétvégén is.
Teljes körű ügyintézés, kedvezményes ügyvédi költség, energetikai tanúsítvány ügyintézése, díjmentesen segítünk a közművek átírásában.
Eladáskor előre kitöltjük a közmű nyomtatványokat, ha a szerződő felektől hozzájárulást-meghatalmazást kapunk rá!
Ingatlana eladásakor sem hagyjuk magára Önt.
A kulcsátadásig, birtokbaadásig is végig visszük a teljes értékesítési folyamatot!
Korrekt Ingatlanközvetítő Iroda, Balatonlelle, Rákóczi Ferenc út 164. , (Az iroda 7-es főút mellett a körforgalomtól (SPAR-tól, Márton cukrászdától) 300 m-re Siófok irányába, a nagy sárga táblánál található). FIX 3% lakáshitelre megvehető

